Jak marzenie z garażem - plik szczegółowy

Transkrypt

Jak marzenie z garażem - plik szczegółowy
1 568
1565
24
24
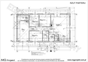
pom. gosp.
terakota
A: 4,90 m2
hp.85
150
328
110
68
12
12
86
288
67
80
d2
Przedsionek
terakota
A: 3,04 m2
12
158
12
100
46
wc
terakota
A: 2,09 m2
168
108
12
65
65
10
67
150
303
150
150
790
834
o1
hp.85
86
34
24 10
d=15
hp.90
132
-0.32
125
725
125
25
35
185
310
22
34
24
441
125
10
150
150
107 5
150
25
210
17 5
up drewn. d=25cm
243
1 224
2 x 15
35
529
o1
100
B
1
120
150
120
60
35
22
12
34
100
210
60
60
149
150
132 5
107 5
107 5
150
-0.02
d1
25
12 5
120
o2
A
322
40
o1
12 5
240
344
150
150
34
240
220
10
224
1135
5
85 28
d=15
24
34
22
15
15
132 5
120
12 5
22
kuchnia
terakota
A: 13,02 m2
h=150
dg
C
38
d3
181
12
12 60
137
150
150
342
Pokój
wyk adzina dywanowa
A: 11,40 m2
±0.00
308
88
90
90
205
80
110
12
12
Hol + korytarz
wyk adzina dywanowa
A: 7,83 m2
azienka
terakota
A: 5,10 m2
150
27
766
150
12
hp.85
64
342
308
77
14x27
12
24
494
Salon + jadalnia
wyk adzina dywanowa
A: 22,35 m2
20 20
291
50
39
193
wy az na
strych
60x80
291
343
377
90
373
B
24 10
34
80
205
d3
90
205
90
205
went.
d=15
B'
A
218
korytarz
terakota
A: 1,83 m2
12
12
d2
238
27
d2
12
571
90
18
12
108
50
90
205
12
1412
90
12
181
12
24
283
240
495
27x27
Pokój
wyk adzina dywanowa
A: 9,30 m2
d2
24 30
263
533
278
Pokój
wyk adzina dywanowa
A: 11,55 m2
13
10
d5 180
90
12
12
garaz
terakota
A: 18,12 m2
15
hp.30
15
12
12
108
20 20 20
d=15
14
25
320
12
33
343
343
12
18
90
205
12
d4
hp.85
150
271
88
60
h=150
o2
820
15
15
35
±0.00
230
60 18
h=150
o2
60
25
60
783
50
60
60
297
600
12
16x16
153
218
320
90
60
60
taras
35
80
205
60
90
205
885
o1
180
180
235
h=150
15
d4
24
34
170
o1
d=15
hp.30
10
150
34
60
60
A
34
A'
15
15
o2
155
22
150
22
34
24 10
122
150
150
1465
90
205
885
d2
15
1 180
1 224
90
34
344
344
60
150
150
22
1
35
4
A
5
2 x 15
35
RZUT PARTERU
C
125
25
725
378
35
1 568
5
4
Uwagi :
- otwory okienne zwymiarowano w obrysie muru
- otwory drzwiowe wewn trzne zwymiarowano w obrysie muru skrzyd a + o cie nica
- przewody wentylacyjne w kominach z kszta tek 19x19 ceramicznych
i kamionkowych 20x20 ( 16x16)
- przewody wentylacyjne w sufitach - wywietrzaki d=150
3
2
Przedstawiony rysunek jest chroniony prawem autorskim firmy MG PROJEKT
03-112 Warszawa ul.Uczniowska tel. (22) 676-66-83 fax (22) 676-66-82 mob. 600-392-884
www.mgprojekt.com.pl
PRZEKRÓJ
+4,35
=44
,5%
L 120x120x10 L=150
245 5
24*
%
4,5
231
216
=4
24*
+5,21
+5,08
154 5
dachówka ceramiczna ***
aty drewniane 5x5 cm
kontr aty 2,5x5 cm
wiatroizolacja
pas górny 17x5 cm
L 120x120x10 L=150
+3,53
obróbka blacharska
obróbka blacharska
5 o 12
strz. o 6 co 10/20 cm
28
100
35
65
10
4 o 16
strz. o 6 co 30 cm
10
76
35
marmolit
28 2
-0,02
130
63
10
98
4 o 16
strz. o 6 co 30 cm
styropian * 6 cm
±0,00
9
-0,02
-0,32
35
30 2
marmolit
10
styropian * 6 cm
85
210
264
262
150
150
85
pianka poliuretanowa 10 cm ******
261
150
2 o 12
strz. o 6 co 35 cm
pas dolny 5x17 cm (we na ** 20+5 cm)
paroizolacja
sufit G-K na profilach stalowych 5 cm
537 5
wiatrownica 3 x 29,5 cm
51
+2,61
26 4
+2,63
26
+2,65
85
539 5
wiatrownica 3 x 29,5 cm
27 29 5
91
styropian * 10 cm
chudy beton
B7,5 gr. 10 cm
chudy beton
B7,5 gr. 10 cm
wyk adzina dywanowa
szlichta B15 zbrojona siatk o 6 co 20 - 7 cm
styropian 15 cm *
3x folia PE 0,2 mm
chudy beton B10 - 15 cm
piasek zag szczany warstwami - ok 35 cm
grunt rodzimy
terakota
szlichta B15 zbrojona siatk o 6 co 20 - 7 cm
styropian 15 cm *
3x folia PE 0,2 mm
chudy beton B10 - 15 cm
piasek zag szczany warstwami - ok 35 cm
grunt rodzimy
* proponowane rodzaje styropianu w zale no ci od miejsca zastosowania:
1. balkon/pod oga (w tym na gruncie) - "Termo Organika dach - pod oga"
2. dach / stropodach - "Termo Organika dach - pod oga"
3. ciany zewn trzne - "Termo Organika fasada"
4. fundamenty
- "Termo Organika fundament"
dla budynków o podwy szonej energooszcz dno ci:
1. balkon/pod oga (w tym na gruncie) "Termo Organika Termonium dach - pod oga"
2. ciany zewn trzne - "Termo Organika Termonium Plus fasada"
3. fundamenty
- "Termo Organika Termonium fundament"
** proponowana we na mineralna/szklana w zale no ci
od miejsca zastosowania:
"We na Knauf Insulation w Ecose Technology"
1. dach sko ny - Classic 032; Classic 039; Unifit 035; Unifit 039
2. strop drewniany - Classic 039; Classic 044
3. fasada wentylowana - TP 116 ; TP 435 B; TP 425 B ; TPM 135
*** proponowane rodzaje pokrycia dachowego
1.
2.
3.
4.
5.
"Dachówka ceramiczna Creaton"
"Dachówka cementowa Euronit"
Blacho-dachówka
Blacha p aska, czona listwowo
Gont bitumiczny
**** kompletny system ocieple Termo Organika
***** deska elewacyjna Cedral
****** w razie zmiany materia u np. na styropian lub we
mineraln
grubo ocieplenia dostosowa do obowi zuj cych przepisów
Przedstawiony rysunek jest chroniony prawem autorskim firmy MG PROJEKT
03-112 Warszawa ul.Uczniowska tel. (22) 676-66-83 fax (22) 676-66-82 mob. 600-392-884
www.mgprojekt.com.pl
ELEWACJE
elewacja frontowa :
elewacja boczna :
Przedstawiony rysunek jest chroniony prawem autorskim firmy MG PROJEKT
03-112 Warszawa ul.Uczniowska tel. (22) 676-66-83 fax (22) 676-66-82 mob. 600-392-884
www.mgprojekt.com.pl
ELEWACJE
elewacja ogrodowa :
elewacja boczna :
Przedstawiony rysunek jest chroniony prawem autorskim firmy MG PROJEKT
03-112 Warszawa ul.Uczniowska tel. (22) 676-66-83 fax (22) 676-66-82 mob. 600-392-884
www.mgprojekt.com.pl