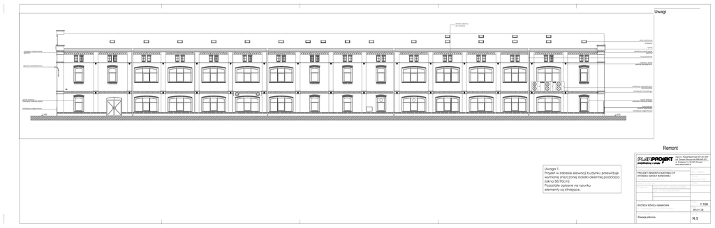
R5 elewacja północna

Transkrypt

R5 elewacja północna
Uwagi
stolarka okienna
do wymiany
okno dachowe
istniejące
rynna
ozdobne zwieńczenie
gzymsu
ozdobne zwieńczenie
gzymsu
rura spustowa
ozdobny detal
prętów spinających
oprawa oświetleniowa
instalacja wentylacyjna
klimatyzacja
instalacja monitoringu
otwór okienny
osłonięty stalową siatką
otwór okienny
osłonięty stalową siatką
ogrodzenie/
brama wjazdowa
instalacja odgromowa
instalacja odgromowa
+ 0,00
+ 0,00
Remont
mgr inż. Paweł Majchrzak 607-247-407
inż. Damian Skrzypczak 696-045-221
ul. Podlaska 13, 60-623 Poznań
www.planprojekt.pl
Uwaga 1.
Projekt w zakresie elewacji budynku przewiduje
wymianę zniszczonej stolarki okiennej poddasza
(okna 50/70cm)
Pozostałe opisane na rysunku
elementy są istniejące.
Nazwa i adres obiektu budowlanego:
Stadium:
PROJEKT REMONTU BUDYNKU CP
WYŻSZEJ SZKOŁY BANKOWEJ
PROJ. REMONTU
Poznań, ul. Ratajczaka 5/7
ARCHITEKTURA
Zespół projektowy:
Podpis:
Projektant:
Branża:
mgr inż. arch. Jarosław Bzdręga
upr. nr OKK/UpB/8/2006
Inwestor:
WYŻSZA SZKOŁA BANKOWA
Al. Niepodległości 2, 61-874 Poznań
Tytuł rysunku:
Elewacja północna
Skala:
Data:
1:100
2014 11 26
Nr rys.:
R.5