Zakopiańska-002-026-PN-2015-07

Transkrypt

Zakopiańska-002-026-PN-2015-07
SZCZEGÓŁY (SKALA 1:10)
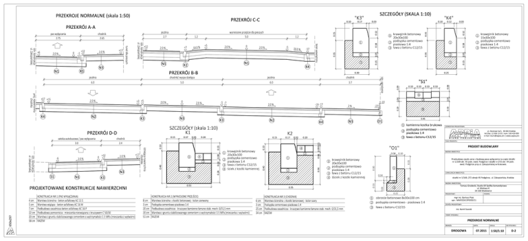
PRZEKROJE NORMALNE (skala 1:50)
"K3"
PRZEKRÓJ C-C
0.10
0.17
"K4"
0.03
0.10
0.12
0.03
K1
3
0.
12
ława z betonu C12/15
2
0.
05
3
piaskowa 1:4
3
0.
15
2
1
2
0.
18
2
podsypka cementowo
piaskowa 1:4
3
ława z betonu C12/15
K4
N3
N1
-17
N1
K2
0.
15
0.
15
10.
0%
1
krawężnik betonowy
15x30x100
podsypka cementowo
0.
35
-5
2.
0%
1
20x30x100
0.
18
0
2.
0%
krawężnik betonowy
1
PRZEKRÓJ B-B
0.30
chodnik/ wyspa dzieląca
jezdnia
chodnik
6.0
5.0
6.0
3.7
"S1"
0.10
0.10
0.10
0.10
K4
+3 +5
N2
0
2.
0%
N3
K3
-22
-5 -7
2.
0%
K3
zatoka autobusowa / pas wyłączania
chodnik
3.0
2.4
0.15
0.17
0.03
2%
-27
3
0.45
N2
O1
N3
K4
1
SZCZEGÓŁY (skala 1:10)
K1
PRZEKRÓJ D-D
-19 -17
2.
0%
2
2
0.15
0.17
kamienna kostka brukowa
JEDNOSTKA PROJEKTOWA:
podsypka cementowo
ul. Zbożowa 5a/1, 30-002 Kraków
piaskowa 1:4
K2
0.20
0.
05
2.
0%
0.
19
+17 +15
0.
04
1
0.
19
pr
oj
.nawi
er
z
chni
a
chodni
ka
i
s
t
n.ogr
odz
eni
e
jezdnia
0.25
0.
08
N1
1.2
0.
09
0%
2.
-1
+5
0%
10.
+7
2.
0%
5.0
0.
05
+17
+12
1.2
t
er
enwewnęt
r
z
ny
0
+12
i
s
t
n.kons
t
r
ukcj
a
ul
.Zakopi
ańs
ki
ej
2.
0%
2.65
t
uneldl
api
es
z
ych
i
s
t
n.kons
t
r
ukcj
a
ul
.Zakopi
ańs
ki
ej
+6
2.7
0.
15
2.75
wyniesione przejście dla pieszych
jezdnia
chodnik
0.
35
pas wyłączania
0.
12
PRZEKRÓJ A-A
0.03
3
0.20
tel./fax: 12 393 13 35 | kom. 530 429 000
e-mail: [email protected] | www.appia.pro
ława z betonu C12/15
N1
3
4
ława z betonu C12/15
ściek z kostki kamiennej
0.10
krawężnik betonowy
0.
15
1
piaskowa 1:4
20x30x100
2
2
3
podsypka cementowo
piaskowa 1:4
3
3
K3
0.
090.
01
1
0.
04
podsypka cementowo
NAZWA INWESTYCJI
0.08
0.
30
2
0.
10
0.
13
20x30x100
2
2
2
4
śściek z kostki kamiennej
650x297
4 cm
Warstwa ścieralna - beton asfaltowy AC 11 S
8 cm
Warstwa ścieralna z kostki betonowej - kolor czerwony
6 cm
Warstwa ścieralna z kostki betonowej - kolor szary
5 cm
Warstwa wiążąca - beton asfaltowy AC 16 W
3 cm
Podsypka cementowo-piaskowa 1:4
3 cm
Podsypka cementowo-piaskowa 1:4
7 cm
Podbudowa zasadnicza beton asfaltowy AC 16 P
20 cm
Podbudowa zasadnicza - kruszywo kamienne łamane stab. mech. 0/31,5 mm
25 cm
Podbudowa zasadnicza - kruszywo kamienne łamane stab. mech. 0/31,5 mm
22 cm
Podbudowa pomocnicza - mieszanka niezwiązana z kruszywem C 50/30
20 cm
Warstwa z gruntu stabilizowanego cementem o wytrzymałości 1.5 MPa (mieszanka z wytwórni)
34 cm
RAZEM
20 cm
Warstwa z gruntu stabilizowanego cementem o wytrzymałości 1.5 MPa (mieszanka z wytwórni)
51 cm
RAZEM
58 cm
RAZEM
0.
03
0.
13
1
działki nr 1/169, 272 obręb 45 Podgórze, ul. Zakopiańska, Kraków
NAZWA INWESTORA:
Tomasz Grodecki, Studio 69 Spółka komandytowa
3
ul. Wałowa 4
34-100 Wadowice
0.22
KONSTRUKCJA NR 3 (CHODNIK)
ewid. Podgórze przy ul. Zakopiańskiej w Krakowie.
LOKALIZACJA INWESTYCJI:
0.55
KONSTRUKCJA NR 2 (WYNIESIONE PRZEJŚCIE)
nr 1/169 obr. 45 jedn. ewid. Podgórze i działki nr 272 obr. 44 jedn.
0.04
2
KONSTRUKCJA NR 1 (PAS WYŁĄCZANIA)
Przebudowa zjazdu wraz z budową pasa wyłączenia na części działki
1
ława z betonu C12/15
0.55
PROJEKTOWANE KONSTRUKCJE NAWIERZCHNI
PROJEKT BUDOWLANY
"O1"
0.
28
S1
4
krawężnik betonowy
4
0.
36
N3
1
1
0.
40
+17
0.
08
0%
2.
0.
04
+12
0.
24
0
0.
40
0%
2.
i
s
t
ni
ej
ącanawi
er
z
chni
a
chodni
ka
i
s
t
n.kons
t
r
ukcj
a
ul
.Zakopi
ańs
ki
ej
-6
0.
10
FAZA PROJEKTU:
PROJEKTANT:
obrzeże betonowe 8x30x100 cm
PODPIS:
mgr inż. Bartosz Ptak
upr.: MAP/0267/POOD/11
2
podsypka cementowo - piaskowa 1:4
3
ława z betonu C12/15
ZESPÓŁ PROJEKTOWY:
inż. Kamil Szarek
TEMAT RYSUNKU:
PRZEKROJE NORMALNE
BRANŻA:
DROGOWA
DATA:
07.2015
SKALA:
1:50/1:10
NR RYSUNKU:
D-2