B.V. F.K B.V. F.K

Transkrypt

B.V. F.K B.V. F.K
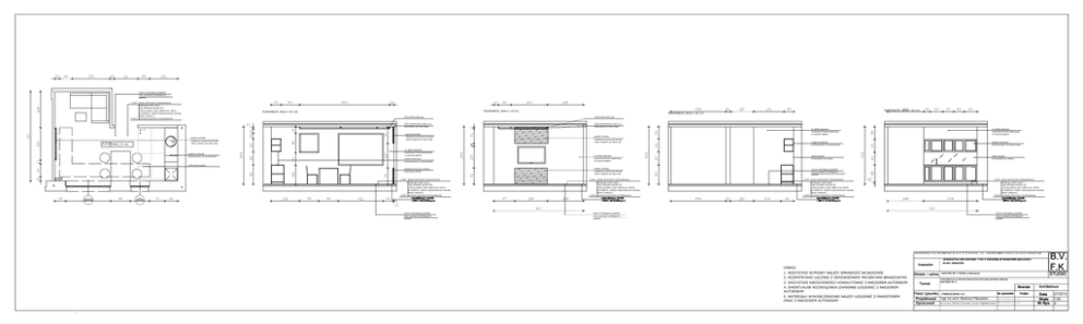
skucie istniejącej posadzki
oraz usunięcie istniejacych
powłok
1,5cm deska barlinecka trójwarstwowa
kolekcja smaki życia
dąb affogato grande lub
równorzędna (szer.180mm gr.14mm,
dł.2200mm, deska trójwarstwowa twarda,
lakier matowy).
3,0cm wylewka betonowa wyrównawcza
panele ścienne
okładzina kamienna kamień
-płyty klejone do płyty osb
meble kuchenne
wykonywane na zamówienie
ROZWINIĘCIE, SKALA 1:50, D-A
ROZWINIĘCIE, SKALA 1:50, B-C
ROZWINIĘCIE, SKALA 1:50, A-B
ROZWINIĘCIE, SKALA 1:50, C-D
mocowanie płyt g-g
mocowanie płyt g-g
sufit podwieszony płyty g-k
malowane na kolor biały
sufit podwieszony płyty g-k
malowane na kolor biały
panele ścienne
okładzina kamienna kamień
-płyty klejone do płyty osb
2x gładź gipsowa
malowanie farbą lateksową
w kolorze białym
meble kuchenne
wykonywane na zamówienie
2x gładź gipsowa
malowanie farbą lateksową
w kolorze białym
2x gładź gipsowa
malowanie farbą lateksową
w kolorze białym
meble kuchenne
wykonywane na zamówienie
meble kuchenne
wykonywane na zamówienie
2x gładź gipsowa
malowanie farbą lateksową
w kolorze białym
szkło lacobel
montowane do ściany
szkło lacobel
montowane do ściany
panele ścienne
okładzina kamienna kamień
-płyty klejone do płyty osb
skucie istniejącej posadzki
oraz usunięcie istniejacych
powłok
panele ścienne
okładzina kamienna kamień
-płyty klejone do płyty osb
sufit podwieszany
okładzina drewno ciemne
olejowane 20x20
1,5cm deska barlinecka trójwarstwowa
kolekcja smaki życia
dąb affogato grande lub
równorzędna (szer.180mm gr.14mm,
dł.2200mm, deska trójwarstwowa twarda,
lakier matowy).
3,0cm wylewka betonowa wyrównawcza
skucie istniejącej posadzki
oraz usunięcie istniejacych
powłok
1,5cm deska barlinecka trójwarstwowa
kolekcja smaki życia
dąb affogato grande lub
równorzędna (szer.180mm gr.14mm,
dł.2200mm, deska trójwarstwowa twarda,
lakier matowy).
3,0cm wylewka betonowa wyrównawcza
1,5cm deska barlinecka trójwarstwowa
kolekcja smaki życia
dąb affogato grande lub
równorzędna (szer.180mm gr.14mm,
dł.2200mm, deska trójwarstwowa twarda,
lakier matowy).
3,0cm wylewka betonowa wyrównawcza
1,5cm deska barlinecka trójwarstwowa
kolekcja smaki życia
dąb affogato grande lub
równorzędna (szer.180mm gr.14mm,
dł.2200mm, deska trójwarstwowa twarda,
lakier matowy).
3,0cm wylewka betonowa wyrównawcza
skucie istniejącej posadzki
oraz usunięcie istniejacych
powłok
skucie istniejącej posadzki
oraz usunięcie istniejacych
powłok
BARBARA FILIPOWSKA B.V.F.K STUDIO, UL. ROZRYWKA 20/12 31-419 KRAKÓW
Inwestor
JEDNOSTKA WOJSKOWA 1155 Z SIEDZIBĄ W KRAKOWIE-BALICACH
30-901 KRAKÓW
UWAGI:
1. WSZYSTKIE WYMIARY NALEŻY SPRAWDZIĆ NA BUDOWIE
Obiekt i adres
2. ROZPATRYWAĆ ŁĄCZNIE Z ODPOWIEDNIMI PROJEKTAMI BRANŻOWYMI
3. WSZYSTKIE NIEZGODNOŚCI KONSULTOWAĆ Z NADZOREM AUTORSKIM
4. EWENTUALNE ROZWIĄZANIA ZAMIENNE UZGODNIĆ Z NADZOREM
AUTORSKIM
5. MATERIAŁY WYKOŃCZENIOWE NALEŻY UZGODNIĆ Z INWESTOREM
ORAZ Z NADZOREM AUTORSKIM
GSPublisherEngine 0.92.100.100
Temat
Treść rysunku
Projektował
Opracował
BUDYNEK
BUDYNEKNR
NR17
1 WOSzk w Zakopanem
B.V.
F.K
STUDIO
"DOKUMENTACJA PROJEKTOWO-KOSZTORYSOWA NAPRAWY WNĘTRZ
BUDYNEK NR
BUDYNKÓW
NR17
17,1 I2 WOSzK W ZAKOPANEM"
Branża
POMIESZCZENIE 4.2.2
mgr inż.arch. Barbara Filipowska
mgr inż.arch. Barbara Filipowska, inż.arch. Magdalena Siwek
Nr uprawnień
Podpis
MPOIIA/021/201
MPOIIA/021/201
Architektura
07/2013
Data
Skala 1:50
Nr Rys. 4