Załącznik 5b - Przedsiębiorstwo Komunalne Spółka z oo

Transkrypt

Załącznik 5b - Przedsiębiorstwo Komunalne Spółka z oo
z dnia: 2012/11/17
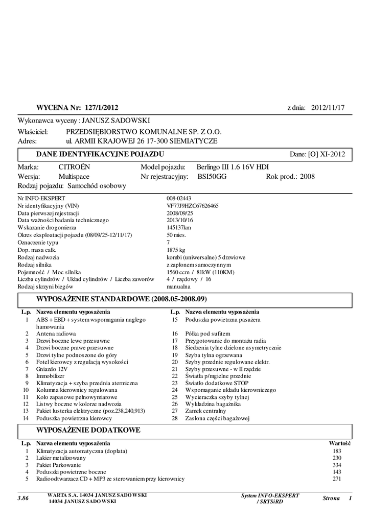
WYCENA Nr: 127/1/2012
Wykonawca wyceny : JANUSZ SADOWSKI
Właściciel:
Adres:
PRZEDSIĘBIORSTWO KOMUNALNE SP. Z O.O.
ul. ARMII KRAJOWEJ 26 17-300 SIEMIATYCZE
Dane: [O] XI-2012
DANE IDENTYFIKACYJNE POJAZDU
Marka:
CITROËN
Wersja:
Multispace
Rodzaj pojazdu: Samochód osobowy
Model pojazdu:
Nr rejestracyjny:
Nr INFO-EKSPERT
Nr identyfikacyjny (VIN)
Data pierwszej rejestracji
Data ważności badania technicznego
Wskazanie drogomierza
Okres eksploatacji pojazdu (08/09/25-12/11/17)
Oznaczenie typu
Dop. masa całk.
Rodzaj nadwozia
Rodzaj silnika
Pojemność / Moc silnika
Liczba cylindrów / Układ cylindrów / Liczba zaworów
Rodzaj skrzyni biegów
Berlingo III 1.6 16V HDI
BSI50GG
Rok prod.: 2008
008-02443
VF77J9HZC67626465
2008/09/25
2013/10/16
145137km
50 mies.
7
1875 kg
kombi (uniwersalne) 5 drzwiowe
z zapłonem samoczynnym
1560 ccm / 81kW (110KM)
4 / rzędowy / 16
manualna
WYPOSAŻENIE STANDARDOWE (2008.05-2008.09)
L.p. Nazwa elementu wyposażenia
1 ABS + EBD + system wspomagania naglego
hamowania
2 Antena radiowa
3 Drzwi boczne lewe przesuwne
4 Drzwi boczne prawe przesuwne
5 Drzwi tylne podnoszone do góry
6 Fotel kierowcy z regulacją wysokości
7 Gniazdo 12V
8 Immobilizer
9 Klimatyzacja + szyba przednia atermiczna
10 Kolumna kierownicy regulowana
11 Koło zapasowe pełnowymiarowe
12 Listwy boczne w kolorze nadwozia
13 Pakiet lusterka elektryczne (poz.238,240,913)
14 Poduszka powietrzna kierowcy
L.p. Nazwa elementu wyposażenia
15 Poduszka powietrzna pasażera
16
17
18
19
20
21
22
23
24
25
26
27
28
Półka pod sufitem
Przygotowanie do montażu radia
Siedzenia tylne dzielone asymetrycznie
Szyba tylna ogrzewana
Szyby przednie regulowane elektr.
Szyby przesuwne - w II rzędzie
Światła p/mgielne przednie
Światło dodatkowe STOP
Wspomaganie układu kierowniczego
Wycieraczka szyby tylnej
Wykładzina bagażnika
Zamek centralny
Zasłona części bagażowej
WYPOSAŻENIE DODATKOWE
L.p.
1
2
3
4
5
3.86
Nazwa elementu wyposażenia
Klimatyzacja automatyczna (dopłata)
Lakier metalizowany
Pakiet Parkowanie
Poduszki powietrzne boczne
Radioodtwarzacz CD + MP3 ze sterowaniem przy kierownicy
WARTA S.A. 14034 JANUSZ SADO WSKI
14034 JANUSZ SADO WSKI
Wartość
183
230
334
143
271
System INFO-EKSPERT
/ SRTSiRD
Strona
1
127/1/2012
OPIS ZAMONTOWANEGO W POJEŹDZIE OGUMIENIA
Koło
Przednie lewe:
Przednie prawe:
Tylne lewe:
Tylne prawe:
Marka, typ
MICHELIN 205/65
MICHELIN 205/65
MICHELIN 205/65
MICHELIN 205/65
R15
R15
R15
R15
94T
94T
94T
94T
Bieżnik [mm] Zużycie [% ]
6,0
38
6,0
38
5,0
52
5,0
52
ENERGY XT2
ENERGY XT2
ENERGY XT2
ENERGY XT2
KOREKTY
WARTOŚĆ BAZOWA NETTO (54 mies.)
....................................
KOREKTA ZA WYPOSAŻENIE DODATKOWE
..............................
KOREKTA ZA PIERWSZĄ REJESTRACJĘ
...................................
KOREKTA ZA PRZEBIEG
................................................
KOREKTA ZA OGUMIENIE
..............................................
KOREKTY RÓŻNE
......................................................
W tym:
Szczególny charakter eksploatacji
[%]
-5,0
23 780 PLN
1 161 PLN
712 PLN
- 3 087 PLN
82 PLN
- 1 128 PLN
Wartość
-1 128
Wartość rynkowa netto wyżej zidentyfikowanego pojazdu, określona na dzień wykonania opinii wynosi:
21500 PLN
(słownie: dwadzieścia jeden tysięcy pięćset złotych)
Wartość określono na podstawie:
- notowań wartości rynkowych z katalogu 'Pojazdy Samochodowe - Wartości Rynkowe XI-2012 '
zaakceptowanych przez wykonawcę opinii,
- korekt mających wpływ na wartość pojazdu
3.86
WARTA S.A. 14034 JANUSZ SADO WSKI
14034 JANUSZ SADO WSKI
System INFO-EKSPERT
/ SRTSiRD
Strona
2