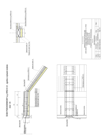
PW - rys.8. ściek podchodnikowy

Transkrypt

PW - rys.8. ściek podchodnikowy
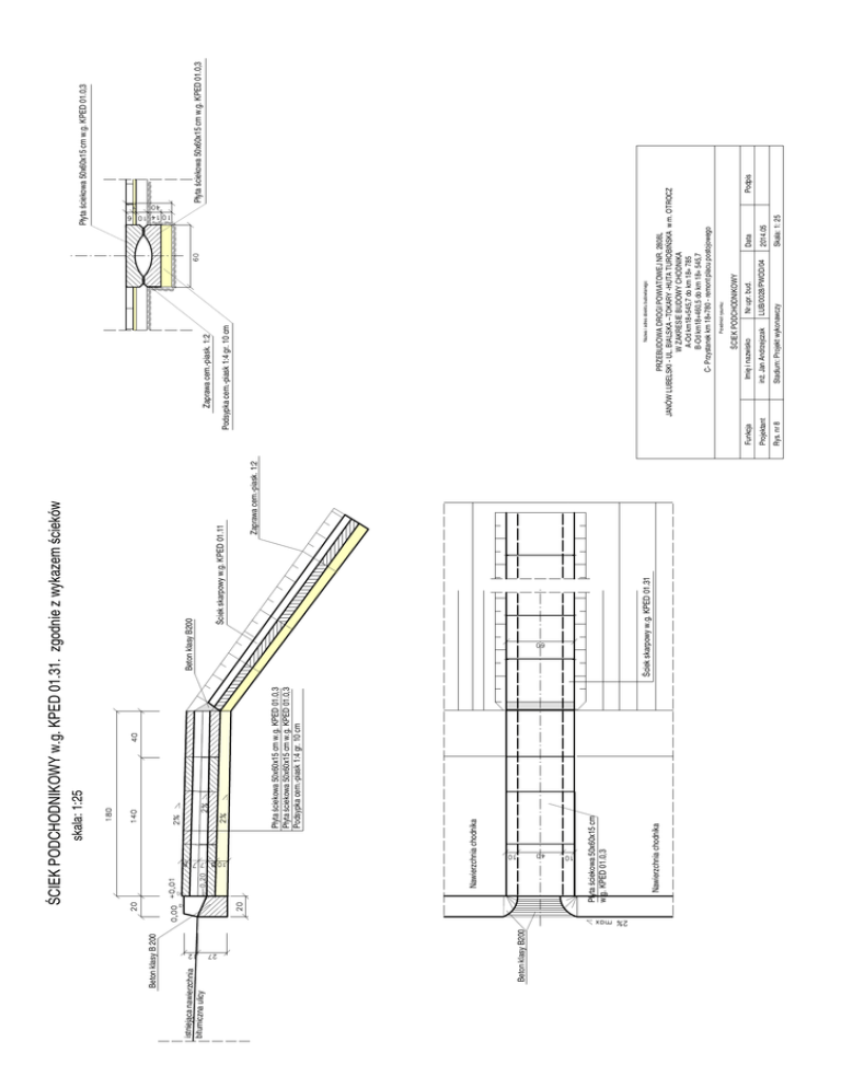
Beton klasy B200
istniejąca nawierzchnia
bitumiczna ulicy
Beton klasy B 200
Nawierzchnia chodnika
Płyta ściekowa 50x60x15 cm
w.g. KPED 01.0,3
Nawierzchnia chodnika
Płyta ściekowa 50x60x15 cm w.g. KPED 01.0,3
Płyta ściekowa 50x60x15 cm w.g. KPED 01.0,3
Podsypka cem.-piask 1:4 gr. 10 cm
skala: 1:25
Ściek skarpowy w.g. KPED 01.31
Zaprawa cem.-piask. 1:2
Ściek skarpowy w.g. KPED 01.11
Beton klasy B200
ŚCIEK PODCHODNIKOWY w.g. KPED 01.31. zgodnie z wykazem ścieków
Płyta ściekowa 50x60x15 cm w.g. KPED 01.0,3
Stadium: Projekt wykonawczy
Skala: 1: 25
2014.05
Rys. nr 8
Data
LUB/0028/PWOD/04
inż. Jan Andrzejczak
Projektant
Nr upr. bud.
Imię i nazwisko
Funkcja
ŚCIEK PODCHODNIKOWY
Przedmiot rysunku:
Podpis
PRZEBUDOWA DROGI POWIATOWEJ NR. 2808L
JANÓW LUBELSKI - UL. BIALSKA –TOKARY -HUTA TUROBIŃSKA w m. OTROCZ
W ZAKRESIE BUDOWY CHODNIKA
A-Od km18+545,7 do km 18+ 785
B-Od km18+460,5 do km 18+ 545,7
C- Przystanek km 18+780 - remont placu postojowego
Nazwa i adres obiektu budowlanego:
Podsypka cem.-piask 1:4 gr. 10 cm
Zaprawa cem.-piask. 1:2
Płyta ściekowa 50x60x15 cm w.g. KPED 01.0,3