WYDRUK GODÓW

Transkrypt

WYDRUK GODÓW
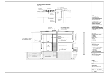
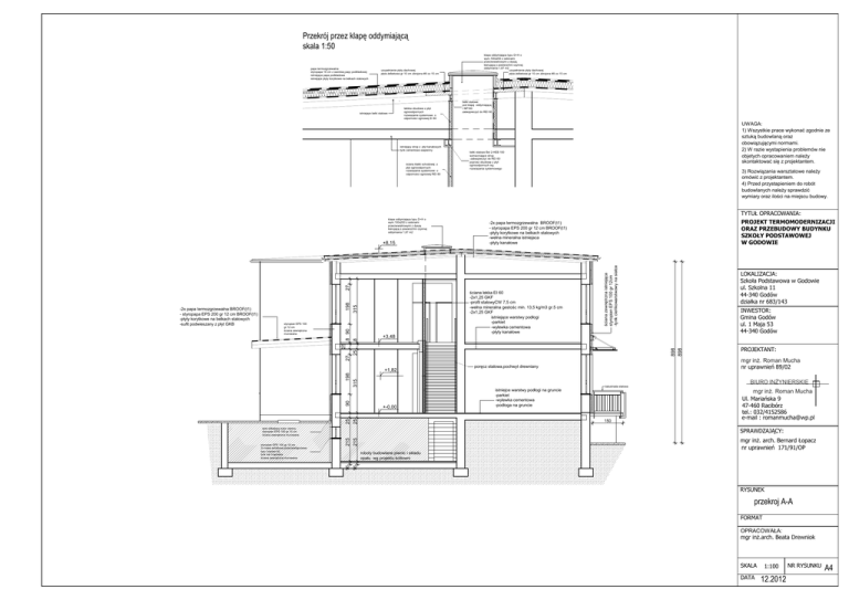
Przekrój przez klapę oddymiającą
skala 1:50
uzupełnienie płyty dachowej
płyta Ŝelbetowa gr 10 cm zbrojona #8 co 15 cm
lekkka obudowa z płyt
ognioodpornych
rozwiazanie systemowe o
odporności ogniowej EI 60
istniejące belki stalowe
istniejący strop z płyt kanałowych
tynk cementowo-wapienny
ściana klatki schodowej z
płyt ognioodpornych
rozwiazanie systemowe o
odporności ogniowej REI 60
klapa oddymiająca typu D+H o
wym.100x200 z osłonami
przeciwwiatrowymi z dyszą
kierującą o powierzchni czynnej
oddymiania 1,87 m2
TYTUŁ OPRACOWANIA:
PROJEKT TERMOMODERNIZACJI
ORAZ PRZEBUDOWY BUDYNKU
SZKOŁY PODSTAWOWEJ
W GODOWIE
-2x papa termozgrzewalna BROOF(t1)
- styropapa EPS 200 gr 12 cm BROOF(t1)
-płyty korytkowe na belkach stalowych
-wełna mineralna istniejaca
-płyty kanałowe
ściana lekka EI 60
-2x1,25 GKF
-profil stalowyCW 7,5 cm
-wełna mineralna gestośc min. 13,5 kg/m3 gr.5 cm
-2x1,25 GKF
istniejące warstwy podłogi
-parkiet
-wylewka cementowa
-płyty kanałowe
315
198
8 90
8
3) Rozwiązania warsztatowe naleŜy
omówić z projektantem.
4) Przed przystapieniem do robót
budowlanych naleŜy sprawdzić
wymiary oraz ilości na miejscu budowy.
INWESTOR:
Gmina Godów
ul. 1 Maja 53
44-340 Godów
898
898
25
27
mgr inŜ. Roman Mucha
nr uprawnień 89/02
poręcz stalowa,pochwyt drewniany
315
PROJEKTANT:
BIURO INśYNIERSKIE
balustrada stalowa
+-0,00
25
25
90
198
+1,82
istniejce warstwy podłogi na gruncie
-parkiet
-wylewka cementowa
-podłoga na gruncie
150
tynk silikatowy kolor ciemny
styropian EPS 100 gr.10 cm
ściana zewnętrzna murowana
mgr inŜ. Roman Mucha
Ul. Mariańska 9
47-460 Racibórz
tel.: 032/4152586
e-mail : [email protected]
215
SPRAWDZAJĄCY:
215
mgr inŜ. arch. Bernard Łopacz
nr uprawnień 171/91/OP
roboty budowlane piwnic i składu
opału wg projektu kotłowni
16
styropian EPS 100 gr.10 cm
2x masa asfaltowa przeciwwilgociowa
typu Izoplast KL
tynk kat I/rapówka
ściana zewnętrzna murowana
LOKALIZACJA:
Szkoła Podstawowa w Godowie
ul. Szkolna 11
44-340 Godów
działka nr 683/143
+3,48
25
styropian EPS 100
gr.12 cm
ściana zewnętrzna
murowana
16
-2x papa termozgrzewalna BROOF(t1)
- styropapa EPS 200 gr 12 cm BROOF(t1)
-płyty korytkowe na belkach stalowych
-sufit podwieszany z płyt GKB
UWAGA:
1) Wszystkie prace wykonać zgodnie ze
sztuką budowlaną oraz
obowiązującymi normami.
2) W razie wystapienia problemów nie
objetych opracowaniem naleŜy
skontaktować się z projektantem.
belki stalowe Bst 2-HEB 100
wzmacniające strop
-zabezpieczyć do REI 60
poprzez obudowę z płyt
ognioodpornych wg
rozwiazania systemowego
27
+8,15
belki stalowe
pod klapę oddymiającą
I NP160
zabezpieczyć do REI 60
ściana zewnętrzna istniejąca
styropian EPS 100 gr 12cm
-tynk cieńkowarstwowy na siatce
papa termozgrzewalna
styropapa 16 cm z warstwą papy podkładowej
istniejąca papa podkładowa
istniejące płyty korytkowe na belkach stalowych
klapa oddymiająca typu D+H o
wym.100x200 z osłonami
przeciwwiatrowymi z dyszą
kierującą o powierzchni czynnej
oddymiania 1,87 m2
uzupełnienie płyty dachowej
płyta Ŝelbetowa gr 10 cm zbrojona #8 co 15 cm
RYSUNEK
przekroj A-A
FORMAT
OPRACOWAŁA:
mgr inŜ.arch. Beata Drewniok
SKALA
DATA
1:100
12.2012
NR RYSUNKU
A4