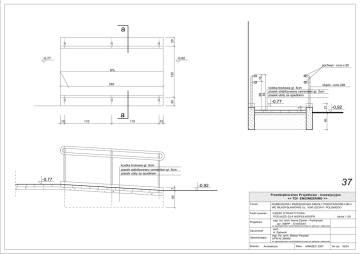
kostka brukowa gr. 6cm piasek stabilizowany cementem gr. 5cm

Transkrypt

kostka brukowa gr. 6cm piasek stabilizowany cementem gr. 5cm
20
a
-0,77
-0,92
pochwyt - rura o 50
15
120
6%
68
83
240
słupki - rura o38
kostka brukowa gr. 6cm
piasek stabilizowany cementem gr. 5cm
piasek ubity ze spadkiem
21
7
20
-0,77
10
110
110
40
a
-0,92
10
kostka brukowa gr. 6cm
piasek stabilizowany cementem gr. 5cm
piasek ubity ze spadkiem
-0,77
37
7
-0,92
40
Przedsiębiorstwo Projektowo - Inwestycyjne
<< TDI ENGINEERING >>
Temat
ROZBUDOWA I PRZEBUDOWA SZKOŁY PODSTAWOWEJ NR 2
WE WŁADYSŁAWOWIE UL. 1000 LECIA P. POLSKIEGO
Treść rysunku
CZĘŚĆ DYDAKTYCZNA
PODJAZD DLA NIEPEŁNOSPR.
skala 1:20
mgr. inż. arch. Iwona Zyman - Frydryszek
upr. WBPP - 7210/53/81
Projektant
w specjalności architektonicznej w pełnym zakresie
Opracował
Sprawdzający
tech.
A. Zgórecki
mgr. inż. arch. Marian Parysek
UPR Nr 266/66
w specjalności architektonicznej w pełnym zakresie
Branża
Archtektura
Data
MARZEC 2007
Nr rys
18/24