G eo d e zyjn a in w e n ta ryzacja lokalu T ka cka B u dynek II p ię tro

Transkrypt

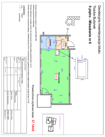
G eo d e zyjn a in w e n ta ryzacja lokalu T ka cka B u dynek II p ię tro
- 1.65 -
- 1.95 -
- 0.95 -
- 0.30 - 3.94 -
- 0.38 - 0.18 -
- 1.18 -
- 0.74 -
- 8.39 -
POK Z KUCHNIĄ
- 1.53 -
- 2.41 -
30.09 m2
- 6.83 -
- 10.50 -
- 0.81 -
- 1.95 -
- 1.52 -
- 2.41 -
ściana
LEGENDA:
wymiary [m]
31.03.2015r.
31.03.2015r.
Data
Nazwisko i Imie (wykonawcy)
podpis
Nazwa lub symbol obiektu:
Tkacka
- szkic pomiaru powierzchni użytkowej - II piętro
Tasma
Nr
Laty
Adrian Zieliński
Pomierzyl
Sprawdzil
Bartosz Woźniczko
Szkic lokalizacji mieszkania nr 5
Obiekt: Tkacka
Poziom: II piętro
Budynek: Tkacka
Mieszkanie nr: 6
Gmina: Miasto Szczecin
Wojew.:
zachodniopomorskie
Pomiaru dokonano na etapie murów. Do otrzymanych wyników dodano grubość tynku 1.5 cm
Pomiaru dokonano na poziomie podłogi, z dokładnością do 0.01m, do powierzchni użytkowej nie dodano (odjęto) występów (wnęk) do pow. 0.1m2
Powierzchnia użytkowa lokalu 37.14m2
- 3.95 -
- 2.00 -
3.89 m2
ŁAZIENKA
- 1.99-
- 2.05 -
3.16 m2
PPOK
Geodezyjna inwentaryzacja lokalu
Tkacka Budynek
II piętro - Mieszkanie nr 6
- 0.30 - 1.22 - 1.95 -
Pomiaru dokonano w oparciu o normę ISO 9836:1997
(definicja powierzchni użytkowej).
- 0.43 -