Części zamienne X Napęd nastawczy AG 2691

Transkrypt

Części zamienne X Napęd nastawczy AG 2691
Części zamienne X
AG 2691
Napęd nastawczy
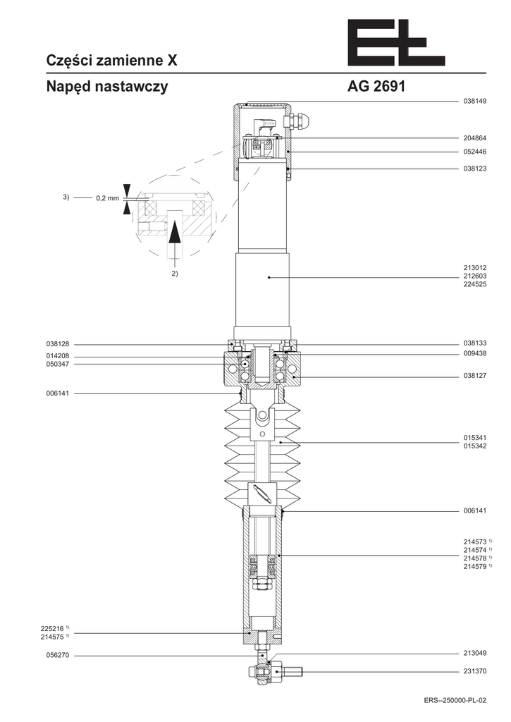
038149
204864
052446
038123
3)
0,2 mm
2)
213012
212603
224525
038128
038133
014208
050347
009438
038127
006141
015341
015342
006141
214573 1)
214574 1)
214578 1)
214579 1)
225216 1)
214575 1)
056270
213049
231370
ERS--250000-PL-02
Erhardt+Leimer GmbH
D-86136 Augsburg
NIEMCY
Telefon +49 (0)821 2435-0
Internet http://www.erhardt-leimer.com
e-mail [email protected]
225223
214591
214592
214593
214594
214573
214574
214578
214579
038129
214576
206263
217065
213044
213045
213046
213047
214579
214607
213048
213011
214608
215347
Napęd nastawczy
006141
009438
014208
015341
015342
038123
038127
038128
038129
038133
038149
050347
052446
056270
204864
206263
212603
213011
213012
213044
213045
213046
213047
213048
213049
214573
214574
214575
214576
214578
214579
214591
214592
214593
214594
214607
214608
215347
217065
224525
225216
225223
231370
Obejma węża
Pierścień zabezpieczający 30 ALx1,5
Podkładka podporowa
Osłona mieszkowa ±175 mm
Osłona mieszkowa ±35/50/75/100 mm
Pierścień uszczelniający
Łożysko stojakowe
Podkładka
Wałek
Podkładka
Korek
Łożysko kulkowe skośne 62x16 DIN 628
Pokrywa
Głowica przegubowa
Czujnik przyrostowy
Kołek sprężysty 5x26
Stałoprądowy silnik przekładniowy i = 28:1
Łożysko igiełkowe
Stałoprądowy silnik przekładniowy i = 16:1
Gwint toczny ±35/50 mm
Gwint toczny ±75 mm
Gwint toczny ±100 mm
Gwint toczny ±175 mm
Podkładka tłumiąca
Podkładka tłumiąca
Osłona ±35/50 mm
Osłona ±75 mm
Tuleja gwintowana (±50/75/100/175 mm)
Element łączący (tylko w przypadku ±100/175 mm)
Osłona ±100 mm (2 sztuki)
Osłona ±175 mm (2 sztuki)
Gwint toczny, komplet ±50 mm
Gwint toczny, komplet ±75 mm
Gwint toczny, komplet ±100 mm
Gwint toczny, komplet ±175 mm
Tuleja z wieńcem
Tuleja z wieńcem
Nakrętka sześciokątna
Przegub wałka
Stałoprądowy silnik przekładniowy i = 4:1
Tuleja gwintowana (±35 mm)
Gwint toczny, komplet ±35 mm
Kołek gwintowany
1) zabezpieczone środkiem Loctite 221
2) ogranicznik osi wirnika po stronie kolektora
3) odległość od najwyższego podzespołu
Zmiany techniczne zastrzeżone