DP.MB.A4.B2-1_rys 13_35 - przetargi.plk

Transkrypt

DP.MB.A4.B2-1_rys 13_35 - przetargi.plk
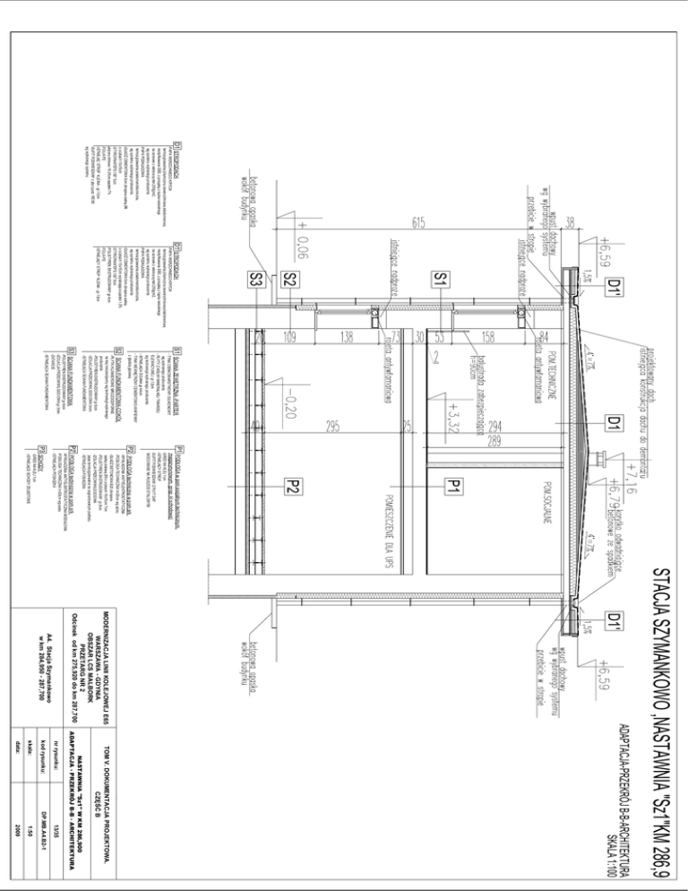
D1 STROPODACH
-PAPA WIERZCHNIEGO KRYCIA
termozgrzewalna,bitumiczna,nawierzchniowa,elastomerowa,
modyfikowana SBS, z posypką z łupka naturalnego
na osnowie z włokna syntet.250g/m2,
wg.systemu wybranego producenta
-PAPA PODKŁADOWA
termozgrzewalna,elastomerobitumiczna,
wg.systemu wybranego producenta
-GŁADś CEMENTOWA 5cm zbrojona siatką Ø6
o oczkach 15x15cm
-STYROPIAN"EPS 100" 5cm
ułoŜony klinowo 15-35cm,spadek 7%
-FOLIA PE
-ISTNIEJĄC STROP KLEINA - gr.13cm
-SUFIT PODWIESZANY z płyt p.poŜ. REI30
wg wybranego systemu
D1'
S1
S2
S3
D1' STROPODACH
-PAPA WIERZCHNIEGO KRYCIA
termozgrzewalna,bitumiczna,nawierzchniowa,elastomerowa,
modyfikowana SBS, z posypką z łupka naturalnego
na osnowie z włokna syntet.250g/m2,
wg.systemu wybranego producenta
-PAPA PODKŁADOWA
termozgrzewalna,elastomerobitumiczna,
wg.systemu wybranego producenta
-GŁADś CEMENTOWA 5cm zbrojona siatką
o oczkach 15x15cm wyrabiająca spadek 1,5%
-STYROPIAN"EPS 100" 8cm
-POLISTYREN EKSTRUDOWANY gr.4cm
-FOLIA PE
-ISTNIEJĄCY STROP KLEINA - gr.13cm
S1 ŚCIANA ZEWĘTRZNA -PARTER
D1
- TYNK CIEŃKOWARSTWOWY SILIKONOWY
wg.wybranego producenta
- PŁYTY Z WEŁNY MINERALNEJ TWARDEJ
ELEWACYJNEJ gr.12cm
wg technologii wybranego producenta
- ISTNIEJĄCA ŚCIANA gr.44cm
- TYNK WEWNĘTRZNY CEMENTOWO-WAPIENNY
z gładzią gipsową
S2 ŚCIANA FUNDAMENTOWA-COKÓŁ
-PŁYTKI KLINKIEROWE MROZOODPORNE
na klej mrozoodporny wg technologii wybranego
producenta
-POLISTYREN EKSTRUDOWANY gr.6cm
-IZOLACJA PRZECIWWILGOCIOWA 3mm
-ISTNIEJĄCA ŚCIANA FUNDAMENTOWA
S3 ŚCIANA FUNDAMENTOWA
-POLISTYREN EKSTRUDOWANY gr.6cm
-IZOLACJA PRZECIWWILGOCIOWA gr.3mm
-ZATARCIE
-ISTNIEJĄCA ŚCIANA FUNDAMENTOWA
P1
P2
magazynynowym, gosp.,kl.schodowa)
P1 PODŁOGA w pom.socjalnym,technicznym,
-GRES NA KLEJ 1cm
-ISTNIEJĄCY STROP
-SUFIT PODWIESZANY Z PŁYT GKF
MOCOWANE NA RUSZCIE STALOWYM
P2 PODŁOGA techniczna w pom.srk
-WYKŁADZINA ANTYELEKTROSTATYCZNA
-PODŁOGA TECHNICZNA h=20cm wg.opisu
-GŁADś BETONOWA B20 zbrojona
siatką stalową Ø6 o oczkach 15x15cm 7cm
-POLISTYREN EKSTRUDOWANY gr.8cm
-IZOLACJA PRZECIWWILGOCIOWA
papa termozgrzewalna na zagruntowanym podłoŜu
-ISTNIEJĄCA POSADZKA
-WYKŁADZINA ANTYELEKTROSTATYCZNA MODUŁOWA
-PODŁOGA TECHNICZNA h=20cm wg.opisu
-ISTNIEJĄCA POSADZKA
P2' PODŁOGA techniczna w pom.srk
P3
SCHODY
-GRES NA KLEJ 1cm
-ISTNIEJĄCE SCHODY śELBETOWE
nr rysunku:
13/35
1:50
DP.MB.A4.B2-1
skala:
2009
kod rysunku:
NASTAWNIA "Sz1" W KM 286,900
ADAPTACJA - PRZEKRÓJ B-B - ARCHITEKTURA
TOM V. DOKUMENTACJA PROJEKTOWA.
CZĘŚĆ B
ADAPTACJA-PRZEKRÓJ B-B-ARCHITEKTURA
SKALA 1:100
STACJA SZYMANKOWO ,NASTAWNIA "Sz1"KM 286,9
D1'
MODERNIZACJA LINII KOLEJOWEJ E65
WARSZAWA - GDYNIA
OBSZAR LCS MALBORK
PRZETARG NR 2
Odcinek od km 275,920 do km 287,700
A4. Stacja Szymankowo
w km 284,950 - 287,700
data: