28 - TOLKMICKO

Transkrypt

28 - TOLKMICKO
392/4
129
123/2
122/2
417
proj. KM-1
istn. kabel
ab. ul.Dzia‡yæskiego 14
proj. HDPE 40/3,7
2x2.0ob
378
proj. XzTKMXpw 3x2x0,5/T-3A 2-7b/P1
t. 2.0s‡+4.0prz+4.0ob+27.0z
14
m. 2.0s‡+4.0prz+4.0ob+28.0z
ab. ul. Dzia‡yæskiego 14
306
Kable nieczynne po prze‡„czeniu
proj. HDPE 40/3,7
377
4.0ob
s‡upek T-3A 2-7b
i
9
392/3
nowa lokalizacja
proj. KM-1
istn. kabel
ab. ul.Dzia‡yæskiego 13
istn. s‡upek T-3A 2-7b
do demonta¿u
13
po prze‡„czeniu
305
379
392/1
380
122/2
proj. XzTKMXpw 3x2x0,5/T-3A 2-7b/P2
proj. A110PS
t. 2.0s‡+2.0z
6.0ob
m. 2.0s‡+2.0z
8
ab. ul. Dzia‡yæskiego 13
proj. XzTKMXpw 3x2x0,5/T-3A 2-7b/P3
4
304
376
2-8a
proj. RPCW 110/5,0
5.0ob
proj. KM-1
383
ego
ski
yæ
a‡
D zi
.
ul
ab. ul. Dzia‡yæskiego 12
istn. kabel
proj. A110PS
i
t. 2.0s‡+2.0z
m. 2.0s‡+2.0z
12
T-3A
ab. ul.Dzia‡yæskiego 12
7.0ob
proj. RPCW 110/5,0
382
5.0ob
proj. RPCW 110/5,0
7
375
2.0ob
i
3.0ob
proj. XzTKMXpw 5x4x0,5/T-3A 2-7b
proj. A110PS
3
303
proj. RPCW 110/5,0
Kable nieczynne po prze‡„czeniu
t. 37.0ob+40.0z+2.0s‡
2x5.0ob
m. 37.0ob+42.0z+2.0s‡
2.0ob
302
proj. RPCW 110/5,0
2x5.0ob
6
10
385
ego
ski
yæ
a‡
D zi
.
ul
proj. A110PS
proj. RPCW 110/5,0
2x2.0ob
392/4
proj. A110PS
2
4.0ob
i
t
2-8b
389
10
T-3A
386
i
11
384
381
t
proj. A110PS
388
373
2x6.0ob
301
5
124/2
12
269
270
m
i
392/4
387
1
i
m
i
T-3A
2-7c
proj. A110PS
i
279
278
proj. A110PS
7.0ob
i
14
i
ska
ow
t
yby
Prz
.
ul
i
277
8.00b
do przebudowania
ZR XAGA 500-43/8-150-PO
300
UY-2
istn. XzTKMXw 5x4x0,5/T-3A 2-7c
-
o
g
e
i
k
s
æ
y
‡
a
i
z
D
.
l
u
2
fi
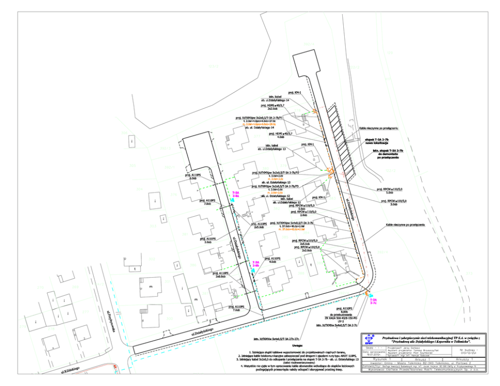
Przebudowa i zabezpieczenie sieci telekomunikacyjnej TPS.A. w zwi„zku z
istn. XzTKMXw 5x4x0,5/T-3A 27b-27c
-
"Przebudow„ ulic Dzia‡yæskiego i Kopernika w Tolkmicku".
EPRT
Uwaga:
Skala - : -
4
307/1
1. Istniej„ce s‡upki kablowe wypoziomowa do projektowanych rzŒdnych terenu,
2. Istniej„ce kable telekomunikacyjne zabezpiecza pod drogami i zjazdami rur„ typu AROT 110PS,
3. Istniej„cy kabel 3x2x0,5 do odkopania i prze‡„czenia na s‡upek T-3A 2-7b - ab. ul. Dzia‡yæskiego 13
(kabel niezinwentaryzowany)
o
g
e
i
k
s
æ
i
l
i
K
.
l
u
4. Wszystkie nie ujŒte w tym opracowaniu kable abonenckie wchodz„ce do s‡upkw kablowych
podlegaj„cych przesuniŒciu nale¿y odkopa i skorygowa przebieg trasy.
307/2
Projektowa‡: Jerzy Gorbacz
Asystent projektanta: Tomasz Brzuszczyæski
Data opracowania
19.01.2012r.
Asystent projektanta: Piotr Szymborski
Nr budowy :
013/12/ZUI
Sprawdzi‡: mgr in¿. Henryk Sobczak
Rysunek 1
Arkusz 1
Arkuszy 1
Inwestor: Gmina - Miasto Tolkmicko 82-340 Tolkmicko, ul. Portowa 2
Zamawiaj„cy:
Obs‡uga Inwestycji Budowlanych mgr in¿. Jacek Hejman
82-300 Elbl„g ul. Przybyszewskiego 15
Wykonawca: Elbl„skie PrzedsiŒbiorstwo Robt Telekomunikacyjnych Sp. z o.o.