pobierz

Transkrypt

pobierz
architecture.graphics.design
10
A:
T:
E:
213
Syrokomli 7/2 | 30-102 | Kraków
+48 500 254 099
[email protected] WWW.VSTK.EU
60
141
wentylacja
SOCI
SW01
pom.soc.
L
lodówka
3,9 m2
pom.soc.
8 m2
SOCI S01
szafka kuchenna
29
SOCI
SW02
półki nad blatem
zlewozmywak 01
223
25
półki nad blatem
mała zmywarka
zlewozmywak 01
278
50
SOCII S01
dozownik do mydła
SOCII S02
SOCI S02
SOC II K01
SOC II K01
280
umywalka nablatowa 02
branża:
ARCHITEKTURA
mała zmywarka
91
SOC II
ST01
50
umywalka nablatowa 02
141
SOCI S03
kuchenka mikrofalowa
Projekt wykonawczy
14
nr projektu:
SOCII S03
szafki kuchenne moduł 60x60 cm
lodówka
dozownik do mydła
SOC II K01
SOCI P01
141
75
SOCI S04
wrzesień 2015
inwestycja:
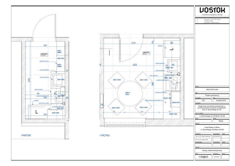
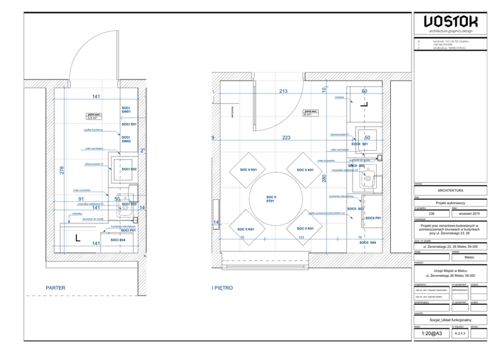
Projekt prac remontowo-budowlanych w
pomieszczeniach biurowach w budynkach
przy ul. Żeromskiego 23, 26
SOC II K01
123
data:
236
SOCII P01
14
kuchenka mikrofalowa
L
etap:
75
SOCII S04
ulica / nr działki:
ul. Żeromskiego 23, 26 Mielec 39-300
obręb:
miasto:
KAN
Mielec
inwestor:
Urząd Miejski w Mielcu
ul. Żeromskiego 26 Mielec 39-300
PARTER
I PIĘTRO
projektanci:
nr uprawnień:
mgr inż. arch. Wojciech Gawinowski
mgr inż. arch. Gabriela Waśko
sprawdzający:
podpis:
MPOIA/055/2010
-
nr uprawnień:
podpis:
rysunek:
Socjal_Układ funkcjonalny
skala:
nr rysunku:
1:20@A3
GSPublisherEngine 0.3.100.12
A.2.4.3
strona: