zt_410 wiata+kosz na śmieci

Transkrypt

zt_410 wiata+kosz na śmieci
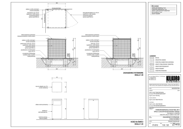
200
P2 CHODNIK
KOSTKA BETONOWA gr. 8 cm
PODSYPKA PIASKOWA gr. 3 cm
GRUNT STABILIZOWANY CEMENTEM
Rm=2,5 MPa gr. 10 cm
GRUNT RODZIMY
ŚCIANA BUDYNKU
podpory o profilu zamkniętym
ze stali ocynkowanej
blacha trapezowa ocynkowana
malowana proszkowo w kolorze szarym
podpory o profilu zamkniętym
ze stali ocynkowanej
podpory o profilu zamkniętym
ze stali ocynkowanej
16
blacha trapezowa ocynkowana
malowana proszkowo w kolorze szarym
posadowienie na fundamentach
wg rys. ZT 411
po wykonaniu fundamentów
posadzkę należy uzupełnić
kostką betonową
210
226
drzwi wys. 210 cm
wypełnienie z siatki stalowej
ocynkowanej ogniowo
wymiar oczek 20x5 cm
210
226
panel boczny i tylny wys. 210 cm
wypełnienie z siatki stalowej
ocynkowanej ogniowo
wymiar oczek 20x5 cm
16
drzwi jednoskrzydłowe wys. 210 cm
wypełnienie z siatki stalowej
ocynkowanej ogniowo
wymiar oczek 20x5 cm
ŚCIANA BUDYNKU
200
panel boczny wys. 210 cm
wypełnienie z siatki stalowej
ocynkowanej ogniowo
wymiar oczek 20x5 cm
posadowienie na fundamentach
wg rys. ZT 411
po wykonaniu fundamentów
posadzkę należy uzupełnić
kostką betonową
P2
- BETON ZBROJONY
P2
- BETON ZBROJONY
LEGENDA
70 10
80
70
70
70 10
80
CHUDY BETON
- BETON
KRUSZYWO
ŁAMANE
- CHUDY
BETON
PODSYPKA CEMENTOWO-WAPIENNA
- KRUSZYWO
ŁAMANE
GRUNT STABILIZOWANY
CEMENTEM
- PODSYPKA
CEMENTOWO-WAPIENNA
50
50
50
50
200
NIEWYSADZINOWY
- GRUNT STABILIZOWANY
CEMENTEM
RODZIMY
- GRUNT NIEWYSADZINOWY
200
PODSYPKA
PIASKOWA
- GRUNT
RODZIMY
ZADASZENIE SYSTEMOWE
SKALA 1:50
45
IZOLACJA TERMICZNA
TWARDA
- POLISTYREN
EKSTRUDOWANY
A: ul. św. Wojciech 22/24 lok. 7, 61-749 Poznań,
PRZECIWWODNA
- IZOLACJA TERMICZNA
TWARDA
T: +48 600 953 648
E: [email protected]
- IZOLACJA PRZECIWWODNA
W: www.kilkoro.com
Niniejsze opracowanie chronione jest prawem autorskim (Ustawa z dnia 4 lutego 1994 Dz. U.
z 2000 r. Nr 80, poz. 904). Kopiowanie oraz udostępnianie bez zgody autorów jest zabronione.
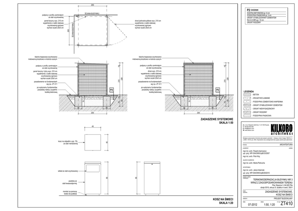
45
kosz na odpadki o poj. 72L
ze stali nierdzewnej
POLISTYRENPIASKOWA
EKSTRUDOWANY
- PODSYPKA
ARCHITEKTURA
branża
projektant
podpis
mgr inż. arch. Paweł Litwinowicz
upr. proj. WP-OIA/OKK/UpB/33/2007
mgr inż. arch. Piotr Kluj
asystent projektanta
mgr inż. arch. Marta Pietrucha
sprawdzający
mgr inż. arch. Jakub Adamiak
upr. proj. WP-OIA/OKK/UpB/28/2010
nazwa i adres
inwestycji
90
90
wkład ze stali ocynkowanej
powłoka ze
stali kwasoodpornej
TERMOMODERNIZACJA BUDYNKU NR 3
WRAZ Z ZAGOSPODAROWANIEM TERENU
Plac Staszica 3, 64-920 Piła
obręb 0018, arkusz 9, działka nr ewid. 350/1
treść
rysunku
montaż za pomocą
kotew do podłoża
KOSZ NA ŚMIECI
SKALA 1:20
ZADASZENIE SYSTEMOWE,
KOSZ NA ŚMIECI
PROJEKT BUDOWLANY
stadium
data
skala
07-2012
nr rys.
1:50, 1:20
ZT410