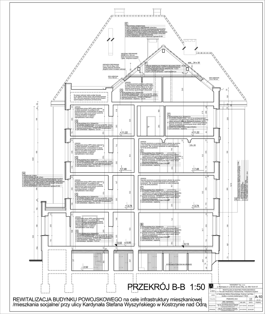
a-10 przekrój b-b

Transkrypt

a-10 przekrój b-b
E
DACHÓWKA CEMENTOWA
ŁATY I KONTRŁATY DREWNIANE 4,0x4,0cm
FOLIA WSTĘPNEGO KRYCIA /wysokoparoprzepuszczalna/
WEŁNA MINERALNA-SUPERROCK-ROCKWOOL 22.0cm
KROKIEW STALOWA Z NABITĄ DREWNIANĄ I DREWNIANA
PODBITKA Z ŁAT DREWNIANYCH LUB RUSZT STALOWY
FOLIA PAROIZOLACYJNA-ROCKWOOL
PŁYTA RIGIPSOWA 1,25cm /odporność ogniowa EI 60/
WIESZAKI DREWNIANE
DESKI 3,5 x 16,0 cm
deski mocowane do krokwi
i jętek - skręcane śrubami
stal
F
KROKIEW DREWNIANA
6,3 x 16,0 cm dług. 4,0m
/należy dokonać pomiarów
długości krokwi na etapie realizacji/
24 x 30
WEŁNA MINERALNA POMIĘDZY BELKAMI STROP.- 20,0cm
RUSZT MONTAŻOWY SUFITU PODWIESZONEGO
Z WYPEŁNIENIEM WEŁNĄ MINERALNĄ - 5,0cm
FOLIA PAROIZOLACYJNA
SUFIT Z PŁYT GIPSOWO - KARTONOWYCH
okno połaciowe
114 x 140 cm
okno połaciowe
114 x 140 cm
G
WYKŁADZINA PCV/ TERAKOTA
WYLEWKA CEMENTOWA - 4-5 cm na folii PE - 4,0cm
PŁYTY STYROPIANOWE - 5 cm /styropian akustyczny/
warstwa konstrukcyjna - STROP ISTNIEJĄCY
tynk cementowo - wapienny - 2,0 cm
UWAGA:
Projektowane stropy WPS należy wykonać
na takiej wysokości, by podłogi w tych
pomieszczeniach i na korytarzach w stanie
wykończonym były na tym samym poziomie
/dotyczy wszystkich kondygnacji
w pomieszczeniach, w których
zaprojektowano nowe stropy/.
C
WYKŁADZINA PCV/ TERAKOTA
WYLEWKA CEMENTOWA - 5-6 cm (w pomieszczeniach
o powierzchni rzutu poziomego podłogi ponad 30 m wylewkę
należy wzmocnić siatką do dozbrajania posadzek 15x15)
granulat ceramiczny - KERAMZYT - 9-10 cm (w pomieszcz.
mokrych na warstwie konstrukcyjnej stropu należy ułożyć
folię przeciwwilgociową)
WARSTWA KONSTRUKCYJNA STROPU
tynk cementowo - wapienny
G
WYKŁADZINA PCV/ TERAKOTA
WYLEWKA CEMENTOWA - 4-5 cm na folii PE - 4,0cm
PŁYTY STYROPIANOWE - 5 cm /styropian akustyczny/
warstwa konstrukcyjna - STROP WPS /projektowany/
tynk cementowo - wapienny - 2,0 cm
+ 11,22
+ 11,22
UWAGA:
Granulat ceramiczny w pomieszczeniach układać do poziomu
o 7cm niższego od wykończonej powierzchni posadzki na
korytarzach - tak, by poziom posadzek na całej kondygnacji
był na tej samej wysokości.
UWAGA:
Projektowane stropy WPS należy wykonać
na takiej wysokości, by podłogi w tych
pomieszczeniach i na korytarzach w stanie
wykończonym były na tym samym poziomie
/dotyczy wszystkich kondygnacji
w pomieszczeniach, w których
zaprojektowano nowe stropy/.
28 x 38
C
WYKŁADZINA PCV/ TERAKOTA
WYLEWKA CEMENTOWA - 5-6 cm (w pomieszczeniach
o powierzchni rzutu poziomego podłogi ponad 30 m wylewkę
należy wzmocnić siatką do dozbrajania posadzek 15x15)
granulat ceramiczny - KERAMZYT - 9-10 cm (w pomieszcz.
mokrych na warstwie konstrukcyjnej stropu należy ułożyć
folię przeciwwilgociową)
WARSTWA KONSTRUKCYJNA STROPU
tynk cementowo - wapienny
G
WYKŁADZINA PCV/ TERAKOTA
WYLEWKA CEMENTOWA - 4-5 cm na folii PE - 4,0cm
PŁYTY STYROPIANOWE - 5 cm /styropian akustyczny/
warstwa konstrukcyjna - STROP WPS /projektowany/
tynk cementowo - wapienny - 2,0 cm
+ 7,48
+ 7,48
H
UWAGA:
Granulat ceramiczny w pomieszczeniach układać do poziomu
o 7cm niższego od wykończonej powierzchni posadzki na
korytarzach - tak, by poziom posadzek na całej kondygnacji
był na tej samej wysokości.
UWAGA:
Projektowane stropy WPS należy wykonać
na takiej wysokości, by podłogi w tych
pomieszczeniach i na korytarzach w stanie
wykończonym były na tym samym poziomie
/dotyczy wszystkich kondygnacji
w pomieszczeniach, w których
zaprojektowano nowe stropy/.
C
WYKŁADZINA PCV/ TERAKOTA
WYLEWKA CEMENTOWA - 5-6 cm (w pomieszczeniach
o powierzchni rzutu poziomego podłogi ponad 30 m wylewkę
należy wzmocnić siatką do dozbrajania posadzek 15x15)
granulat ceramiczny - KERAMZYT - 9-10 cm (w pomieszcz.
mokrych na warstwie konstrukcyjnej stropu należy ułożyć
folię przeciwwilgociową)
WARSTWA KONSTRUKCYJNA STROPU
tynk cementowo - wapienny
G
WYKŁADZINA PCV/ TERAKOTA
WYLEWKA CEMENTOWA - 4-5 cm na folii PE - 4,0cm
PŁYTY STYROPIANOWE - 5 cm /styropian akustyczny/
warstwa konstrukcyjna - STROP WPS /projektowany/
tynk cementowo - wapienny - 2,0 cm
A
POKRYCIE Z PAPY
DESKOWANIE GRUB. 2,5cm
FOLIA WSTĘPNEGO KRYCIA /wysokoparoprzepuszczalna/
WEŁNA MINERALNA-SUPERROCK-ROCKWOOL 22.0cm
KROKIEW STALOWA Z NABITĄ DREWNIANĄ I DREWNIANA
PODBITKA Z ŁAT DREWNIANYCH LUB RUSZT STALOWY
FOLIA PAROIZOLACYJNA-ROCKWOOL
PŁYTA RIGIPSOWA 1,25cm /odporność ogniowa EI 60/
+ 3,74
UWAGA:
Projektowane stropy WPS należy wykonać
na takiej wysokości, by podłogi w tych
pomieszczeniach i na korytarzach w stanie
wykończonym były na tym samym poziomie
/dotyczy wszystkich kondygnacji
w pomieszczeniach, w których
zaprojektowano nowe stropy/.
_ 2,52
+ 3,74
B
G
WYKŁADZINA PCV/ TERAKOTA
WYLEWKA CEMENTOWA - 4-5 cm na folii PE - 4,0cm
PŁYTY STYROPIANOWE - 5 cm /styropian akustyczny/
warstwa konstrukcyjna - STROP WPS /projektowany/
tynk cementowo - wapienny - 2,0 cm
termoizolacja - styropian - 10,0 cm
CIENKOWARSTWOWA MINERALNA WYPRAWA TYNK.
POLIESTROWA SIATKA ZBROJĄCA WTOPIONA
ZAPRAWĘ KLEJOWĄ
PŁYTY ZE STYROPIANU
ZAPRAWA KLEJOWA
ŚCIANA KONSTRUKCYJNA
TYNK CEMENTOWO - WAPIENNY - 2cm
Na etapie realizacji należy podjąć decyzję
co do układu warstw stropu nad pomieszczeniami
322 i 326 oraz wysokości ścianek ponad stropem
ograniczających powyższe pomieszczenia.
UWAGA:
W pomieszczeniach poddasza użytkowego
w części korpusu głównego budynku należy
skuć wierzchnie warstwy stropu aż do góry
warstwy konstrukcyjnej, a następnie ułożyć
nowe warstwy wg poniższych wskazówek.
_ 0,02 +
_ 0,00
WYKŁADZINA PCV/ TERAKOTA
WYLEWKA CEMENTOWA - 5-6 cm (w pomieszczeniach
o powierzchni rzutu poziomego podłogi ponad 30 m wylewkę
należy wzmocnić siatką do dozbrajania posadzek 15x15)
granulat ceramiczny - KERAMZYT - 9-10 cm (w pomieszcz.
mokrych na warstwie konstrukcyjnej stropu należy ułożyć
folię przeciwwilgociową)
WARSTWA KONSTRUKCYJNA STROPU
TERMOIZOLACJA - 10 cm
tynk cementowo - wapienny
- 0,13
ISTNIEJĄCA PODŁOGA NA GRUNCIE
PRZEKRÓJ B-B 1:50
"AKWADRAT" Sp. z o.o.
ul. Podmiejska 21 a, 66-400 Gorzów Wlkp., tel. /095/ 733 81 57
OBIEKT:
ADRES:
REWITALIZACJA BUDYNKU POWOJSKOWEGO na cele infrastruktury mieszkaniowej
/mieszkania socjalne/ przy ulicy Kardynała Stefana Wyszyńskiego w Kostrzynie nad Odrą
TYTUŁ RYS.:
REWITALIZACJA BUDYNKU POWOJSKOWEGO
na cele infrastruktury mieszkaniowej /mieszkania socjalne/
ul. Kardynała Stefana Wyszyńskiego, Kostrzyn nad Odrą
działka o numerze ewidencyjnym 116/42
IMIĘ I NAZWISKO
SPECJALNOŚĆ UPRAWNIEŃ
PROJEKTANT:
SPRAWDZIŁ:
1:50
PRZEKRÓJ B-B
mgr inż. arch.Monika Kaszyca-Gąsiorek
upr. budowlane do projektowania bez ograniczeń
w specjalności architektonicznej
mgr inż. arch.Grzegorz Gąsiorek
upr. budowlane do projektowania bez ograniczeń
w specjalności architektonicznej
A-10
SKALA
ARK. NR
NR UPR.
DATA
PODPIS
LOIA/11/2004/GW
29.06.2007
LOIA/10/2004/GW
29.06.2007