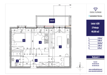
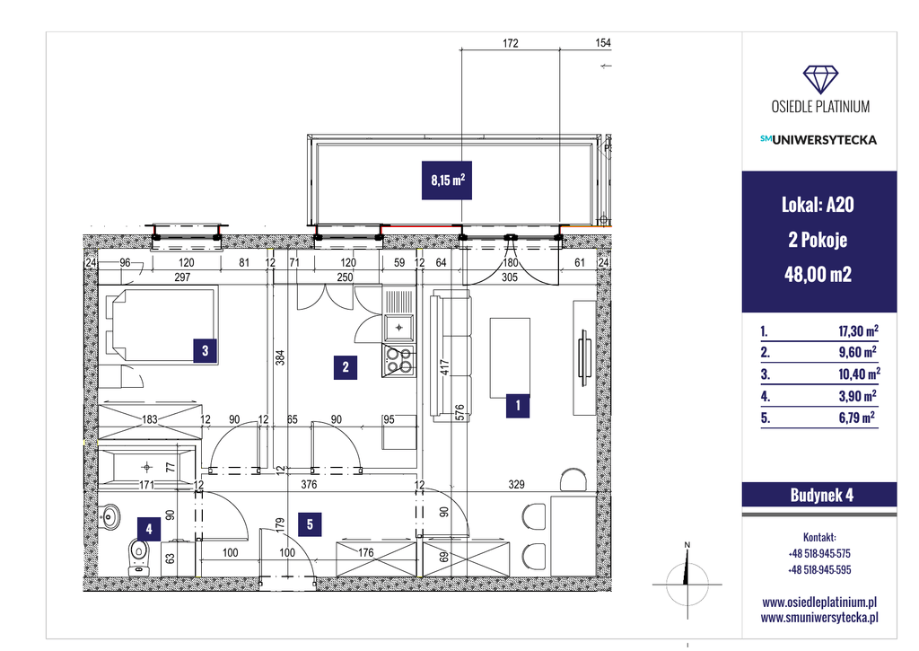
II-pietro A20 48,00 m2

Transkrypt

II-pietro A20 48,00 m2
154
172
P3
8,15 m2
Lokal: A20
2 Pokoje
12
90
90
!
95
376
179
4
65
12
90
171
12
2
180
305
61
24
48,00
85,91
m² m2
4 POKOJE
1
1.
17,30 m2
2.
9,60 m2
3.
10,40 m2
4.
3,90 m2
5.
6,79 m2
12
77
12
59 12 64
100
100
329
12
Budynek 4
90
183
384
3
120
250
71
576
81
417
120
297
5
176
N
69
96
63
24
Kontakt:
+48 518-945-575
+48 518-945-595
www.osiedleplatinium.pl
www.smuniwersytecka.pl