Przekroje - Posejdon Kołobrzeg i Dźwirzyno

Transkrypt

Przekroje - Posejdon Kołobrzeg i Dźwirzyno
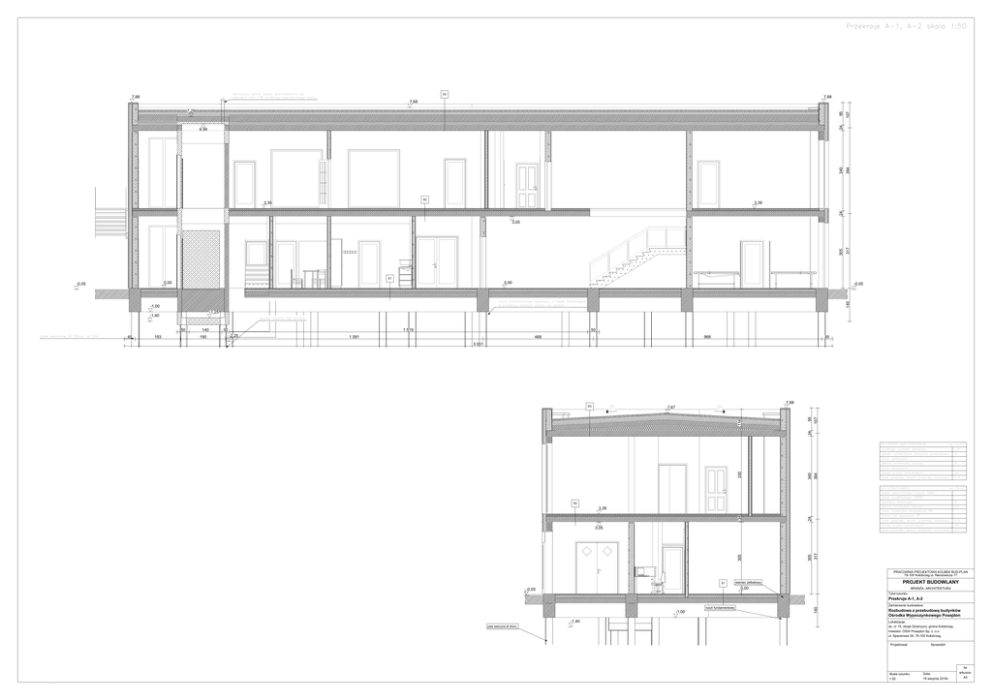
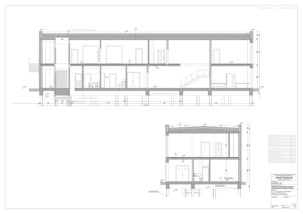
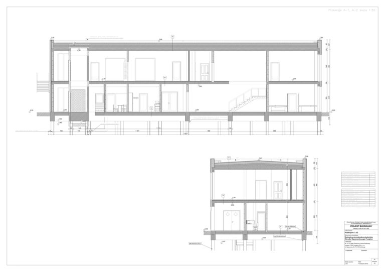
Przekroje A-1, A-2 skala 1:50
wentylacja górna szybu wyprowadzona na
zewnątrz min. 1% przekroju poprzecznego szybu
S3
7,88
7,68
340
6,99
S2
3,39
24
3,39
364
24
95
7,29
107
7,88
317
305
3,05
S1
0,00
0,00
ruszt fundamentowy wykonany z belek żelbetowych
o przekroju teowym oparty na palach
-1,00
-1,25
-1,40
oczep oparty na palach
50
pale wiercone Ø 30cm l=12m
45
193
-0,05
140
-0,05
140
190
30
1 519
-2,25
50
1 091
468
968
45
3 001
24
114
95
7,88
3º
7,67
107
3º
S3
S2 STROP NAD PARTEREM gr. [cm]
podłoga: panele, terakota 1,5
gładź cementowa zbrojona przeciwskur. 4
folia izolacyjna
wełna mineralna twarda 4
24
364
340
330
folia izolacyjna
strop z płyt kanałowych tynk gipsowy, grunt, powłoka malarska S3 STROPODACH 0,5
gr. [cm]
papa wierzchniego krycia (NRO) papa podkładowa (NRO)
wylewka betonowa wełna mineralna twarda S2
3,39
5
20
beton ze spadkiem 3º
24
34
folia izolacyjna budowlana PE
3,05
tynk gipsowy, grunt, powłoka malarska 0,5
strop z płyt kanałowych 24
0,5
317
305
305
tynk gipsowy, grunt, powłoka malarska PRACOWNIA PROJEKTOWA KOLBEK BUD-PLAN
78-100 Kołobrzeg ul. Narutowicza 17
S1
PROJEKT BUDOWLANY
wieniec żelbetowy
0,00
-0,05
BRANŻA: ARCHITEKTURA
Tytuł rysunku
-1,00
-1,40
pale wiercone Ø 30cm
ruszt fundamentowy
140
Przekroje A-1, A-2
Zamierzenie budowlane:
Rozbudowa z przebudową budynków
Ośrodka Wypoczynkowego Posejdon
Lokalizacja:
dz. nr 15, obręb Dźwirzyno, gmina Kołobrzeg
Inwestor: OSW Posejdon Sp. z .o.o.
ul. Spacerowa 38, 78-100 Kołobrzeg
Projektował:
Skala rysunku
1:50
GSPublisherEngine 0.3.100.97
Sprawdził:
Data:
19 sierpnia 2016r.
Nr
arkusza:
A5