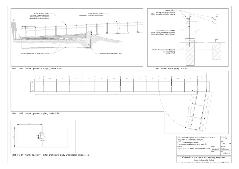
Detale11_murek poręcz

Transkrypt

Detale11_murek poręcz
zakotwione w fundamencie betonowym
stal cynkowana ogniowo
lakier proszkowy, kolor czarny
lakier proszkowy, kolor czarny
zakotwione w murku betonowym
lakier proszkowy, kolor czarny
murek i nawierzchnia wg detali: 9-01, 10-01,
kotwy i mocowanie w betonie
wg specyfikacji
producenta
det. 11-03 murek oporowy - plan, skala 1:20
projekt
nr rysunku
11
przy wale w Kazimierzu Dolnym
skala
rysunek
1:20; 1:50
stadium
projektant
architektura
krajobrazu
podpis
projekt
wykonawczy
data
03.2010
- Pracownia Architektury Krajobrazu