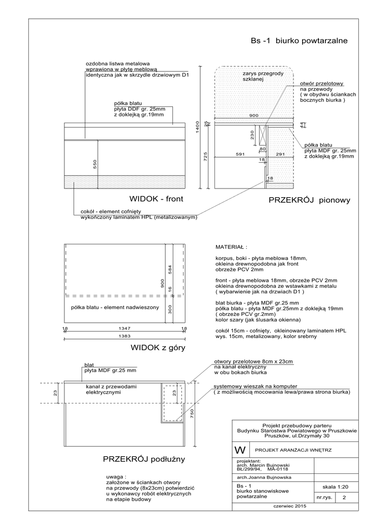
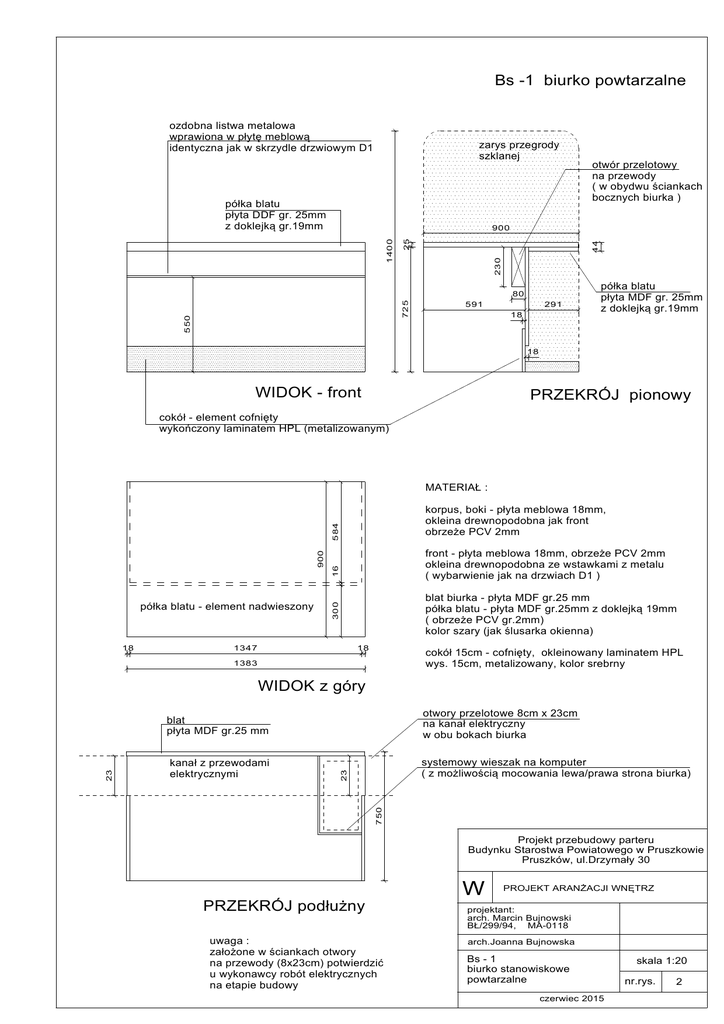
Bs -1 biurko powtarzalne WIDOK

Transkrypt

Bs -1 biurko powtarzalne WIDOK
Bs -1 biurko powtarzalne
ozdobna listwa metalowa
wprawiona w płytę meblową
identyczna jak w skrzydle drzwiowym D1
zarys przegrody
szklanej
półka blatu
płyta DDF gr. 25mm
z doklejką gr.19mm
otwór przelotowy
na przewody
( w obydwu ściankach
bocznych biurka )
230
44
25
1400
900
550
725
80
591
291
18
półka blatu
płyta MDF gr. 25mm
z doklejką gr.19mm
18
WIDOK - front
PRZEKRÓJ pionowy
cokół - element cofnięty
wykończony laminatem HPL (metalizowanym)
MATERIAŁ :
półka blatu - element nadwieszony
18
16
front - płyta meblowa 18mm, obrzeże PCV 2mm
okleina drewnopodobna ze wstawkami z metalu
( wybarwienie jak na drzwiach D1 )
blat biurka - płyta MDF gr.25 mm
półka blatu - płyta MDF gr.25mm z doklejką 19mm
( obrzeże PCV gr.2mm)
kolor szary (jak ślusarka okienna)
300
900
584
korpus, boki - płyta meblowa 18mm,
okleina drewnopodobna jak front
obrzeże PCV 2mm
1347
18
cokół 15cm - cofnięty, okleinowany laminatem HPL
wys. 15cm, metalizowany, kolor srebrny
1383
WIDOK z góry
otwory przelotowe 8cm x 23cm
na kanał elektryczny
w obu bokach biurka
systemowy wieszak na komputer
( z możliwością mocowania lewa/prawa strona biurka)
750
kanał z przewodami
elektrycznymi
23
23
blat
płyta MDF gr.25 mm
Projekt przebudowy parteru
Budynku Starostwa Powiatowego w Pruszkowie
Pruszków, ul.Drzymały 30
W
PRZEKRÓJ podłużny
uwaga :
założone w ściankach otwory
na przewody (8x23cm) potwierdzić
u wykonawcy robót elektrycznych
na etapie budowy
PROJEKT ARANŻACJI WNĘTRZ
projektant:
arch. Marcin Bujnowski
BŁ/299/94, MA-0118
arch.Joanna Bujnowska
Bs - 1
biurko stanowiskowe
powtarzalne
czerwiec 2015
skala 1:20
nr.rys.
2