2. Montaż 3. Nastawa 4. Dane techniczne i uwagi 1. Przykłady

Transkrypt

2. Montaż 3. Nastawa 4. Dane techniczne i uwagi 1. Przykłady
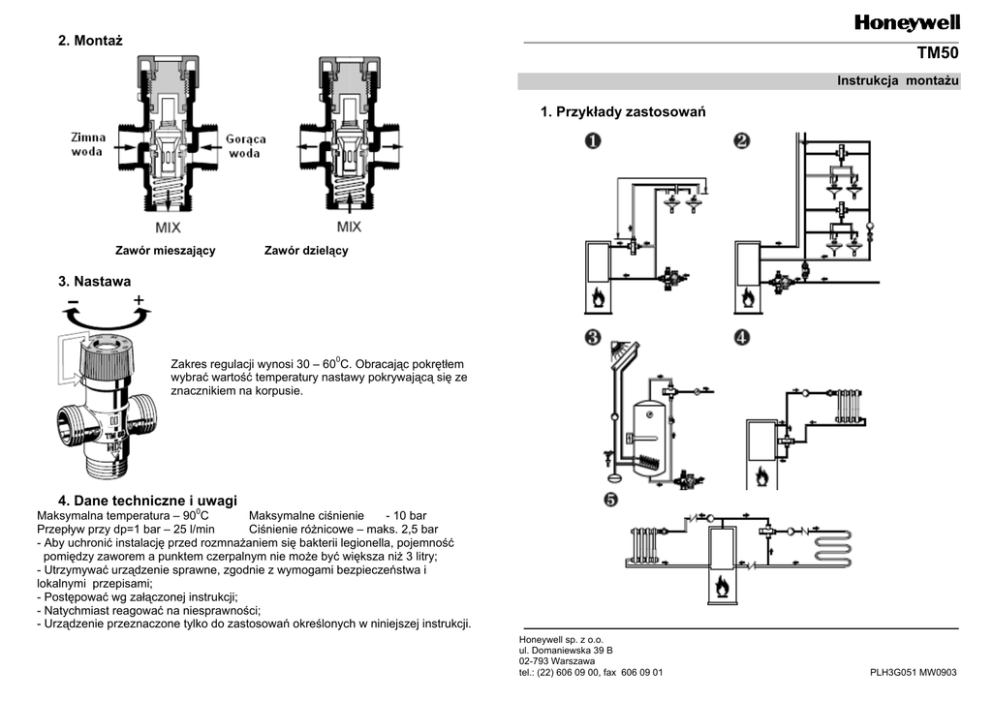
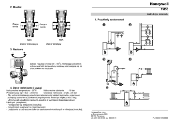
2. Montaż
TM50
Instrukcja montażu
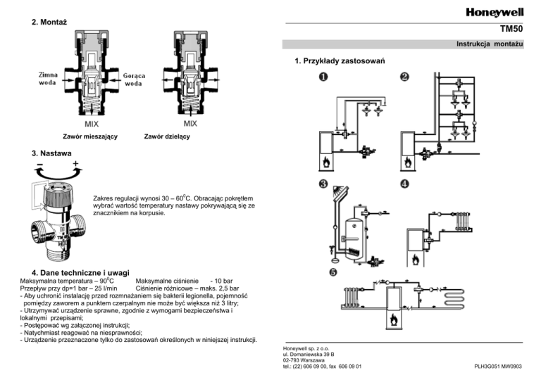
1. Przykłady zastosowań
Zawór mieszający
Zawór dzielący
3. Nastawa
Zakres regulacji wynosi 30 – 600C. Obracając pokrętłem
wybrać wartość temperatury nastawy pokrywającą się ze
znacznikiem na korpusie.
4. Dane techniczne i uwagi
Maksymalna temperatura – 900C
Maksymalne ciśnienie
- 10 bar
Przepływ przy dp=1 bar – 25 l/min
Ciśnienie różnicowe – maks. 2,5 bar
- Aby uchronić instalację przed rozmnażaniem się bakterii legionella, pojemność
pomiędzy zaworem a punktem czerpalnym nie może być większa niż 3 litry;
- Utrzymywać urządzenie sprawne, zgodnie z wymogami bezpieczeństwa i
lokalnymi przepisami;
- Postępować wg załączonej instrukcji;
- Natychmiast reagować na niesprawności;
- Urządzenie przeznaczone tylko do zastosowań określonych w niniejszej instrukcji.
Honeywell sp. z o.o.
ul. Domaniewska 39 B
02-793 Warszawa
tel.: (22) 606 09 00, fax 606 09 01
PLH3G051 MW0903