Wariant 1: dom poszerzony (garaż

Transkrypt

Wariant 1: dom poszerzony (garaż
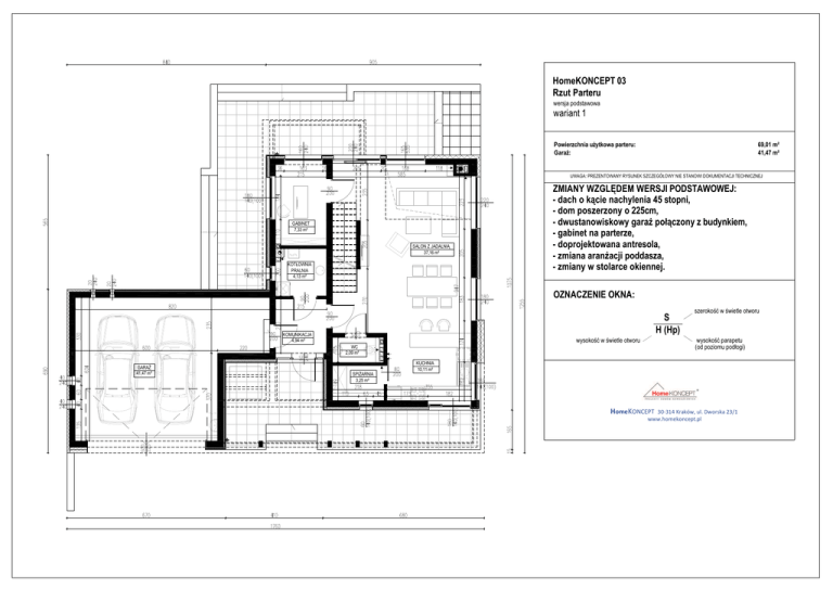
HomeKONCEPT 03
Rzut Parteru
wersja podstawowa
wariant 1
Powierzchnia użytkowa parteru:
Garaż:
69,01 m²
41,47 m²
UWAGA: PREZENTOWANY RYSUNEK SZCZEGÓŁOWY NIE STANOWI DOKUMENTACJI TECHNICZNEJ
GABINET
7,33 m²
SALON Z JADALNIĄ
37,16 m²
KOTŁOWNIA
PRALNIA
4,13 m²
ZMIANY WZGLĘDEM WERSJI PODSTAWOWEJ:
- dach o kącie nachylenia 45 stopni,
- dom poszerzony o 225cm,
- dwustanowiskowy garaż połączony z budynkiem,
- gabinet na parterze,
- doprojektowana antresola,
- zmiana aranżacji poddasza,
- zmiany w stolarce okiennej.
OZNACZENIE OKNA:
S
H (Hp)
KOMUNIKACJA
4,94 m²
wysokość w świetle otworu
wysokość parapetu
(od poziomu podłogi)
WC
2,09 m²
GARAŻ
41,47 m²
szerokość w świetle otworu
KUCHNIA
10,11 m²
SPIŻARNIA
3,25 m²
HomeKONCEPT
30-314 Kraków, ul. Dworska 23/1
www.homekoncept.pl
HomeKONCEPT 03
Rzut Poddasza
wersja podstawowa
wariant 1
Powierzchnia użytkowa poddasza:
Powierzchnia podłogi:
ŁAZIENKA
7,60m² (9,21)m²
59,87 m²
67,96 m²
UWAGA: PREZENTOWANY RYSUNEK SZCZEGÓŁOWY NIE STANOWI DOKUMENTACJI TECHNICZNEJ
POKÓJ 1-os.
8,90m² (10,37)m²
KOMUNIKACJA
13,00 m²
POKÓJ 1-os.
13,54m² (15,77)m²
SYPIALNIA 2-os.
16,83m² (19,61)m²
ZMIANY WZGLĘDEM WERSJI PODSTAWOWEJ:
- dach o kącie nachylenia 45 stopni,
- dom poszerzony o 225cm,
- dwustanowiskowy garaż połączony z budynkiem,
- gabinet na parterze,
- doprojektowana antresola,
- zmiana aranżacji poddasza,
- zmiany w stolarce okiennej.
Powierzchnia użytkowa liczona:
<140
~ 0%
140-220 ~ 50%
> 220 ~ 100%
HomeKONCEPT
30-314 Kraków, ul. Dworska 23/1
www.homekoncept.pl
HomeKONCEPT 03
Elewacja frontowa
wersja podstawowa
wariant 1
UWAGA: PREZENTOWANY RYSUNEK SZCZEGÓŁOWY NIE STANOWI DOKUMENTACJI TECHNICZNEJ
ZMIANY WZGLĘDEM WERSJI PODSTAWOWEJ:
- dach o kącie nachylenia 45 stopni,
- dom poszerzony o 225cm,
- dwustanowiskowy garaż połączony z budynkiem,
- gabinet na parterze,
- doprojektowana antresola,
- zmiana aranżacji poddasza,
- zmiany w stolarce okiennej.
HomeKONCEPT
30-314 Kraków, ul. Dworska 23/1
www.homekoncept.pl