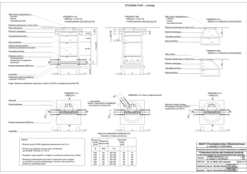
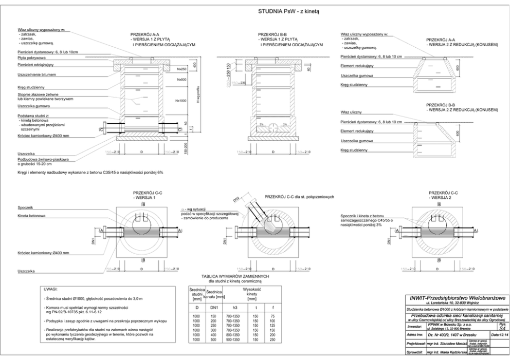
STUDNIA PsW - z kinetą

Transkrypt

STUDNIA PsW - z kinetą
STUDNIA PsW - z kinetą
Właz uliczny wyposażony w:
- zatrzask,
- zawias,
- uszczelkę gumową.
PRZEKRÓJ A-A
- WERSJA 1 Z PŁYTĄ
I PIERŚCIENIEM ODCIĄŻAJĄCYM
PRZEKRÓJ B-B
- WERSJA 1 Z PŁYTĄ
I PIERŚCIENIEM ODCIĄŻAJĄCYM
Właz uliczny wyposażony w:
- zatrzask,
- zawias,
- uszczelkę gumową.
PRZEKRÓJ A-A
- WERSJA 2 Z REDUKCJĄ (KONUSEM)
Pierścień dystansowy: 6, 8 lub 10cm
Pierścień dystansowy: 6, 8 lub 10 cm
Uszczelnienie bitumem
Element redukujący
600
Nx250
60
Pierścień odciążający
250 150
400
Płyta pokrywowa
Uszczelka gumowa
Nx500
230
Stopnie złazowe żeliwne
lub klamry powlekane tworzywem
Kręg studzienny
H wg profilu
Kręg studzienny
Nx1000
PRZEKRÓJ B-B
- WERSJA 2 Z REDUKCJĄ (KONUSEM)
Uszczelka gumowa
Właz uliczny
h3
f
C
Pierścień dystansowy: 6, 8 lub 10 cm
2%
Element redukujący
t
C
2%
600
Podstawa studni z:
- kinetą betonowa
- wbudowanymi przejściami
szczelnymi
Króciec kamionkowy Ø400 mm
2 0
Uszczelka
D
2 0
150-200
Uszczelka gumowa
2 0
D
2 0
Kręg studzienny
Podbudowa żwirowo-piaskowa
o grubości 15-20 cm
Kręgi i elementy nadbudowy wykonane z betonu C35/45 o nasiąkliwości poniżej 6%
PRZEKRÓJ C-C
- WERSJA 1
PRZEKRÓJ C-C
- WERSJA 2
PRZEKRÓJ C-C dla st. połączeniowych
2
DN
B
Spocznik
B
- wg sytuacji
podać w specyfikacji szczegółowej
- zamówienie do producenta
Kineta betonowa
A
DN1
A
DN1
A
DN1
A
Spocznik i kineta z betonu
samozagęszczalnego C45/55 o
nasiąkliwości poniżej 3%
Króciec kamionkowy Ø400 mm
B
2 0
Uszczelka
D
B
2 0
2 0
D
2 0
2 0
D
2 0
TABLICA WYMIARÓW ZAMIENNYCH
dla studni z kinetą ceramiczną
UWAGI:
- Średnica studni Ø1000, głębokość posadowienia do 3,0 m
Wysokość
kinety
[mm]
Średnica
Średnica
studni
kanału [mm]
[mm]
INWIT-Przedsiębiorstwo Wielobranżowe
Loretańska
ul. Loreta
ńska 10, 32-830 Wojnicz
- Komora musi spełniać wymogi normy szczelności
wg PN-92/B-10735 pkt. 6.11-6.12
- Podsypka i zasyp zgodnie z uwagami na przekroju poprzecznym wykopu
- Realizacja prefabrykatów dla studni na załomach winna nastąpić
po wykonaniu tyczenia geodezyjnego w terenie, które pozwoli na
ostateczną weryfikację kątów.
D
DN1
1000
1000
1000
1000
1000
1000
150
200
250
300
400
500
h3
700-1350
700-1350
700-1350
700-1350
800-1350
900-1350
t
f
150
150
150
150
150
150
75
100
125
150
200
250
Przebudowa odcinka sieci kanalizacji sanitarnej
w ulicy Czarnowiejskiej od ulicy Brzezowieckiej do ulicy Ogrodowej
Inwestor:
Adres inw.
RPWiK w Brzesku Sp. z o.o.
Rys.
ul. Solskiego 13, 32-800 Brzesko
S4
Dz. Nr 400/9, 1407 w Brzesku
Maciaśś
inż. Stanisław Macia
Projektował: mgr inż.
Sprawdził:
Kędzierska
mgr inż.
inż. Maria K
ędzierska
Upraw.w specj.
instal.-inżynier.
N/z-UAN-8346/18/86
Upraw.w specj.
instal.-inżynier.
BUA-NB-8346/9/90
Data:12.14