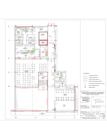
01 1:100 II

Transkrypt

01 1:100 II
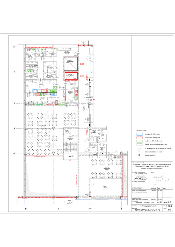
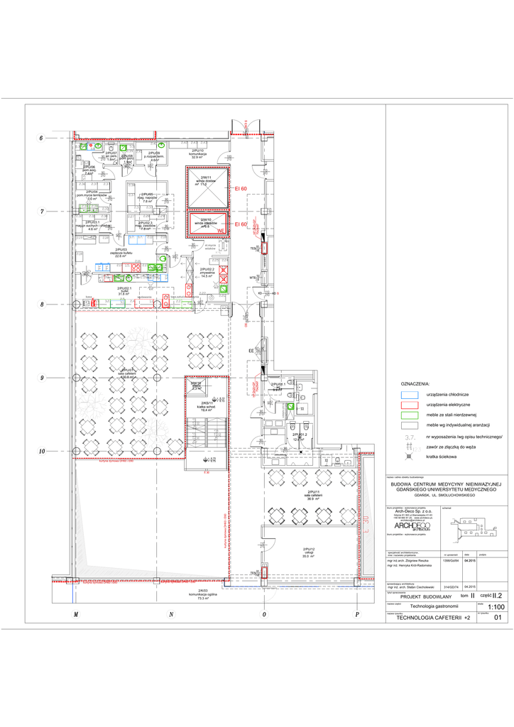
2/PU/07
wc pers. 2/PU/08
pom. porz.
1.8
1.9
2/PU/09
p.rozpak.term.
4.6
2/PU/10
komunikacja
32.9
EI 60
2/PU/04
2/PU/05
7.0
7.8
2/PU/03.1
mag.pr.suchych i chleba
4.6
2/PU/02.3
EI 60
7.8
WE
st.mycia
2/PU/03
zaplecze bufetu
22.6
2/PU/02.2
zmywalnia
14.5
2/PU/02.1
bufet
31.8
kasa
wydawanie
2/PU/01
sala cafeterii
130.8
OZNACZENIA:
+ 8.10
+ 8.10
meble ze stali nierdzewnej
+ 6.75
+ 6.75
kurtyna dymowa DH60 i E60
nazwa i adres obiektu budowlanego
BUDOWA CENTRUM MEDYCYNY NIEINWAZYJNEJ
schemat
kurtyna dymowa DH60 i E60
Arch-Deco Sp. z o.o.
Gdynia 81-363 ul.Starowiejska 41-43
+48 58 660 81 20, www.archdeco.pl,
[email protected]
2/PU/12
35.0
data
imie i nazwisko projektanta
podpis
1398/Gd/84
04.2015
314/GD/74
04.2015
kurtyna dymowa DH60 i E60
...
2/K/03
73.3
PROJEKT BUDOWLANY
tom
Technologia gastronomii
nazwa rysunku
TECHNOLOGIA CAFETERII +2
II
II.2
skala
1:100
nr rysunku
01