13.05.2014 | Załącznik nr 9 do SIWZ - rys.7

Transkrypt

13.05.2014 | Załącznik nr 9 do SIWZ - rys.7
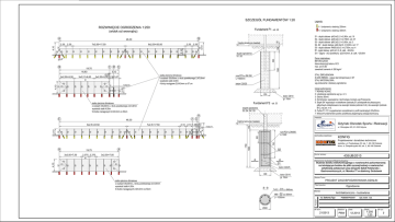
SZCZEGÓŁ FUNDAMENTÓW 1:20
ROZWINIĘCIE OGRODZENIA 1:250
(widok od wewnątrz)
S4'
S2
S1
S2
2,10
S2
S2
S2
S2
S2
S2
S2
S2
S1
S3
S2
S2
S2
S2
S2
S2
S2
S1
S1
S1
50
rzędna terenu po niwelacji
2,20 2,20
150
8x2,50=20,00
S4'
7x2,50=17,50
słupek ogrodzenia
S1, S2
C D
19,75
16,63
2x2,50=5,00
E
1000
B
3,12
0,07
2x2,50=5,00 1,38 1,67
3x2,21=6,63
siatka pleciona ślimakowa
o oczkach 35x35mm, z drutu powlekanego 2,4/3,6mm
wysokość siatki 2,00m
4 druty naciągowe 2,6/4,0mm co 67 cm
R1
S3
beton C20/25
250
beton C8/10
gr. 10cm
Fundament F2 - szt. 23
siatka pleciona ślimakowa
o oczkach 35x35mm, z drutu powlekanego 2,4/3,6mm
wysokość siatki 4,00m
9 drutów naciągowych 2,6/4,0mm co 50cm
słupek ogrodzenia
S3, S4, S4', S5
H
7x2,5=17,50
rzędna terenu po niwelacji
2,10 2,10 1,38 0,72
Gdyński Ośrodek Sportu i Rekreacji
ul. Olimpijska 5/9, 81-538 Gdynia
rura PCV-u DN300
L=1000
300
S2
S1
S2
S5
S5
S2
S2
S2
S2
S2
S2
S2
S2
S1
S3
S2
S2
S2
S2
S2
S2
S2
S2
S3
Furtka F1
S1
S1
S1
2,10
S4'
9x2,5=22,50
150
46,30
Uwagi wykonawcze
1. Wymiary w [mm].
2. Lokalizacja ogrodzenia wg rys. nr 3.
3. Otulina 30mm.
4. Konstrukcja, wyposażenie i technologia montażu wg Producenta.
5. Słupki S4' wyposażyć w dodatkowe zastrzały S1 prostopadłe do płaszczyzny
piłkochwytu zlokalizowane na zewnątrz boiska (odcinek H-A) i do wewnątrz (odcinek
B-C), wg rys. nr 3.
6. Furtka F1 i F2 z wypełnieniem szczeblinami z profili zamkniętych 25x25mm.
7. Wierzch fundamentów powlec powłokową dyspersyjną izolacją bitumiczną.
Inwestor:
F G
4,10
E
fundament o średnicy 300mm
STAL ZBROJENIOWA
# AIIIN (RB500) - wykaz stali zbrojeniowej nr Z7
STAL MATERIAŁOWA:
wg producenta i dostawcy ogrodzenia
rura PCV-u DN 250
L=1000mm
2,10
St1
St1
Furtka F2
S4
1
St
R1
S5
S5
S2
S4'
S4
S4'
S4
S4'
R1
S4
S4
4,10
St
1
fundament o średnicy 250mm
F2
Dane materiałowe
BETON C20/25
klasa ekspozycji betonu XC3
max. w/c=0.60
zawartość cementu ≥ 280 kg/m³
500
30,0°
F1
S1 - słupki stalowe φ42,4x2,0, h=2,90m, szt. 16
S2 - słupki stalowe φ48,3x2,0, h=2,750m, szt. 37
S3 - słupki stalowe φ60,3x2,0, h=3,00m, szt. 3
S4, S4' - słupki stalowe φ60,3x2,5, h=5,00m, szt. 17
S5 - słupki stalowe RK80,0x3,0, h=2,750m, szt. 4
R1- rygiel stalowy φ42,4x1,5, dł. całk. ~46,40m
St1 - cięgno - drut powlekany φ2,6/4,0mm, dł. całk. ~25,60m
B
46,30
2,20 2,20
4,10
Fundament F1 - szt. 49
4,10
A
Legenda:
Jednostka projektowa:
KONFIG
A
19,75
2,375 2,375
Numer sprawy:
1
St
R1
a
a
01
S4'
S4
S4'
S4
S4'
S4
S4'
S4
S4'
4,10
St
1
St1
02
3x2,50=7,50
R1
R1
siedziba: ul. Porębskiego 33, lok. 1, 80-180 Gdańsk
biuro: ul. Świętokrzyska 69, lok. 2, 80-180 Gdańsk
beton C20/25
St1
300
siatka pleciona ślimakowa
o oczkach 35x35mm, z drutu powlekanego 2,4/3,6mm
wysokość siatki 4,00m
9 drutów naciągowych 2,6/4,0mm co 50cm
beton C8/10
gr. 10cm
435/JB/2013
Zamierzenie budowlane/Obiekt budowlany:
Budowa boiska wielofunkcyjnego o nawierzchni poliuretanowej
na istniejącym boisku do piłki ręcznej/nożnej o nawierzchni
asfaltowej położonym przy Zespole Szkół Hotelarsko Gastronomicznych, ul. Morska 77 w dzielnicy Grabówek
Nazwa Tomu:
PROJEKT ZAGOSPODAROWANIA DZIAŁKI
Tytuł rysunku:
a-a
7 #12 -
01 L= 940mm
Branża:
4#6 - 02 co 300mm
L = 1030mm
Ogrodzenie
Architektoniczno - budowlana
Projektant
3x2,50=7,50
1150
1000
H
750
Projektowanie i doradztwo techniczne
Ø300
Nr arch.:
21/2013
Stadium:
PBW
Data:
12.2013
Skala:
1:250
1:20
Nr rys.: