doczz
  • Wejść
  • Rejestracja
Katalog

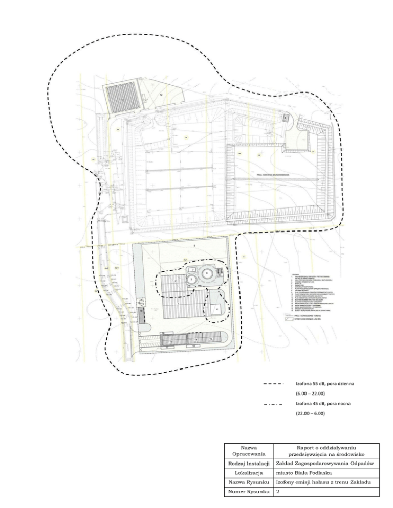
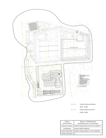
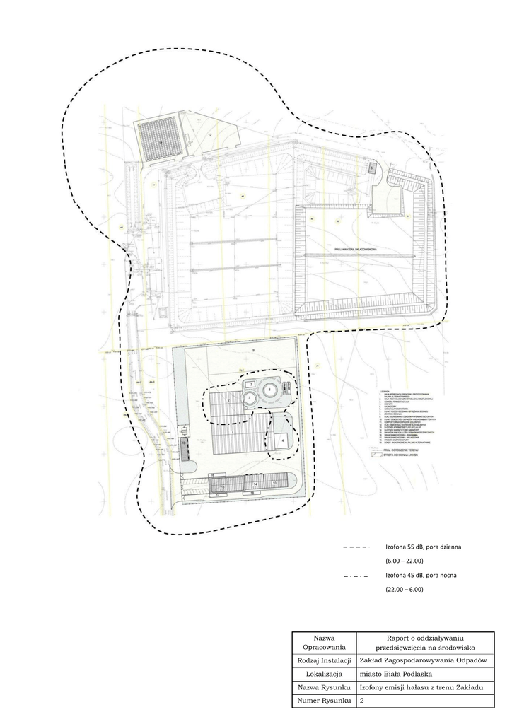
Izofona 55 dB, pora dzienna (6.00 – 22.00) Izofona 45 dB, pora

download Reklamacja

Transkrypt

Izofona 55 dB, pora dzienna (6.00 – 22.00) Izofona 45 dB, pora
Izofona 55 dB, pora dzienna
(6.00 – 22.00)
Izofona 45 dB, pora nocna
(22.00 – 6.00)
Nazwa
Opracowania
Raport o oddziaływaniu
przedsięwzięcia na środowisko
Rodzaj Instalacji
Zakład Zagospodarowywania Odpadów
Lokalizacja
miasto Biała Podlaska
Nazwa Rysunku
Izofony emisji hałasu z trenu Zakładu
Numer Rysunku
2

Podobne dokumenty

grupa: sałatki Jesień nadchodzi wielkimi krokami, warto - Joga-Joga

grupa: sałatki Jesień nadchodzi wielkimi krokami, warto - Joga-Joga

Bardziej szczegółowo

Prosta salatka z pora

Prosta salatka z pora

Bardziej szczegółowo

granice opracowania PFU obrzeże betonowe chodnikowe obrzeże

granice opracowania PFU obrzeże betonowe chodnikowe obrzeże

Bardziej szczegółowo

Zadanie Obejrzyj rysunek i odpowiedz na pytania: (1) Jaki to jest

Zadanie Obejrzyj rysunek i odpowiedz na pytania: (1) Jaki to jest

Bardziej szczegółowo

załącznik 10

załącznik 10

Bardziej szczegółowo

Zobacz ogłoszenie! - Spaw-Mar

Zobacz ogłoszenie! - Spaw-Mar

Bardziej szczegółowo

Przepis

Przepis

Bardziej szczegółowo

Proszę podać wymiary zęba w miejscach pokazanych na rysunku

Proszę podać wymiary zęba w miejscach pokazanych na rysunku

Bardziej szczegółowo

Pobierz plik - Centrum Studiów Zaawansowanych

Pobierz plik - Centrum Studiów Zaawansowanych

Bardziej szczegółowo

więcej

więcej

Bardziej szczegółowo

Uchwała Nr III/12/2001 z dnia 29.03.2001r.

Uchwała Nr III/12/2001 z dnia 29.03.2001r.

Bardziej szczegółowo

ZAŁĄCZNIK 16 tunel - obliczeniowy 2030

ZAŁĄCZNIK 16 tunel - obliczeniowy 2030

Bardziej szczegółowo
2026 © doczz.pl
O nas | DMCA / GDPR | Nadużycie