AW6

Transkrypt

AW6
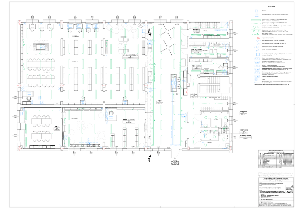
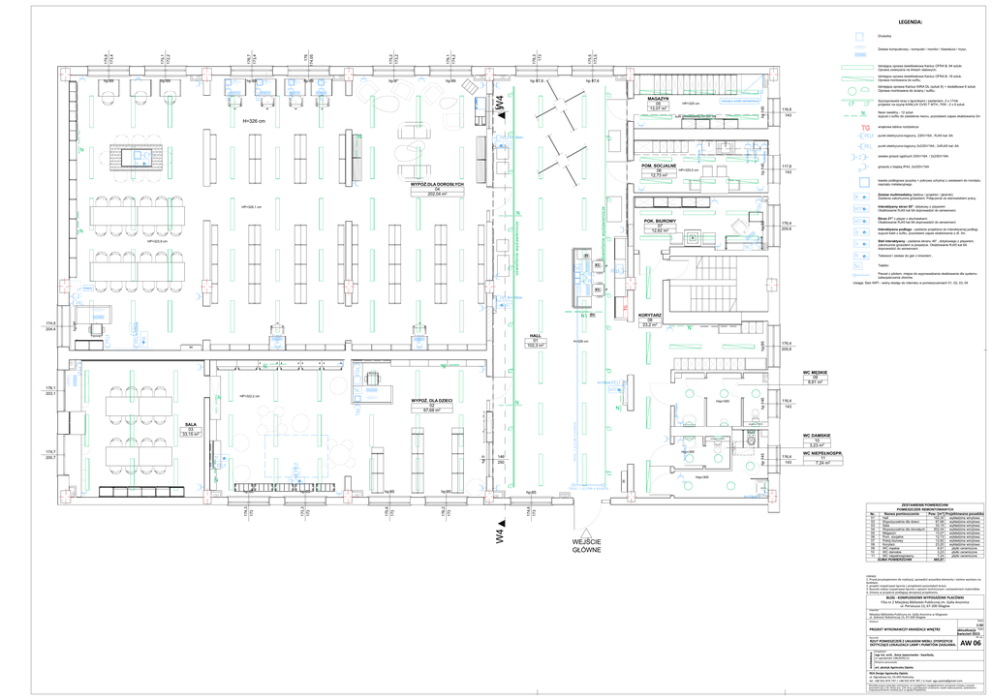
LEGENDA:
Drukarka
175,8
173,4
175,1
172,2
176,7
173,4
176
174,05
175,2
173,2
176,1
174,2
176,3
173
175,5
173,5
Zestaw komputerowy - komputer / monitor / klawiatura / mysz;
hp 89
hp 89
hp 89
hp 89
hp 89
hp 89
hp 87,6
hp 87,6
Istniejąca oprawa świetlówkowa Kanlux OFRA B, 94 sztuki
Oprawa zwieszana na linkach stalowych;
Istniejąca oprawa świetlówkowa Kanlux OFRA B, 18 sztuk.
Oprawa montowana do sufitu;
205/ 7
205/ 7
MAGAZYN
05
13,07 m2
146,8
250
Szynoprzewód wraz z łącznikami i zasilaniem, 2 x 17mb
projektor na szynę KANLUX OVID T MTH, 70W - 2 x 9 sztuk
wisząca szafa serwerowa
HP=325 cm
hp 145
205/ 7
hp 0
205/ 7
W4
Istniejąca oprawa Kanlux KIRA DL (sztuk 8) + dodatkowe 6 sztuk
Oprawa montowana do ściany i sufitu;
sufit podwieszony H=300 cm
116,9
143
N
Neon świetlny - 12 sztuk
wypust z sufitu do zasielenia neonu, pozostawić zapas okablowania 2m
H=326 cm
wnękowa tablica rozdzielcza
N
punkt elektryczno-logiczny, 230V/16A ; RJ45 kat. 6A
h=130cm
Ie21'
punkt elektryczno-logiczny 2x230V/16A ; 2xRJ45 kat. 6A
HP=325,5 cm
hp 145 lodówka
POM. SOCJALNE
06
12,73 m2
h=110cm
Is
h=110cm
L
h=110cm
N
zestaw gniazd ogólnych 230V/16A / 2x230V/16A
117,8
143
gniazdo z klapką IP44, 2x230V/16A
kaseta podłogowa (puszka + pokrywa uchylna) z zestawem do montażu
osprzętu instalacyjnego
WYPOŻ.DLA DOROSŁYCH
04
202,04 m2
oświetlenie wystawienncze
oświetlenie wystawienncze
N
HP=323,9 cm
25
176,4
205,6
Tel
K1
Tel
274/71
N
POK. BIUROWY
07
12,62 m2
hp 85
HP=326,1 cm
Zm
Zestaw multimedialny (tablica / projektor / głośniki)
Zasilanie zakończone gniazdami. Połączenie ze stanowiskiem pracy.
Ie55'
Interaktywny ekran 55", dotykowy z playerem
Okablowanie RJ45 kat 6A doprowadzić do serwerowni.
Ie21'
Ekran 21" z player z słuchawkami.
Okablowanie RJ45 kat 6A doprowadzić do serwerowni.
Ip
Interaktywna podłoga - zasilanie projektora do interaktywnej podłogi,
wypust kabli z sufitu, pozostawić zapas okablowania o dł. 3m.
Is
Stół interaktywny - zasilanie ekranu 46" , dotykowego z playerem,
zakończone gniazdem w posadzce. Okablowanie RJ45 kat 6A
doprowadzić do serwerowni.
TV
Telewizor i zestaw do gier z kinectem ,
Tel
Telefon
Peszel z pilotem, miejce do wyprowadzenia okablowania dla systemu
zabezpieczenia zbiorów.
Uwaga: Sieć WIFI - wolny dostęp do internetu w pomieszczeniach 01, 02, 03, 04
ksero
274/71
K1
h=130cm
TG
Ie21'
205/ 7
KORYTARZ
08
23,2 m2
D1
N
205/ 7
Zm
HALL
01
102,3 m2
H
H=326 cm
hp 85
h=220cm
176,4
205,6
N
N
WC MĘSKIE
09
8,61 m2
Ie55'
Tel
Hsp=300
N
Peszel z pilotem w posadzce
N
146
250
WC DAMSKIE
10
3,23 m2
zabudowa h=140cm
Hsp=300
116,4
143
WC NIEPEŁNOSPR.
11
7,24 m2
Hsp=300
H
Ip
hp 85
116,4
143
zabudowa h=140cm
h=110cm
90
hp 0
TV
hp 85
hp 85
hp 85
hp 85
Peszel z pilotem w posadzce
ZESTAWIENIE POWIERZCHNI
POMIESZCZEŃ REMONTOWANYCH
174,6
173
W4
176,2
173
175,6
173
173,3
173
h=110cm
174,3
173
174,7
200,7
hp 85
SALA
03
33,15 m2
hp 145
N
przewijak dla niemowląt
składany
WYPOŻ. DLA DZIECI
02
67,68 m2
hp 145
HP=322,2 cm
h=110cm
N
40
176,1
203,1
hp 85
h=130cm
Nr.
WEJŚCIE
GŁÓWNE
01
02
03
04
05
06
07
08
09
10
11
Nazwa pomieszczenia
Hall
Wypożyczalnia dla dzieci
Sala
Wypożyczalnia dla dorosłych
Magazyn
Pom. socjalne
Pokój biurowy
Korytarz
WC męskie
WC damskie
WC niepełnosprawny
SUMA POWIERZCHNI
Pow. [m2] Projektowana posadzka
102,30
67,68
33,15
202,04
13,07
12,73
12,62
23,20
8,61
3,23
7,24
485,87
wykładzina winylowa
wykładzina winylowa
wykładzina winylowa
wykładzina winylowa
wykładzina winylowa
wykładzina winylowa
wykładzina winylowa
wykładzina winylowa
płytki ceramiczne
płytki ceramiczne
płytki ceramiczne
UWAGI:
1. Przed przystapieniem do realizacji, sprawdzić wszystkie elementy i istotne wymiary na
budowie.
2. projekt rozpatrywać łącznie z projektami pozostałych branż.
3. Rysunki należy rozpatrywać łącznie z opisem technicznym i zestawieniem materiałów.
4. Zmiany w projekcie podlegają akceptacji projektanta.
BLOG - KOMPLEKSOWE WYPOSAŻENIE PLACÓWKI
Filia nr 2 Miejskiej Biblioteki Publicznej im. Galla Anonima
ul. Perseusza 13, 67-200 Głogów
Inwestor
Miejskia Biblioteka Publiczna im. Galla Anonima w Głogowie
ul. Jedności Robotniczej 15, 67-200 Głogów
Skala
Stadium
1:50
PROJEKT WYKONAWCZY ARANŻACJI WNĘTRZ
aktualizacja Data
kwiecień 2015
Nr rys.
Rysunek
RZUT POMIESZCZEŃ Z UKŁADEM MEBLI. DYSPOZYCJE
DOTYCZĄCE LOKALIZACJI LAMP I PUNKTÓW ZASILANIA.
Architektura
174,5
204,4
hp 86
N1
AW 06
Projektant
mgr inż. arch. Anna Jaworowska - Swarbuła,
nr uprawnień 196/DOŚ/12
Wnętrza opracowała
art. plastyk Agnieszka Opiela
REA Design Agnieszka Opiela
ul. Ogrodowa 5a, 55-093 Kiełczów,
tel. +48 501 874 747 / +48 501 874 787 / e-mail: [email protected]
Wszelkie prawa autorskie zastrzeżone, ze szczególnym uwzględnieniem przepisów Ustawy o prawie
autorskim (Dz.U.Nr 34/52 poz. 234 wraz z późniejszymi zmianami). każde wykorzystanie, powielanie i
rozpowszechnianie możliwe jest za zgodą Projektanta.