Introduction to building conservation

Transkrypt

Introduction to building conservation
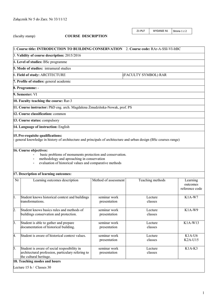
Załącznik Nr 5 do Zarz. Nr 33/11/12
Z1-PU7
(faculty stamp)
WYDANIE N1
Strona 1 z 2
COURSE DESCRIPTION
1. Course title: INTRODUCTION TO BUILDING CONSERVATION 2. Course code: RAr-A-SSI-VI-ItBC
3. Validity of course description: 2015/2016
4. Level of studies: BSc programme
5. Mode of studies: intramural studies
6. Field of study: ARCITECTURE
(FACULTY SYMBOL) RAR
7. Profile of studies: general academic
8. Programme: 9. Semester: VI
10. Faculty teaching the course: Rar-3
11. Course instructor: PhD eng. arch. Magdalena śmudzińska-Nowak, prof. PS
12. Course classification: common
13. Course status: compulsory
14. Language of instruction: English
15. Pre-requisite qualifications:
- general knowledge in history of architecture and principals of architecture and urban design (BSc courses range)
16. Course objectives:
basic problems of monuments protection and conservation.
- methodology and aproaching in conservation
- evaluation of historical values and comparative methods
17. Description of learning outcomes:
Nr
Learning outcomes description
Method of assessment
Teaching methods
Learning
outcomes
reference code
1.
Student knows historical context and buildings
transformations.
seminar work
presentation
Lecture
classes
K1A-W7
2.
Student knows basics rules and methods of
buildings conservation and protection.
seminar work
presentation
Lecture
classes
K1A-W9
3.
Student is able to gather and prepare
documentation of historical building.
seminar work
presentation
Lecture
classes
K1A-W13
4.
Student is aware of historical context values.
seminar work
presentation
Lecture
classes
K1A-U6
K2A-U15
seminar work
presentation
Lecture
classes
K1A-K3
5.
Student is aware of social resposibility in
architectural profession, particulary refering to
the cultural heritage.
18. Teaching modes and hours
Lecture 15 h / Classes 30
1
19. Syllabus description:
Lectures:
1.Introduction – notion of conservation, selection of sources and literature.
2. Elemantary knowledge: „Monument”, „White Chart fo Monument”
3. International Law: Athens Charter of Monuments Conservation, Venice Charter, UNESCO, etc.
4. Monument Protection and Conservation in Poland - Part 1: basic notions, ideas, range.
5. Monument Protection and Conservation in Poland - Part 2: Law regulations
6. Research methods in monument conservation: documentation, survey, historical research, architecural and archeological
research, „in situ”, etc.
7. Conservational design - conservation, restoration, adaptation.
8. History of monument restoration: romantic, puristic, scientific approach.
9. Contemporary ideas, approaches and works in conservation: examples.
10. Restoration works - definitions and examples
11. Quasi_conservation - examples
12. Final conclusions
Classes:
1. Introduction, subject presentation
2. Selection of subjects, acceptance, discussion of range of work.
3. Workshop „in situ” - survey, photo documentation, sketches
4. Source work: Archives, carotography, text and documents analysis,
5. Evaluation methods: historical, artistic, technical values of the object
6. Conclusions and guidelines for conservation
7. General conception of selected building conservation
8. Final presentation of completed work
20. Examination: none
21. Primary sources:
1. Małachowicz E., Ochrona dziedzictwa kulturowego, Wrocław 1982
2. Małachowicz E., Konserwacja i rewaloryzacja architektury w zespołach i krajobrazie, Wrocław 1994
3. Rymaszewski B., Polska ochrona zabytków, Warszawa 2005.
22. Secondary sources:
1. Borusiewicz W., Konserwacja zabytków budownictwa murowanego, Arkady, Warszawa 1985
2. Dettloff P., Odbudowa i restauracja zabytków architektury w Polsce w latach 1918 – 1939, Kraków 2006
3. Frycz J., Restauracja i konserwacja zabytków architektury w Polsce w l. 1795-1918, Warszawa 1975
5. Czasopisma:
Ochrona Zabytków, kwartalnik wyd. od 1948r. przez Min. Kultury, ODZ w Warszawie
Spotkania z zabytkami, kwartalnik (wcześniej miesięcznik) wyd. od 1976r. przez Min. Kultury i Tow. Opieki nad Zabytkami
Renowacje i Zabytki, kwartalnik wyd. od 2002r. przez A.I.P. „raport” Kraków
23. Total workload required to achieve learning outcomes
Lp.
Teaching mode :
1
Lecture
2
Classes
3
Laboratory
4
Project
5
BA/ MA Seminar
6
Other
Contact hours / Student workload
hours
15/30
30/45
0/0
/
0/0
/
Total number of hours
45/75
24. Total hours: 120
25. Number of ECTS credits: 4
26. Number of ECTS credits allocated for contact hours: 2
27. Number of ECTS credits allocated for in-practice hours (laboratory classes, projects): 0
26. Comments:
Approved:
…………………………….
(date, Instructor’s signature)
…………………………………………………
(date , the Director of the Faculty Unit signature)
2