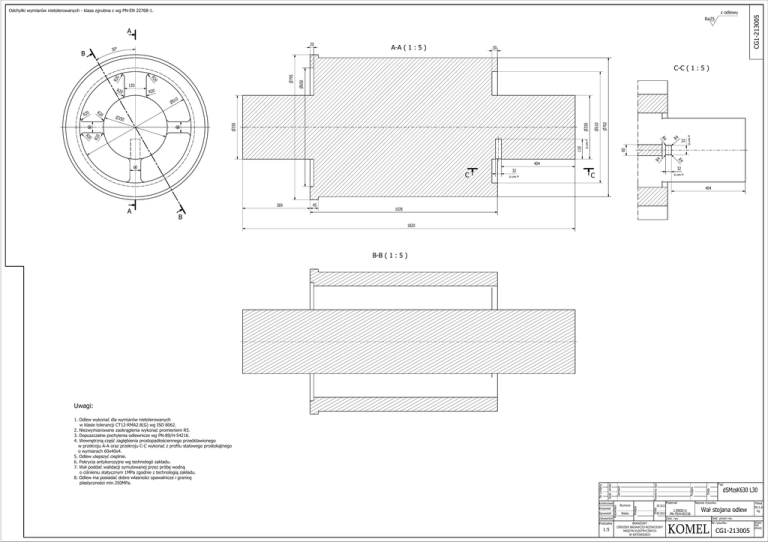
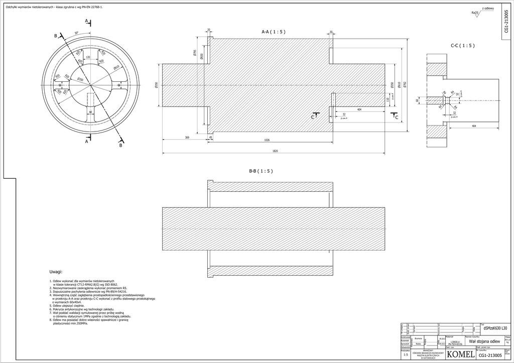
CG1-213005_Wał stojana odlew

Transkrypt

CG1-213005_Wał stojana odlew
Odchyłki wymiarów nietolerowanych - klasa zgrubna c wg PN-EN 22768-1.
CG1-213005
z odlewu
Ra25
A
20
30°
B
A-A ( 1 : 5 )
30
n795
120
n650
R20
0
R2
R 20
C-C ( 1 : 5 )
R 20
10
n6
C
32
p.uw.4
R4
p.uw.4
60
R4
404
60
R4
52
n762
n610
n350
p.uw.4
60
110
R4
R2
0
R 20
60
n350
n350
R2
0
R 20
32
C
p.uw.4
404
369
A
45
1026
B
1820
B-B ( 1 : 5 )
Zatwierdził
Podziałka
1:5
Typ
09.2013
BRANŻOWY
OŚRODEK BADAWCZO-ROZWOJOWY
MASZYN ELEKTRYCZNYCH
W KATOWICACH
Materiał
L30GS-U
PN-79/H-83156
dSMzsK630 L30
Data
Podpis
Powinno być
Białas
09.2013
Data
Sprawdził
Brymora
Podpis
Rysował
Nazwisko
Konstruował
Zamiast
Ilość zmian
1. Odlew wykonać dla wymiarów nietolerowanych
w klasie tolerancji CT12-RMA2.8(G) wg ISO 8062.
2. Niezwymiarowane zaokrąglenia wykonać promieniem R5.
3. Dopuszczalne pochylenia odlewnicze wg PN-89/H-54216.
4. Wewnętrzną część zagłębienia prostopadłościennego przedstawionego
w przekroju A-A oraz przekroju C-C wykonać z profilu stalowego prostokątnego
o wymiarach 60x40x4.
5. Odlew ulepszyć cieplnie.
6. Pokrycia antykorozyjne wg technologii zakładu.
7. Wał poddać walidacji symulowanej przez próbę wodną
o ciśnieniu statycznym 1MPa zgodnie z technologią zakładu.
8. Odlew ma posiadać dobre własności spawalnicze i granicę
plastyczności min.350MPa.
Nr zmiany
Uwagi:
Nazwa rysunku
Wał stojana odlew
Zast. rys.
KOMEL
Zast. przez rys.
Nr rysunku
CG1-213005
Masa
3011,8
Kg
Arkusz/
Ilość
arkuszy