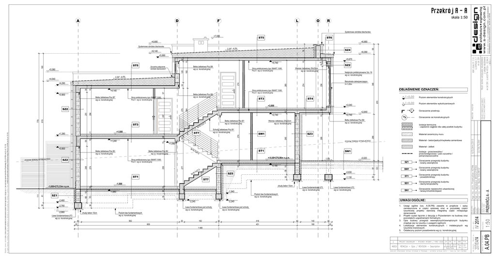
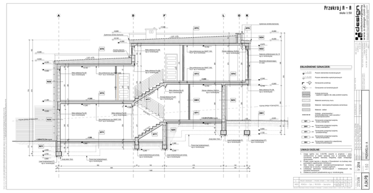
Przekrój A - NOWE LOKUM

Transkrypt

Przekrój A - NOWE LOKUM
www.s-design.com.pl
A
F`
D
L
O
skala 1:50
R
Systemowa obróbka blacharska
+7,000
ST5
ST6
+6,680
Systemowa obróbka blacharska
SZ4
79
2,29°- 4,0%
+6,140
59
+6,680
+6,090
NINIEJSZE OPRACOWANIE ZOSTAŁO WYKONANE ZA POMOC Ą LICENCJONOWANEGO
OPROGRAMOWANIA - AUTODESK AUTOCAD 2007LT. - Serial No: 345-13367883
Przekrój A - A
SZ2
236
30
10
SD1
Oznaczenie przegrody budynku
- dachy/stropodachy
SN1
Oznaczenie nawierzchni utwardzonej
- tarasy/chodniki/dojazd
30
Poziom ław fundamentowych
wg cz. konstrukcyjnej
UWAGI OGÓLNE:
-2,240
1.
Ława fundamentowa pod schody
wg cz. konstrukcyjnej
Poziom ław fundamentowych
wg cz. konstrukcyjnej
2.
30
182
809
30
416
451
40
140
180
3.
40
20
4.
1 480
5.
0
INDEX
Uwagi ogólne (rys. A.05.PB) zawarte w projekcie i opisy
zamieszczone w części opisowej oraz w pozostałej części
rysunkowej projektu stanowią integralną część niniejszego
opracowania
Projekt czytać łącznie z decyzją o Pozwoleniem na budowę oraz
pozostałymi uzgodnieniami formalnymi.
Opis budowy przegród wewnętrznych/zewnętrznych budynku
znajduje się na rysunku z uwagami ogólnymi
Lokalizacja elementów konstrukcyjnych i instalacyjnych wg
rysunków branżowych.
Ostateczny poziom posadowienia wg cz. konstrukcyjnej.
PROJEKT BUDOWLANY - RYSUNEK WYDANY / FIRST ISSUE 24
04
14
A.M.
P.K.
D
M
R/Y
Proj.
/By
Spr.
/Chk
REWIZJA - Opis / REVISION - Description
Data/Date
NINIEJSZE OPRACOWANIE ZOSTAŁO WYKONANE W PROGRAMIE - AUTODESK AUTOCAD 2007LT. - Serial No: 345-13367883
22/06/SLOKK
PRZEKRÓJ A - A
Oznaczenie przegrody budynku
- posadzki/stropy
1:50
ST1
A.04.PB
Oznaczenie przegrody budynku
- ściany wewnętrzne
SKALA/SCALE:
Ława fundamentowa ŁF3
wg cz. konstrukcyjnej
SW1
DRAWING NO : NR RYSUNKU :
Ława fundamentowa ŁF3
wg cz. konstrukcyjnej
-1,940
Oznaczenie przegrody budynku
- ściany zewnętrzne
IV 2014
-1,130
SZ1
mgr inż. arch. Przemysław KOTWA
mgr inż. Agnieszka MOSZCZYŃSKA
mgr inż. arch. Beata SUŁOWICZ
30
81
10
55
-0,830
chudy beton 10cm
Ława fundamentowa pod schody
wg cz. konstrukcyjnej
562
6/SLOKK/2013
266
266
-0,020
1,5%
207/04/14
40
20
Izolacja - przeciwwodna /
przeciwwilgociowa / paro szczelna /
paroprzepuszczalna
PROJEKTOWAŁ:
DESIGNED:
OPRACOWAŁ :
CHECKED:
SPRAWDZIŁ:
CHECKED:
chudy beton 10cm
Materiał - beton/jastrych/wylewka cementowa
POZIOM TERENU ISTNIEJĄCEGO
18
-0,180
SZ5
26 18
18
30
-2,860
Ława fundamentowa ŁF3
wg cz. konstrukcyjnej
Oznaczenie osi konstrukcyjnych
Materiał ceramiczny muru
SN1
ST7
78
10
68
81
7,0
7x2
16,
-2,240
-2,760
Oznaczenie przekroju
Izolacja termiczna
- zapewnić ciągłość dla całej powłoki budynku
SZ3
-1,500
-2,460
30
SW1
10
259
274
ST1
SZ1
Belka żelbetowa Poz.B4
wg cz. konstrukcyjnej
Wieniec żelbetowy 25x22cm
wg cz. konstrukcyjnej
+/-0,00=276,98m n.p.m.
9x
-1,680
+2,740
ST1
Strop prefabrykowany typu SMART 15/60
Poz.4 - wg cz. konstrukcyjnej
-1,650=275,33m n.p.m.
A
DATA / DATE :
15
SZ2
Poziom elementów wykończeniowych
Materiał - żelbet
9x1
6,7
x27
,0
Belka żelbetowa Poz.B2
wg cz. konstrukcyjnej
+/-0,00
+2,640
+1,090
277
CEGO
Belka żelbetowa Poz.B3
wg cz. konstrukcyjnej
248
POZIOM TERENU ISTNIEJĄ
+1,240
Schody żelbetowe Poz.B1
wg cz. konstrukcyjnej
30
26
ST7
274
11
15
59
+0,800
111
Wszelkie prawa zastrzeżone, łącznie z prawem reprodukcji lub udost ępniania osobom trzecim tego rysunku lub jego cz ęści, bez wyra źnego upowa żnienia Biura Projektowego (Dz.U.24/1994, poz.83, art. 115-118)
All rights reserved, including the right to reproduce or disclose to third parties this drawing or position there of without the specific written authorisation of Architectural Design Office (Dz.U.24/1994, poz.83, art. 115-118)
+1,500
Belka żelbetowa Poz.B1
wg cz. konstrukcyjnej
285
0
27,
,7x
6
1
9x
ST3
+1,390
22
26
264
207
264
+2,740
619
779
251
275
SZ2
Poziom elementów konstrukcyjnych
PROJEKT/INWESTYCJA/OBIEKT:
PROJECT/INVESTMENT/OBJECT:
+3,040
+3,000
+/-0,00
INWESTOR: INVESTOR:
ST4
NAZWA RYSUNKU:
DRAWING NAME:
274
285
ST3
NR PROJEKTU : PROJECT No :
Belka żelbetowa Poz.B8
wg cz. konstrukcyjnej
Strop prefabrykowany typu SMART 15/60
Poz.4 - wg cz. konstrukcyjnej
J
Belka żelbetowa Poz.B7
wg cz. konstrukcyjnej
111
+3,900
OBJAŚNIENIE OZNACZEŃ:
Strop prefabrykowany typu SMART 15/60
Poz.4 - wg cz. konstrukcyjnej
670
57
+4,140
Balustrada zabezpieczająca
h=1,00m
30
15
39
33
+4,290
274
2,29°- 4,0%
+4,540
345
Nadproże prefabrykowane 2xL-19
wg cz. konstrukcyjnej
PROJEKT BUDYNKU MIESZKALNEGO WIELORODZINNEGO
Z GARAŻAMI WBUDOWANYMI
44-240 ŻORY, UL.AUGUSTYNA WETLZLA , DZ.2940/6
- MODUŁ 4 -
19 8 22
+5,670
Wieniec żelbetowy 25x22cm
wg cz. konstrukcyjnej
Strop prefabrykowany typu SMART 15/60
Poz.4 - wg cz. konstrukcyjnej
160
+5,080
15
22
15
Belka żelbetowa Poz.B9
wg cz. konstrukcyjnej
Szczelne połączenie
obróbek blacharskich
120
160
ST5
+5,740
NOWE LOKUM SP. Z O.O.
UL.CENTRALNA 21/1
44-240 ŻORY
+5,890