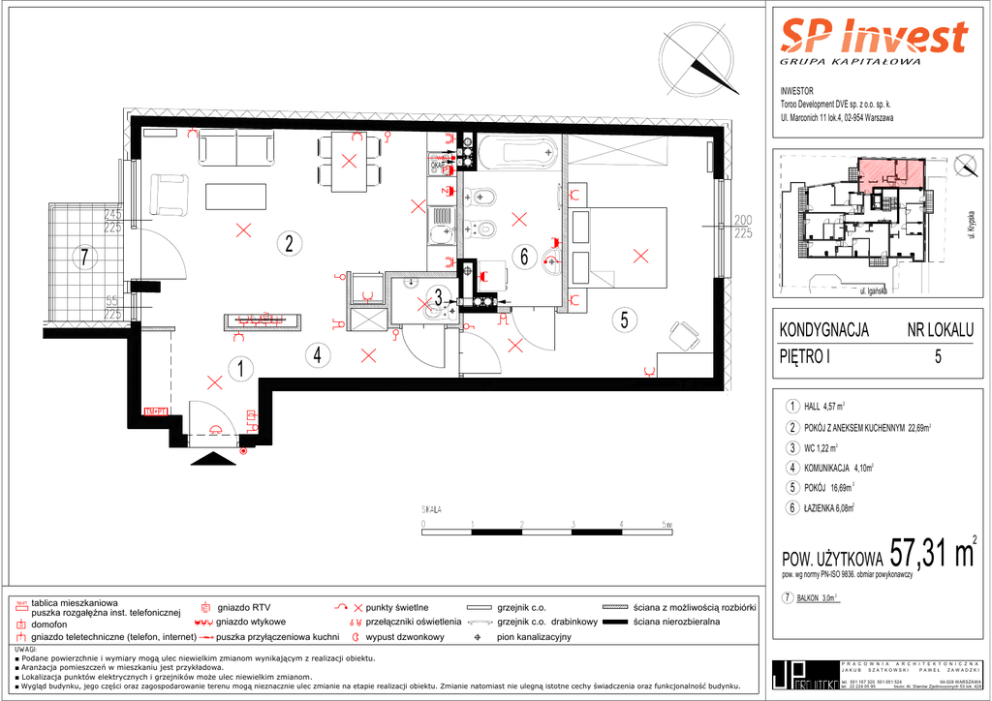
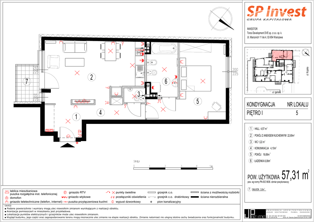
KONDYGNACJA NR LOKALU PIĘTRO I 5 POW. UśYTKOWA 57,31 m

Transkrypt

KONDYGNACJA NR LOKALU PIĘTRO I 5 POW. UśYTKOWA 57,31 m
INWESTOR
Toroo Development DVE sp. z o.o. sp. k.
Ul. Marconich 11 lok.4, 02-954 Warszawa
OKAP
P
ul. Krypska
Z
2
7
6
ul. Igańska
5
T
RTV
3
1
KONDYGNACJA
PIĘTRO I
4
TM+PT
NR LOKALU
5
1
HALL 4,57 m 2
2
POKÓJ Z ANEKSEM KUCHENNYM 22,69m 2
3
WC 1,22 m 2
4
KOMUNIKACJA 4,10m2
5
POKÓJ 16,69m
6
ŁAZIENKA 6,08m2
2
2
POW. UśYTKOWA
57,31 m
pow. wg normy PN-ISO 9836. obmiar powykonawczy
D
T
tablica mieszkaniowa
puszka rozgałęźna inst. telefonicznej
domofon
gniazdo teletechniczne (telefon, internet)
7
RTV
TM+PT
gniazdo RTV
punkty świetlne
grzejnik c.o.
ściana z moŜliwością rozbiórki
gniazdo wtykowe
puszka przyłączeniowa kuchni
przełączniki oświetlenia
grzejnik c.o. drabinkowy
ściana nierozbieralna
wypust dzwonkowy
pion kanalizacyjny
BALKON 3,0m 2
UWAGI:
■ Podane powierzchnie i wymiary mogą ulec niewielkim zmianom wynikającym z realizacji obiektu.
■ AranŜacja pomieszczeń w mieszkaniu jest przykładowa.
■ Lokalizacja punktów elektrycznych i grzejników moŜe ulec niewielkim zmianom.
■ Wygląd budynku, jego części oraz zagospodarowanie terenu mogą nieznacznie ulec zmianie na etapie realizacji obiektu. Zmianie natomiast nie ulegną istotne cechy świadczenia oraz funkcjonalność budynku.
P R A C O W N I A
A R C H I T E K T O N I C Z N A
JAKUB
SZATKOWSKI
PAWEŁ
ZAWADZKI
tel. 501 167 320 501 051 524
04-028 WARSZAWA
tel. 22 224 05 95
biuro: Al. Stanów Zjednoczonych 53 lok. 428