C:\A STUDIO\PRACA\PROJEKTY 4\Dawid Partyka domek\dom

Transkrypt

C:\A STUDIO\PRACA\PROJEKTY 4\Dawid Partyka domek\dom
3
2
1
7
8
B
4
6
1
N
B
5
[m2]
[m3]
[m2]
132,92
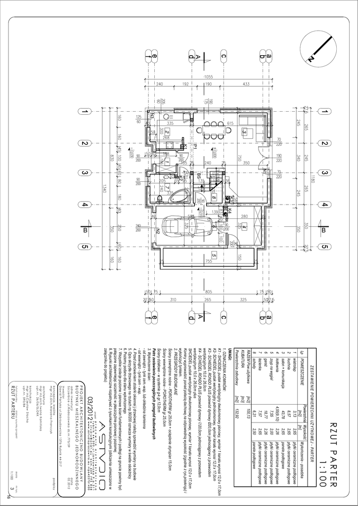
RZUT PARTER
1:100
Powierzchnia Wysokość
[m]
[m2]
2,65
3,13
8,57
2,65
43,78
2,65
2,26
4,55(9,10)
7,55
2,00
18,77
2,26
7,57
2,65
6,21
2,50
100,13
płytki ceramiczne podłogowe
płytki ceramiczne podłogowe
panele podłogowe
płytki ceramiczne podłogowe
płytki ceramiczne podłogowe
płytki ceramiczne podłogowe
płytki ceramiczne podłogowe
panele podłogowe
Wykończenie - posadzka
ZESTAWIENIE POWIERZCHNI UśYTKOWEJ - PARTER
Lp POMIESZCZENIE
1 wiatrołap
2 kuchnia
3 salon + komunikacja
4 kotłownia
5 zsyp na węgiel
6 garaŜ
7 łazienka
8 schody
RAZEM Pow.uŜytkowa
KUBATURA
Powierzchnia zabudowy
UWAGI:
1. OZNACZENIA KOMINÓW:
K1 - SHCIEDEL pustak wentylacyjny dwukomorowy pionowy, wymiar 1 kanału wynosi 12,0 x 17,0cm
K2- SCHIEDEL pustak wentylacyjny jednokomorowy, wymiar kanału wynosi 12,0 x 17,0cm
K3 - SCHIEDEL RONDO PLUS przewód dymowy Ø20,0cm jednociągowy z przewodem
wentylacyjnym 10,0 x 26,0cm
K4 - SCHIEDEL RONDO PLUS przewód dymowy ∅20,0cm jednociągowy z przewodem
wentylacyjnym 10,0 x 26,0cm plus
SHCIEDEL pustak wentylacyjny dwukomorowy pionowy, wymiar 1 kanału wynosi 12,0 x 17,0cm
Kominy wyprowadzić ponad połacią dachową na odpowiednią wysokość (zgodnie z rys.przekroju) i
wykończyć tynkiem.
2. PRZEGRODY BUDOWLANE
Ściany zewnętrzne nośne - POROTHERM gr.25,0cm + ocieplenie styropian 15,0cm
Ściany wewnętrzne nośne - POROTHERM gr.25,0cm
Ściany działowe - w systemie g-k gr.12,0cm
Patrz zestawienie poszczególnych przegród budowlanych
3. Wykończenie ścian:
- od zewnątrz - tynk cem.-wap. lub okładzina kamienna
- od wewnątrz - tynk cem - wap.
4. Przed zamówieniem stolarki okiennei j drzwiowej naleŜy sprawdzić wymiary na budowie
5. Opis skrzydła drzwiowego na rzutach np.90/200 oznacza wymiary w świetle ościeŜnicy
6. Poziomy podano dla stanu wykończonego
7. Wszystkie izolacje poziome i pionowe ścian fundamentowych i podłogi na gruncie powinny być
połączone zapewniejąc szczelność w płaszczyźnie pionowej i poziomej
8. Rysunki architektoniczne rozpatrywać z rysunkami konstukcyjnymi (obliczenia umieszczono w
załączniku do projektu)
1
P
S
B
projekt
03/2012
sk a la
3
nr rys.
p o d p i sy
data
02.2012
PROJEKT ARCHITEKTONICZNO BUDOWLANY
BUDYNKU MIESZKALNEGO JEDNORODZINNEGO
adres inwestycji
Szczerbice ul.Radoszowska dz.nr.775/59
in w e s t o r
D a w i d P a r t y k a u l. Z e b r z y d o w i c k a 1 3 7 b R y b n i k 4 4 - 2 1 7
ko n c e p c j a , k r e śl i ł a
m g r i n Ŝ. a r c h . M a r z e n a F r a n c z y k
architektura
m g r i n Ŝ. a r c h . I w o n a K a m i ń s k a
upr.nr. 26/06/SLOKK
1:100
ko n s t r u k c j a
m g r i n Ŝ. C ze s ł a w S t a c h a
upr.nr. 590/84
ty t u ł r y s u n k u
st a t u s ry su n k u : p r o j e k t
RZ U T P A R TE R U
A
3
N
1
K
2
K
3
K
4
K
2
N
A
6
1