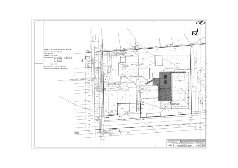
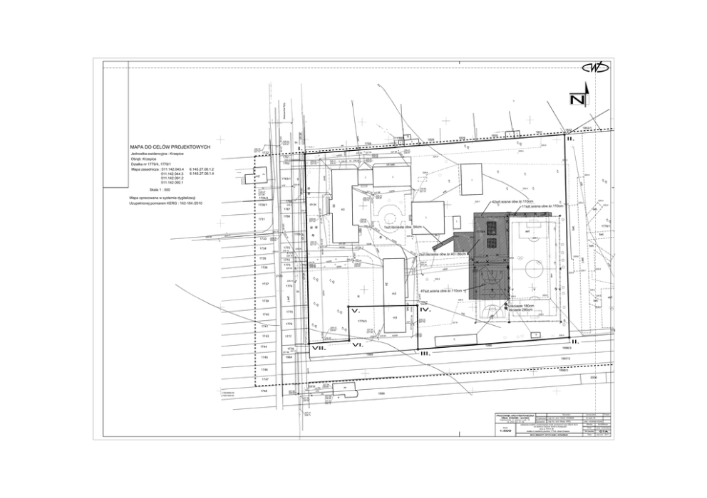
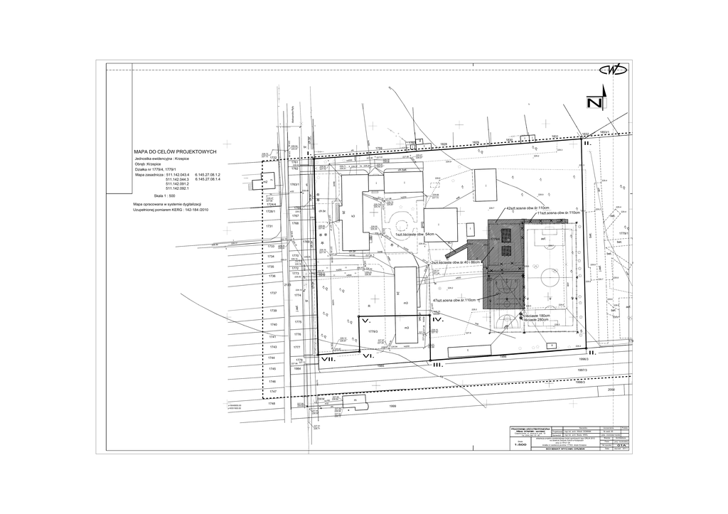
MAPA DO CELÓW PROJEKTOWYCH

Transkrypt

MAPA DO CELÓW PROJEKTOWYCH
9
22
Aleksandra Ry y
t
t
t
229.3
ch.br.
k
1761
228.53
228,71
226,51
228.92
227.72
227.95
k
229,19
228,06
229.27
228.07
229.2
229.0
228.81
226,57
ks 226,28
k
229.3
ch.bet.
t
1762
k 226,37
k 227.91
00
kd200
227.90
8.
228.8
t
1766
228.5
228.9
228.55
225,35
226.08
k
k
1771
1772
228.09
226,45
228,23
226,55
228.30
i 86cm
2szt.li
227,36 ciaste obw. r.40
228.4
w
228.64
227.45
w
228.6
47szt.sosna obw. r.110cm
m3
224,57
j.asf.
228.2
R
ch.bet.
1775
k
228.6
228.5
1779/3
226,90
226,82
227,08
227.87
227,00
asf.
bet.
li ciaste 180cm
li ciaste 280cm
228.6
eN
B
228.5
5
227.8
k
178
,93
226,79
1777
228.15
227.15
227,09
2 26
228.12
226.87
228.6
228.0
228,25
224,63
ksB
1776
226,94
kd200
k
228.01
226.89
g
228.2
t
k
1986
1996/3
1778
227.66
228.8
228.7
228.8
eNB
ch.br.
227,37
w B50
k
1744
2
228.8
228.6
228,37
227,39
24
1774
kd200
1743
k
k
m3
1741
7,3
0
228.2
br.
1740
22
w
228.10
1739
bet.
w
2123
1737
226.43
k
wB80
228.7
B
1736
k
228.5
eN
1773
227.36 k
kd100
ks200
226.34
228.23
226.58
bet.
228.5
kd200
1735
wA100
228.16
ks
20
0
228.52
k
80
wB
228.10
227.04
asf.
1779/4
1779/1
2eNB
226,46
228.01
k
228.35
ch.br.
226.99
1770
1734
1szt.li ciaste obw. 54cm
6.3
8
.90
228.19
227.14
22
k
227.04
k
228.18
226.24
5
6.1
1733
i
224
1769
22
226.39
225,36
ch.br.
226.18
t
226.37
i
225,28
227.37
1731
228.54
227.42
229.4
bet.
228.8
k
1768
229.2
k3
227.37
1767
229.4
42szt.sosna obw. r.110cm
229.2
11szt.sosna obw. r.110cm
228.7
e NB
1728/1
ch.br.
228.3
26
Uzupe nionej pomiarem KERG : 142-184 /2010
B
eN
225,57
1724/4
228.9
228.68
227.73
k
kd200
k s2 227,9
2 227,88
00
kk
228,74
228.74
225,87
225,74
227,06
Mapa opracowana w systemie dygitalizacji
i
j.asf.
228.47
227.08
229.4
i
i
bet.
228.40
w
w32
ks
Skala 1 : 500
eN
1763/1
ch.br.
m2
2eNB
7
6.145.27.08.1.2
6.145.27.08.1.4
eNB
Dzia ka nr 1779/4, 1779/1
Mapa zasadnicza : 511.142.043.4
511.142.044.3
511.142.091.2
511.142.092.1
1829
1828
t
i
i
1830
1853/1
1832
1831
2eNB
22
Jednostka ewidencyjna : Krzepice
Obr b :Krzepice
1722
1760
i
1759
eN
wB80
228.72
227.13
br.
225.84
k
228.54
225.97
g
ks200
225.82
MAPA DO CELÓW PROJEKTOWYCH
t
w
227.72
1985
1745
1984
1997/3
228
ks160
1746
1998/3
2000
1747
227.43
226.58
x=5648650.00
y=6551600.00
1748
227.58
225.93
k
e
227.40
226.55
ks160
w32
227.54
226.84
m
1999
eN
227.58
226.08
227.52
226.72
227.51
226.71
Nazwisko
Projektowa
mgr in . arch. Witold DOMINIK
Sprawdzi
mgr in . arch. Beata KRÓL
Cz stochowa, ul. Jaracza 4, pok. 19
Tel. (034) 360 - 57 - 90
Skala
adaptacja projektu powtarzalnego boisk sportowych typu ORLIK 2012
na obiekcie Zespo u Szkó w Krzepicach
przy ul. RY Y 26
dzia ka nr ewidencji gruntów 1779/4, obr b Krzepice
Uprawnienia
Podpis
Nr ewid. 65
UAN- VIII/8386/102/90
Bran a
Faza
Architektura
proj - budowlany
Nr rysunku
Data
stycze
2011 r