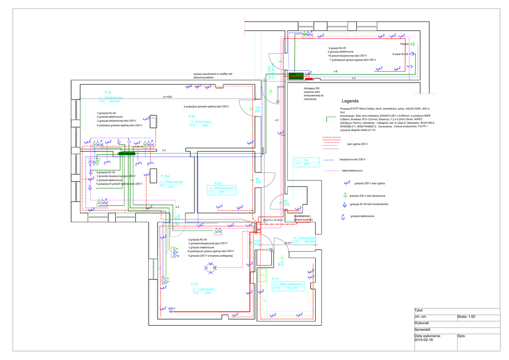
instalacja_gniazd wtykowych

Transkrypt

instalacja_gniazd wtykowych
2
2
2
15sztuk
9 gniazd RJ 45
2 gniazda telefoniczne
8 sztuk RJ 45
16 gniazd bezpiecznej sieci 230 V
2
100+ N39
210+ N100
szafa
patchpaneli
2
P.24
d=1020
1.1 Pokój biurowy
16.6
gres istn.
4 podwójne gniazda ogólnej sieci 230 V
x2
d2 100
P.24
2
2 gniazda bezpiecznej sieci 230 V
x3
1.0 Komunkacja
gres
21.2
4 podwójne gniazda ogólnej sieci 230 V
2
2
L
L
2
k L F
2
sieć ogólna 230 V
d=829
2 k L F
x2
switch 16 polowy
2
k L F
L
2
2
4 gniazda RJ 45
2 gniazda bezpiecznej sieci 230 V
bezpieczna sieć 230 V
Wc
gres
1.8
1.6
2
L
kabel telefoniczny
2
P.24a
2 gniazda telefoniczne
7 podwójnych gniazd ogólnej sieci 230 V
d4 90
1.2 Pokój biurowy
23.4
gres
2
205
P.23
1.5 Pokój archiwum
12.1
gres
1
k
k L F
d1 90
2
x2
2
1
35
L
205
2
gniazdo 230 V sieć ogólna
gniazdo 230 V sieć bezpieczna
gniazdo RJ 45 sieć komputerowa
2
d3 90
190
ks
WLZ 5 x 10 mm2
2
Rozdzielnica
główna budynku
F
gniazdo telefoniczne
2
2
k L
RP
2
3 gniazda RJ 45
3 gniazda bezpiecznej sieci 230 V
1.6 Komunkacja
31.9
istn.gres
d=317
d2 100
205
k L F
1 gniazdo telefoniczne
9 podwójnych gniazd ogólnej sieci 230 V
4 gniazda 230 V w kasecie podłogowej
90
205 d1
2
Legenda
Przewód F/UTP Wave Cables, kat.6, wewnę trzny, szary, 4x2x23 AWG, 305 m,
drut
Konstrukcja:; Ż yła: drut miedziany 23AWG 0,551 ± 0,005mm, w powłoce HDPE
0,88mm; Powłoka: PCV 0,51mm; Ś rednica: 7,3 ± 0,2mm; Ekran: Al/PET
(65/26µm); Normy i standardy: ; Kategoria: kat. 6; class E; Standardy: IEC61156-5,
EN50288-3-1, ANSI/TIA568C.2; Oznaczenia: (nazwa producenta) F/UTP +
znacznik długości kabla co 1m;
205
4 gniazda RJ 45
2 gniazda telefoniczne
2
x8
2
Istnieją ca RG
zasilania sieci
komputerowej do
rozbudowy
d6
2
2
F
7 podwójnych gniazd ogólnej sieci 230 V
d5
oprawa wbudowana w szafkę nad
zlewozmywakiem
k
2
L
k L F
2
36
2
k L
2
2
P.21
P.22
1.3
31.9
1.4 Małe Laboratorium
istn. gres
11.96
Laboratorium
gres
2
2
39
2
400 V
Tytuł:
2
2
2
Jm: cm
Skala: 1:50
Wykonał:
Sprawdził:
Data wykonania:
2015-02-18
Opis: