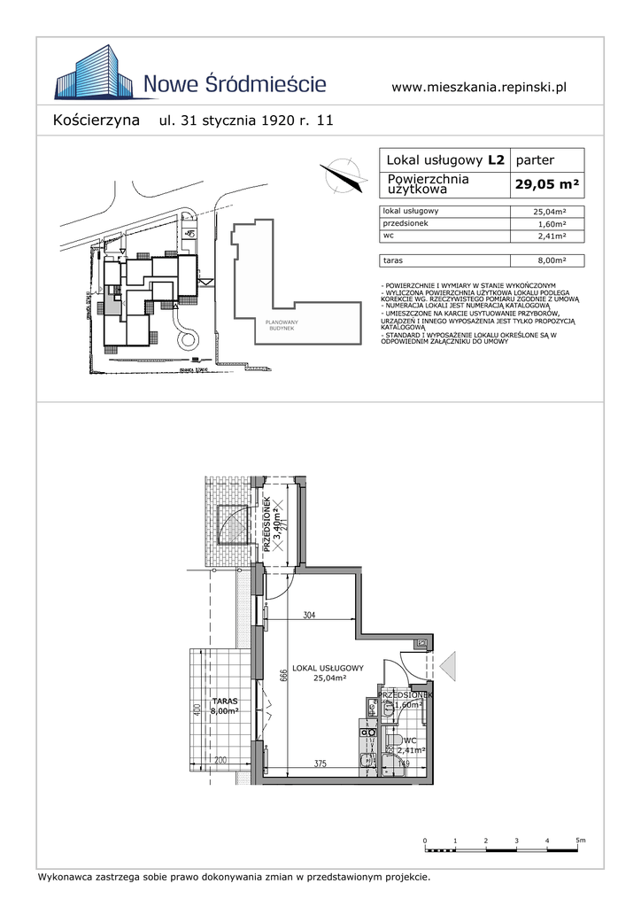
Kościerzyna ul. 31 stycznia 1920 r. 11

Transkrypt

Kościerzyna ul. 31 stycznia 1920 r. 11
www.mieszkania.repinski.pl
ul. 31 stycznia 1920 r. 11
L2 parter
Powierzchnia
przedsionek
wc
PRZEDSIONEK
taras
TARAS
PRZEDSIONEK
WC
0
Wykonawca zastrzega sobie prawo dokonywania zmian w przedstawionym projekcie.
1
2
3
4
5m