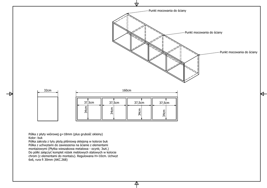
160cm 3 4 cm 37,5cm 3 4 cm 37,5cm 3 4 cm 37,5cm 37,5cm 3 4 cm

Transkrypt

160cm 3 4 cm 37,5cm 3 4 cm 37,5cm 3 4 cm 37,5cm 37,5cm 3 4 cm
Punkt mocowania do ściany
Punkt mocowania do ściany
Punkt mocowania do ściany
32cm
Półka z płyty wiórowej g=18mm (plus grubość okleiny)
Kolor: buk
Półka zakryta z tyłu płytą pilśniową oklejoną w kolorze buk
Półka z uchwytami do zawieszenia na ścianie z elementami
montażowymi (Płytka wieszakowa metalowa - ocynk; 3szt.)
Do półki załączyć komplet nóżek meblowych stalowych w kolorze
chrom (z elementami do montażu). Regulowana H=10cm. Uchwyt
6x6, rura fi 30mm (AKC.268)
37,5cm
37,5cm
34cm
37,5cm
34cm
34cm
37,5cm
34cm
160cm