1C-2RV - Jeanmueller.pl

Transkrypt

1C-2RV - Jeanmueller.pl
Typ:
Nr katalogowy:
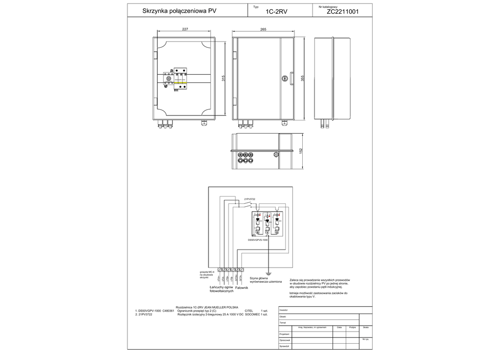
Skrzynka połączeniowa PV
1C-2RV
227
ZC2211001
315
355
265
DS50VGPV-1000
152
21PV3722
PE
I/TA-
I/TB-
O/TA-
I/TA+
I/TB+
O/TA+
21PV3722
Ft
MI
Ft
Ft
t°
MI
MI
t°
t°
GSG
GSG
GSG
C
12
14
11
O/TA+
O/TA-
I/TB-
I/TA-
I/TB+
gniazda MC-4
na obudowie
skrzynki
I/TA+
DS50VGPVS-1000
Szyna główna
wyrównawcza uziemiona
Łańcuchy ogniw Falownik
fotowoltaicznych
Zaleca się prowadzenie wszystkich przewodów
w obudowie rozdzielnicy PV po jednej stronie,
aby zapobiec powstaniu pętli indukcyjnej.
Istnieje możliwość zastosowania zacisków do
okablowania typu V.
1. DS50VGPV-1000 C480361
2. 21PV3722
Rozdzielnica 1C-2RV JEAN MUELLER POLSKA
Ogranicznik przepięć typ 2 (C)
CITEL
1 szt.
Rozłącznik izolacyjny 2-biegunowy 25 A 1000 V DC SOCOMEC 1 szt.
Inwestor
Obiekt
Temat
Imię, Nazwisko, nr uprawnień
Data
Podpis
Skala
Projektant
Nr rys.
Opracował
Sprawdził