elewacje 06.05.09 _ 5. dach inw - Specjalistyczny Zespół Opieki

Transkrypt

elewacje 06.05.09 _ 5. dach inw - Specjalistyczny Zespół Opieki
D
B
862
segment nie objęty remontem
2,864
1,060
RD
przebudowa istn.budynku na oddział urologii
wg. projektu wykonawczego z 06.2009
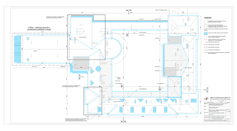
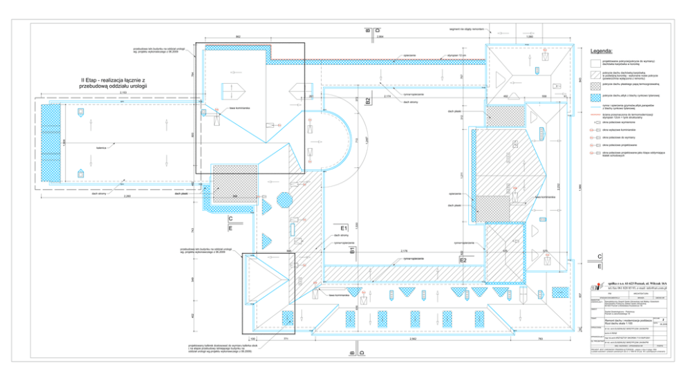
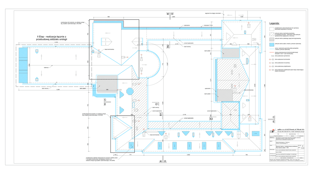
Legenda:
Dpo
opierzenie
styropian 12 cm
II Etap - realizacja łącznie z
przebudową oddziału urologii
RD
rynna+opierzenie
492
558
pokrycie dachu,attyk z blachy cynkowo tytanowej
41
dach stromy
rynna i opierzenia gzymsów,attyk,parapetów
z blachy cynkowo tytanowej
RD
dach płaski
Dw
ściana przeznaczona do termomodernizacji
styropian 12cm + tynk strukturalny
RD
312
Dwk
ława kominiarska
B2
RD
2,174
372
261
pokrycie dachu płaskiego papą termozgrzewalną
D
RD
2,153
pokrycie dachu dachówką karpiówką
w podwójną koronkę - wykonane nowe pokrycie
(powierzchnia wyłączona z remontu)
843
757
784
projektowane pokrycie(pokrycie do wymiany)
dachówka karpiówka w koronkę
okna połaciowe wymienione
D
1,008
713
1,2455
800
Dw
D
Dwk
okna wyłazowe kominiarskie
Dw
okna połaciowe do wymiany
Dp
okna połaciowe projektowane
Dpo
okna połaciowe projektowane-jako klapa oddymiająca
klatek schodowych
kalenica
Dw
Dp
RD
Dwk
dach płaski
opierzenie
566
ława kominiarska
Dw
dach płaski
RD
Dp
E
1,530
743
C
E1
dach stromy
D
2,176
475
822
848
D
rynna+opierzenie
B1
przebudowa istn.budynku na oddział urologii
wg. projektu wykonawczego z 06.2009
rynna+opierzenie
RD
rynna+opierzenie
573
C
Dpo
E2
RD
E
Dp
549
Dwk
RD
RD
a
ur
kt
ite
ch
ar acje
iz
al cje
e
r
y
st
we
in
837
Dpo
ława kominiarska
spółka z o.o. 61-623 Poznań, ul. Wilczak 16A
tel./fax 061 820 85 93, e-mail: [email protected]
PW
ARCHITEKTURA
STADIUM DOKUMENTACJI
BRANŻA
UMOWA NR
INWESTOR:
ZAMAWIAJĄCY: Specjalistyczny Zespół Opieki Zdrowotnej nad Matką i Dzieckiem
Samodzielny Publiczny Zakład Opieki Zdrowotnej
60-825 Poznań ul.Bolesława Krysiewicza 7/8
616
RD
OBIEKT:
Szpital Ginekologiczno - Położniczy
Poznań ul.Jarochowskiego 18
RD
52
TEMAT:
RD
OPRACOWAŁ:
Remont dachu i modernizacja poddasza.
Rzut dachu skala 1:100
RYS NR:
DATA:
2
06.2009
dr inż. arch.EUGENIUSZ SKRZYPCZAK 244/84/PW
techn.K.RENZ
100
771
2,562
783
SPRAWDZAJĄCY:
GŁ. PROJEKTANT:
mgr inż.arch.KRZYSZTOF SIKORSKI 7131/50/P/2001
dr inż. arch.EUGENIUSZ SKRZYPCZAK 244/84/PW
IMIĘ I NAZWISKO - UPRAWNIENIA NR
D
projektowany kaferek dostosować do wymiaru kaferka obok
( na etapie przebudowy istniejącego budynku na
oddział urologii wg.projektu wykonawczego z 06.2009)
B
2,260
402
dach stromy
1,986
RD
2,232
482
1,211
RD
PODPIS
PROJEKT JEST CHRONIONY PRAWEM AUTORSKIM - ustawa z dnia 4 lutego 1994
o prawie autorskim i prawach pokrewnych (Dz.U. z 1994 Nr 24 poz. 83 z późniejszymi zmianami)