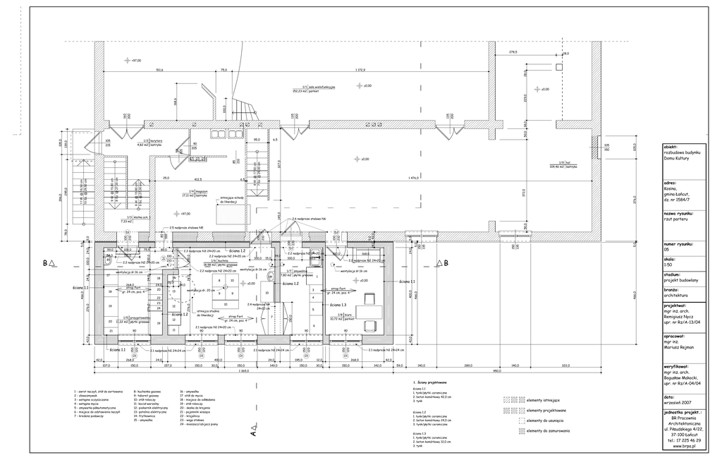
rzut parteru - b i p . g m i n a l a n c u t . p

Transkrypt

rzut parteru - b i p . g m i n a l a n c u t . p
278,5
28,0
+97,00
75,0
1€172,9
28,0
511,6
±0,00
1/1 sala wielofunkcyjna
152,23 m2 parkiet
105
150
6,5
327,0
1€476,0
145,0
istniejące schody
do likwidacji
+97,00
nazwa rysunku:
rzut parteru
2.6 nadproŜe stalowe N6
466,0
18
24,0
24,0
24,0
24,0
ściana 1.1
268,0
strop Fert
gr. 24 cm, poz. 4
14
18
26,0
20
100,0
1/6 kuchnia
18,98 m2 płytki gresowe
2.2 nadproŜe N2 24×20 cm
wentylacja śr.16 cm
17
2.2 nadproŜe N2 24×20 cm
24,0
wentylacja śr.16 cm
15
8
10
9
9
wentylacja śr. 20 cm
2
2.2 nadproŜe N2 24×20
cm
100,0
1/7 zmywalnia
7,80 m2 płytki gresowe
ściana 1.2
istniejca studnia
do likwidacji
12
19
strop Fert
gr. 24 cm, poz. 4
2.1 nadproŜe N1 24×20 cm
90
11
5,0
135
150
ściana 1.3
7
1/8 biuro
10,72 m2 parkiet
6
90
90
O1
268,0
42,0
107,0
150,0
90
150,0
30,0
24,0
150,0
149,0
195,0
150,0
120
150
O1
490,0
157,0
150
120
2.1 nadproŜe N1 24×24 cm
O1
O1
24,0
120
150
2.1 nadproŜe N1 24×24 cm
150
120
120
150
ściana 1.1
opracował:
mgr inŜ.
Mariusz Rejman
2.1 nadproŜe N1 24×24 cm
O1
12,0
30,0
268,0
150,0
42,0
142,0
59,0
140,0
1€365,0
289,0
140,0
322,0
950,0
1. Ściany projektowane
8- kuchenka gazowa
9- taboret gazowy
10- stół roboczy
11- kocioł warzelny
12- piekarnik elektryczny
13- patelnia elektryczna
14- frytkownica
15 - umywalka
ściana 1.1
1. tynk/płytki ceramiczne
2. beton komórkowy 42,0 cm
3. tynk
16 - umywalka
17 -stół do mycia
18 - miejsce do odkładania
19 - stół roboczy
20 - deska do krojenia
21 - pojemniki wiszące
22 - krajalnica
23 - waga stołowa
24 - mieszacz/ubijacz piany
ściana 1.2
1. tynk/płytki ceramiczne
2. beton komórkowy 24,0 cm
3. tynk/płytki ceramiczne
A
1 - zwrot naczyń, stół do sortowania
2 - zlewozmywak
3 - wstępne oczyszczanie
4 - wstępne mycie
5 - zmywarka półautomatyczna
6 - miejsce do odstawienia naczyń
7 - kredens podawczy
branŜa:
architektura
projektwał:
mgr inŜ. arch.
Remigiusz Nycz
upr. nr Rz/A-13/04
5
42,0
90
2.4 nadproŜe N4
24×20 cm
10
stadium:
projekt budowlany
ściana 1.1
strop Fert
gr. 24 cm, poz. 4
150,0
12
24
5,0
150
135
5,0
wentylacja śr.16 cm
1
3
10
numer rysunku:
05
skala:
1:50
B
42,0
21
2.2 nadproŜe N2 24×20 cm
4
23
276,0
276,0
276,0
20
1/5 przygotowalnia
11,22 m2 płytki gresowe
168,0
±0,00
22
19
100,0
95,0
ściana 1.2
±0,00
24,0
13
15,0
466,0
2.2 nadproŜe N2 24×20 cm
ściana 1.2
2.3 nadproŜe N3 24×20 cm
100
210
466,0
110,0
400,0
54,0
16
D1
24,0
100
210
100
210
80,0
100,0
75,5
D1
100,0
100,0
100,0
24,0
5,0
B
5,0
24,0 42,0
D2
210
80
100
100
210
5,0
D1
100
78,0
2.5 nadproŜe stalowe N5
59,0
adres:
Kosina,
gmina Łańcut,
dz. nr 1584/7
50,0
1/3 klatka sch. 1
7,33 m2
D1
obiekt:
rozbudowa budynku
Domu Kultury
1/9 hol
104,46 m2 lastryko
376,0
1/4 magazyn
17,11 m2 lastryko
±0,00
372,0
6 W. @ 15,80 cm
5 Sz. @ 27,00 cm
412,5
8 W. @ 17,50 cm
7 Sz. @ 29,00 cm
85
210
90
205
25,0
8 Sz. @ 27,00 cm
9 W. @ 15,80 cm
11 W. @ 16,50 cm
10 Sz. @ 29,50 cm
295,0
396,0
6,5
90
205
105,0
95,0
1/2 korytarz
4,82 m2 lastryko
105
215
139,0
105,0
50,0
38,0
135
200
135
200
160
200
100,0
168,6
229,0
±0,00
ściana 1.3
1. tynk/płytki ceramiczne
2. beton komórkowy 12,0 cm
3. tynk
elementy istniejące
elementy projektowane
elementy do usunięcia
elementy do zamurowania
weryfikował:
mgr inŜ. arch.
Bogusław Makocki,
upr. nr Rz/A-04/04
data:
wrzesień 2007
jednostka projekt.:
BR Pracownia
Architektoniczna
ul. Piłsudskiego 4/22,
37-100 Łańcut
tel.: 17 225 46 29
www.brpa.pl