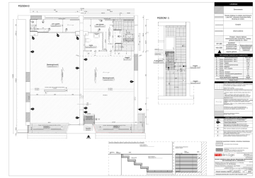
poziom 0 poziom -1 - Biblioteka Publiczna w Dzielnicy Śródmieście

Transkrypt

poziom 0 poziom -1 - Biblioteka Publiczna w Dzielnicy Śródmieście
LEGENDA
POZIOM 0
1 223,96
43
2
445
50
539,9
430,75
15
130,93
hparapet 250cm
hparapet 250cm
P1
schody
P2
07
gres6,23 m2
364,44
64
A
136
A
80
210
39,2
12
D1
D2
P4
P. gospodarcze
09
pł. ceramiczne: 2,23 m2
P4
220
B
100
Wypożyczalnia-sala2
korytarz
08
płytki gresowe: 1,36 m2
123
553
P3
80
200
Kierunek układania paneli
winylowych
1 056,25
1 346,68
Kierunek układania paneli
winylowych
B
D4
80
200
90
02
wykladzina pvc:65,12 m2
D3
Wypożyczalnia-sala1
238
01
wykladzina pvc:53,59 m2
C
B
Nr.
01
02
03
04
05
06
07
08
09
10
magazyn
Płytki podłogowe w toalecie, np. wg Opoczno, kolekcja Black & White
lub równoważne pod względem kolorystyki i formatu.
format: 33,3cm x 33,3cm
Spoina o szer. maks.3mm, w kolorze czarnym.
HP=378cm
HP=389cm
Płytki podłogowe gres, wg katalogu Ceramika Paradyż Arkesia Grys
- korytarzyk, magazyn, spocznik schodowy, płytki satyna 45cm x
45cm
- stopnie i podstopnice, płytki stopnica satyna 60cm x 30cm
- cokół satyna z dwóch stron biegu schodów 30cm x 7,2cm oraz
pozostałe powierzchnie wykończone płytkami gresowymicokół
satyna 45cm x 7,2cm
E
166
252
166
HP=285cm
Wykładzina w pomieszczeniach wypożyczalni, biurze i pom.
socjalnym, np. wg Forbo Flooring Systems - Allura Wood, nr. w61255
I seagrass natural, lub równoważna pod względem kolorystyki i
formatu.
format:15cm x 100cm, gr. 2,5mm, układana zgodnie ze wskazanym
kierunkiem na rzucie
140
140
210
B
B
Wykładzina pvc w pom. serwerowni,antyprzepięciowa,
np. wg Forbo Flooring Systems, smaragd clasic 6101, lub
równoważna pod wzgledem własciwości fizycznych
B
B
Wycieraczka systemowa szczotkowa.
Wymiary: 160cm x 100cm
102,71
Wycieraczka
systemowa
wewnętrzna
169
127,55
B
72,21
97,14
PARAPET 2
A: 6,45 m2
11,06
C
97,47
Parapet - blat drewniany o grubości ok.3,8cm, h=75cm
C
85,45
Parapet - blat drewniany o grubości ok.3,8cm, h=75cm
45
A
B
220,04
477,57
Wycieraczka
systemowa
zewnętrzna
rodzaje i kolorystyka ścian
110
286 W1
453,4
PARAPET 2
A: 4,47 m2
markiza koszowa nad witryną
Pow. [m2]
54,32
65,12
4,00
11,18
2,03
8,47
6,7
1,1
2,2
6,95
162,07
Nazwa pomieszczenia
Parter -Wypożyczalnia - sala 1
Parter -Wypożyczalnia - sala 2
Parter - Toaleta
Parter - Pomieszczenie biurowe
Parter - Magazyn
Parter - Pom. socjalne
Schody
Piwnica - Korytarz
Piwnica - Pomieszczenie gospodarcze
Piwnica - Magazyn
Suma powierzchni użytkowej
rodzaje i kolorystyka posadzek
HP=238cm
E
Numer pomieszczenia
Powierzchnia [m2]
Rodzaj posadzki
projektowanej
UWAGA!: Podczas pracy wszystkie wymiary należy potwierdzać i sprawdzać na
budowie: UWAGA!
10
płytki gresowe: 6,95 m2
292
ścinanka z płyty mdf na podkonstrukcji stalowej,
h=220cm
20
HP=378cm
HP=389cm
Nazwa pomieszczenia
ZESTAWIENIE POWIERZCHNI POMIESZCZEŃ
20
magazyn
05
wykl. pvc: 2,75 m2
wysokość
pomieszczenia
wysokość sufitu
podwieszanego
wejście główne
zabudowa liczników wody
z rewizją w ściance
20x100cm, h=80cm,
P2
C
P1
12
90
200
90
200
Hsk=260
obudowa rury
kanalizacyjnej, zabudowa
C
D01
HP=285
P3
Dp
79,05
toaleta
202,44
200
214,44
B
B
131
03
płytki ceramiczne: 4,07 m2
D1
Parapet - drewno dębowe,
wykończenie lakier bezbarwny, matowy
grubość materiału ok. 3,8cm
szafa serw.
HP=393cm
B
witryna szklona
31
B
64
schody
44,93
Lustro uchylne
60x40cm
163,5
Kierunek układania paneli
winylowych
A
A
F
131
Grzejnik
150
schody1
102
150
149
schody1
4
182
pom. biurowe
04
wykladzina pvc:10,32 m2
12
A
06
wykladzina pvc:8,47 m2
145
145
pom. socjalne
87
19,9
A
F
Ścianki działowe na stelażu aluminiowym
z płyt G/K, malowane dwukrotnie farbą
akrylową do wnętrz.
POZIOM -1
45
16,23
Zamurowania
596,94
57,06
4
50
87
schody
584
WEJŚCIE
Ściany malowane dwukrotnie, farbą akrylową do wnętrz.
Kolor szaro-beżowy, wg wzornika NCS S 1500-N
Ściany malowane dwukrotnie, farbą akrylową do wnętrz
w kolorze czarnym RAL 9011.
C
Ściana malowana dwukrotnie, farbą akrylową do wnętrz.
Kolor biały wg wzornika RAL 9016 oraz napisy dekoracyjne
wykonane techniką acetonową wg rysunku szczegółowego.
D
Płytki ceramiczne układane wg rysunku szczegółowego
E
Ściana malowana farbą Smart Wall Paint, podkład + farba w kolorze
białym. Wykonanie wg zaleceń Producenta, lub farba równoważna
pod względem właściwości fizycznych.
F
Fartuch z płytek ceramiczne ukladany do wysokosci 150cm od
poziomu posadzki. Szerokość wg wymiarów na rysunku.
markiza koszowa nad witryną
POMIESZCZENIE MAGAZYNOWE Z SERWEREM - WYBURZENIA / ZAMUROWANIA
schemat układania płytek i wykończenia posadzki przy schodach
zamurowanie otworu drzwiowego
ściana malowna
farbą w kolorze "A"
schody (stopnice,podstopnice) okladzina z płytek
wykładzina
pvc
listwa
maskująca
listwa
maskująca
płytki
płytki
wyrównanie do górnego poziomu płytą OSB na konstrukcji
drewnianej,
całość wykończona wykładziną antyprzepięciową,
krawędzie zakończone listwą schodową pcw
JEDNOSTKA ODPOWIEDZIALNA ZA OPRACOWANIE
poziom +/- 0,00
cokół z płytek
ściana malowna
farbą w kolorze "A"
REA Design
sp. z o.o.
ul.Ogrodowa 5a, 55-093 Kiełczów
tel. 501 874787, 501 87 4747
[email protected]
20
TEMAT OPRACOWANIA
PROJEKT ARANŻACJI LOKALU NA CELE BIBLIOTECZNE ZNAJDUJĄCEGO
SIĘ W WARSZAWIE PRZY UL. BROWARNEJ 4
INWESTOR
Biblioteka Publiczna w Dzielnicy Śródmieście m. st. Warszawy,
ul. Marszałkowska 9/15, 00 - 626 Warszawa
ADRES INWESTYCJI
Warszawa Śródmieście, ul. Browarna 4, rejon Powiśle
PROJEKTANT WNĘTRZ
PROJEKTANT ARCHITEKTURY
AGNIESZKA OPIELA mgr inż. arch. ANNA JAWOROWSKA-SWARBUŁA
upr. nr 175/00/DUW
STADIUM
spocznik
DATA
aktualizacja
PROJEKT ARANŻACJI WNĘTRZ STYCZEŃ 2015
SKALA
1:50
NR. RYSUNKU
AW 01
NAZWA RYSUNKU
ROZWIĄZANIA MATRIAŁOWE I KOLORYSTYCZNE POSADZEK I ŚCIAN