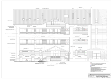
2.elewacja płn-wsch - BIP - Urząd Miejski w Żywcu

Transkrypt

2.elewacja płn-wsch - BIP - Urząd Miejski w Żywcu
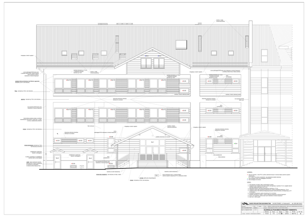
Oi-3
Oi-3
warstwa styropianu gr. 15 cm
+ dodatkowa warstwa
styroduru gr.12cm
(haki rynnowe co 40cm),
warstwa styropianu gr. 15 cm
+ dodatkowa warstwa
styroduru gr.12cm
warstwa styropianu gr. 15 cm
+ dodatkowa warstwa
styroduru gr.12cm
Os-10
Os-10
Os-10
Os-10
Os-10
O-05
:
okno
do likwidacji
O-03
O-03
styropian gr.2cm, tynk akrylowy
O-05
filary : styropian gr.15cm, tynk akrylowy
drewniane elementy obudowy
drewniane elementy obudowy
gzymsy : styropian gr.15cm, tynk akrylowy
tytan-cynk
okno
do likwidacji
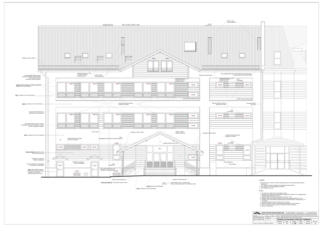
Os-10
Os-10
Os-10
Os-10
Os-10
O-05
kwadratowym boku 6mm) i oczku 5cm - w karo,
O-03
O-03
O-05
filar do skucia
stalowej powlekanej
drewniane elementy obudowy
: styropian gr.15cm, tynk akrylowy
rynna
drewniane elementy obudowy
O-08
O-03
O-03
O-08
podbitka drewniana do remontu
okno
do likwidacji
O-03
Dz-1
Oi-4
: styropian gr.15cm,
tynk akrylowy boniowany
O-05
projektowany systemowy
projektowany systemowy
okno
Dz-3
jednostronne z blachy powlekanej
ze rdzeniem ze styropianu
listwa startowa
Dz-3
O-04
O-02
barierka ze stali nierdzewnej
barierka ze stali nierdzewnej
: tynk akrylowy na kleju i siatce
Dz-1
schody
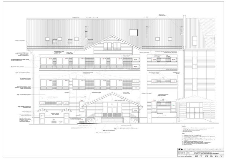
LEGENDA :
zespolonymi
U=1,1 [W/m2*K] uchylno-rozwieralne (wg zestawienia stolarki okiennej)
: styropian gr.10cm, tynk akrylowy
UWAGI :
1. tynk akrylowy na siatce i kleju w technologii na mokro
2.
3.
4.
5.
6.
7.
8.
9. kolor krat - ciemny grafit
34-300
Upr:
podpis:
208/89 B-B
124/92 B-B
tel. (033) 861-36-31
Temat:
Inwestor:
24/KW/73
Faza :
Licencja : AutoCAD LT 2000i Serial No 50395073
Budowl.
P.B.
Skala :
1 : 50
Data :
Nr rej.
Nr rys.
2010 r.
967/10
2