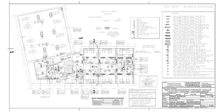
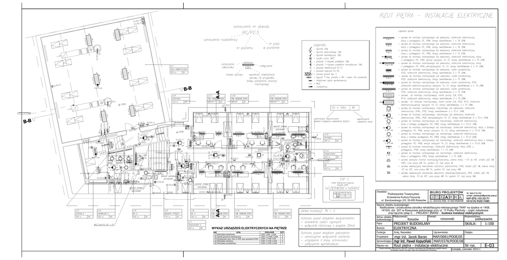
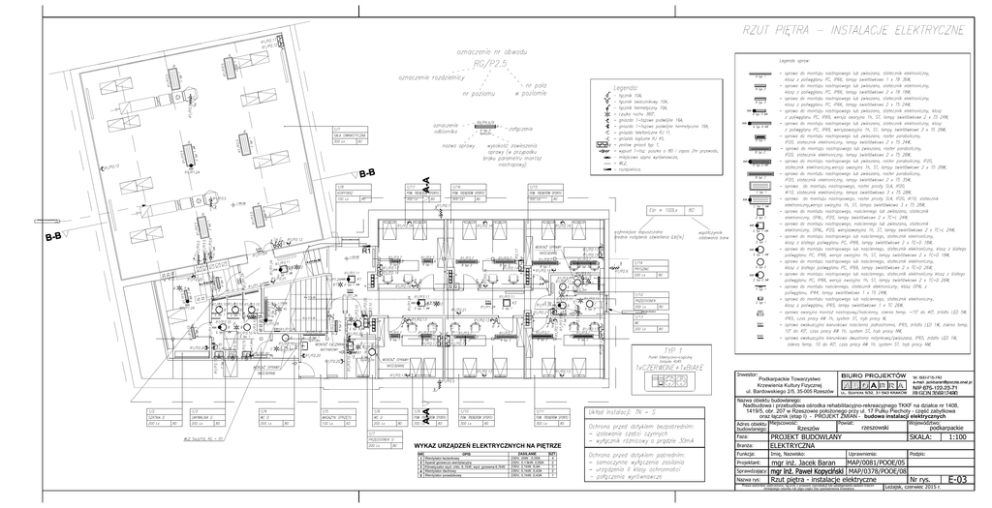
R1 PROJEKT BUDOWLANY ELEKTRYCZNA 1:100 SKALA: Rzut

Transkrypt

R1 PROJEKT BUDOWLANY ELEKTRYCZNA 1:100 SKALA: Rzut
2
AW
AW
AW
AW
AW
+ 397,00
2
3
Siatka - na wysokość do
2,20
AW
5
E W1
R1
4
AW
+ 321,00
4
3
+ 321,00
AW
AW
E W1
AW
E W1
1
EW2
9 x 17 x 30
+ 321,00
AW
+ 170,00
AW
1
EW2
AW
AW1
Montaż żaluzji w
oknie
1
10 x 17 x 30
AW
EW1
AW
AW
EW1
EW2
1
Inwestor:
Podkarpackie Towarzystwo
Krzewienia Kultury Fizycznej
ul. Bardowskiego 2/5, 35-005 Rzeszów
3
Nazwa obiektu budowlanego:
Nadbudowa i przebudowa ośrodka rehabilitacyjno-rekreacyjnego TKKF na działce nr 1408,
1419/5, obr. 207 w Rzeszowie położonego przy ul. 17 Pułku Piechoty - część zabytkowa
oraz łącznik (etap I) - PROJEKT ZMIAN - budowa instalacji elektrycznych
Adres obiektu Miejscowość:
Rzeszów
budowlanego:
Branża:
PROJEKT BUDOWLANY
ELEKTRYCZNA
Funkcja:
Imię, Nazwisko:
Projektant:
mgr inż. Jacek Baran
Faza:
WYKAZ URZĄDZEŃ ELEKTRYCZNYCH NA PIĘTRZE
NR
1
2
3
4
5
OPIS
Wentylator łazienkowy
Aparat grzewczo-wentylacyjny
Klimatyzator wyd. chło. 6,1kW, wyd. grzewna 6,7kW
Wentylator dachowy
Wentylator posadzkowy
ZASILANIE
230V, 20W , 0,05A
230V, 0,13kW, 0,55A
230V, 2,1kW, 9,4A
230V, 0,1kW, 0,43A
230V, 0,1kW, 0,43A
SZT.
4
2
3
2
1
Powiat:
Sprawdzający:
Nazwa rys:
rzeszowski
Województwo:
podkarpackie
SKALA:
Uprawnienia:
1:100
Podpis:
MAP/0081/POOE/05
MAP/0378/POOE/08
Rzut piętra - instalacje elektryczne
Prawa autorskie zastrzeżone, łącznie z prawem reprodukcji lub udostępniania osobom trzecim
niniejszego rysunku lub jego części bez upoważnienia Inwestora.
Nr rys.
Leżajsk, czerwiec 2015 r.
E-03