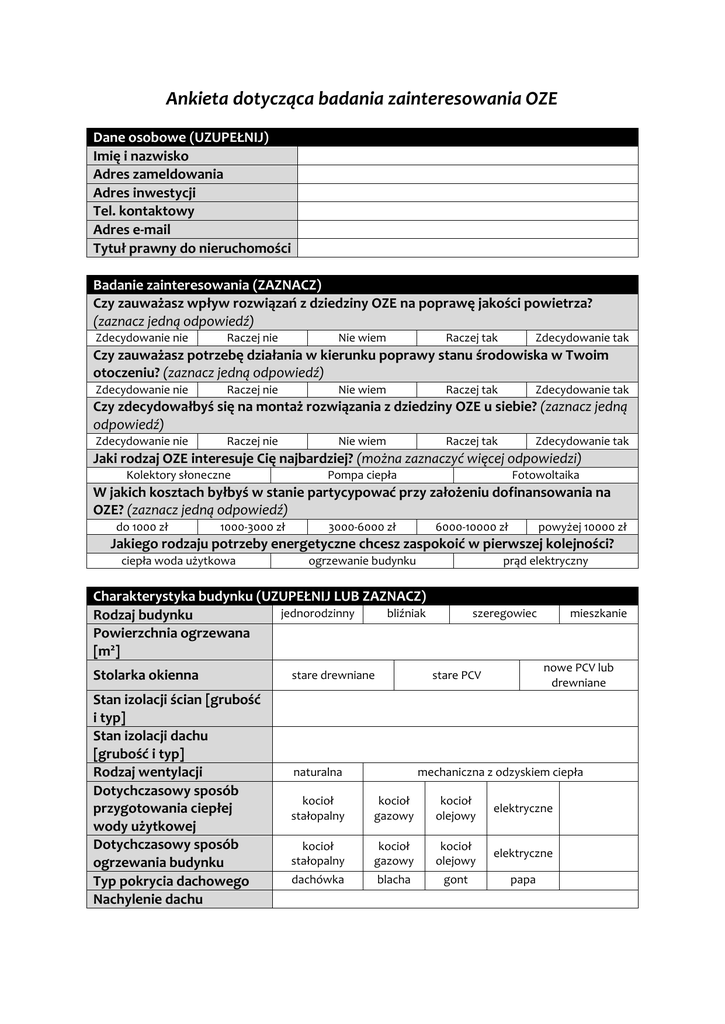
Ankieta dotycząca badania zainteresowania OZE

Transkrypt

Ankieta dotycząca badania zainteresowania OZE
Ankieta dotycząca badania zainteresowania OZE
Dane osobowe (UZUPEŁNIJ)
Imię i nazwisko
Adres zameldowania
Adres inwestycji
Tel. kontaktowy
Adres e-mail
Tytuł prawny do nieruchomości
Badanie zainteresowania (ZAZNACZ)
Czy zauważasz wpływ rozwiązań z dziedziny OZE na poprawę jakości powietrza?
(zaznacz jedną odpowiedź)
Zdecydowanie nie
Raczej nie
Nie wiem
Raczej tak
Zdecydowanie tak
Czy zauważasz potrzebę działania w kierunku poprawy stanu środowiska w Twoim
otoczeniu? (zaznacz jedną odpowiedź)
Zdecydowanie nie
Raczej nie
Nie wiem
Raczej tak
Zdecydowanie tak
Czy zdecydowałbyś się na montaż rozwiązania z dziedziny OZE u siebie? (zaznacz jedną
odpowiedź)
Zdecydowanie nie
Raczej nie
Nie wiem
Raczej tak
Zdecydowanie tak
Jaki rodzaj OZE interesuje Cię najbardziej? (można zaznaczyć więcej odpowiedzi)
Kolektory słoneczne
Pompa ciepła
Fotowoltaika
W jakich kosztach byłbyś w stanie partycypować przy założeniu dofinansowania na
OZE? (zaznacz jedną odpowiedź)
do 1000 zł
1000-3000 zł
3000-6000 zł
6000-10000 zł
powyżej 10000 zł
Jakiego rodzaju potrzeby energetyczne chcesz zaspokoić w pierwszej kolejności?
ciepła woda użytkowa
ogrzewanie budynku
prąd elektryczny
Charakterystyka budynku (UZUPEŁNIJ LUB ZAZNACZ)
jednorodzinny
bliźniak
Rodzaj budynku
Powierzchnia ogrzewana
[m2]
Stolarka okienna
Stan izolacji ścian [grubość
i typ]
Stan izolacji dachu
[grubość i typ]
Rodzaj wentylacji
Dotychczasowy sposób
przygotowania ciepłej
wody użytkowej
Dotychczasowy sposób
ogrzewania budynku
Typ pokrycia dachowego
Nachylenie dachu
stare drewniane
szeregowiec
nowe PCV lub
drewniane
stare PCV
naturalna
mieszkanie
mechaniczna z odzyskiem ciepła
kocioł
stałopalny
kocioł
gazowy
kocioł
olejowy
elektryczne
kocioł
stałopalny
kocioł
gazowy
kocioł
olejowy
elektryczne
dachówka
blacha
gont
papa
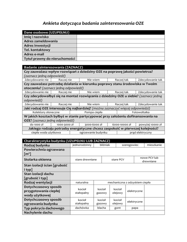
Dostępna powierzchnia na
gruncie lub dachu
Informacje dodatkowe (UZUPEŁNIJ LUB ZAZNACZ)
TAK
Dostęp do internetu
Ilość osób stale użytkujących budynek
Zużycie energii elektrycznej za rok
ubiegły [kWh]
Zużycie wody za rok ubiegły [m3]
Rodzaj i zużycie opału w roku ubiegłym
[t lub m3 lub kWh]
NIE
Zgodnie z Ustawą z dnia 29. 08. 1997 roku o ochronie danych osobowych (tekst jednolity: Dz. U. z
2002 r. Nr 101, poz. 926 ze zm.) oświadczam, że:
•
wyrażam zgodę na przetwarzanie moich danych osobowych, do celów związanych z
uruchomieniem oraz realizacją projektu współfinansowanego ze środków dotacyjnych w zakresie
czynności dotyczących budowy mikroinstalacji prosumenckich wykorzystujących odnawialne
źródła energii w zakresie związanym ze wszystkimi czynnościami, operacjami i pracami
niezbędnymi do przygotowania, uruchomienia, wdrożenia, realizacji i rozliczenia projektu,
•
jestem świadomy/a przysługującego mi prawa uaktualniania, uzupełniania, usunięcia
danych ze zbioru oraz możliwości wglądu do nich. Oświadczam ponadto, że moje dane osobowe
udostępniam dobrowolnie.
………………………………………
miejscowość i data
………………………………………
czytelny podpis