Zobacz rzut mieszkania

Transkrypt

Zobacz rzut mieszkania
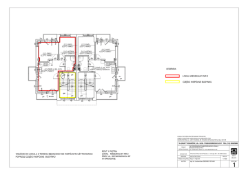
LEGENDA
LOKAL MIESZKALNY NR 2
2
CZĘŚCI WSPÓLNE BUDYNKU
1A-2.6
LOKALE WYDZIELONE ŚCIANAMI TRWAŁYMI
CZĘŚCI WSPÓLNE OZNACZONO KOLOREM ŻÓŁTYM
INWENTARTZACJA JEST ZGODNA ZE STANEM ISTNIEJĄCYM NA MAJ 2015 R
TEMAT
OPRACOWANIA
WEJŚCIE DO LOKALU Z TERENU BĘDĄCEGO WE WSPÓLNYM UŻYTKOWANIU
POPRZEZ CZĘŚCI WSPÓLNE BUDYNKU
RZUT 1 PIĘTRA
LOKAL MIESZKALNY NR 2
PRZY UL. SZYMONOWICA 9F
W KRAKOWIE
INWESTOR
BRANŻA
TREŚĆ RYSUNKU
AUTOR
WYODRĘBNIENIE SAMODZIELNEGO LOKALU
MIESZKALNEGO NR 2
W KRAKOWIE PRZY UL. SZYMONOWICA 9F
FHU Dom Plus Karol Pietryka, ul. Unruga 26 i, 30-349 Kraków
ARCHITEKTURA
SKALA
RZUT 1 PIĘTRA
1:100
mgr inż. budownictwa ZBIGNIEW SCHAB
DATA:
05.2015
RYS. NR
1
LEGENDA
POM. PRZYNALEŻNE DO LOK. NR 2
CZĘŚCI WSPÓLNE BUDYNKU
3
POMIESZCZENIA PRZYNALEŻNE WYDZIELONE ŚCIANAMI TRWAŁYMI
CZĘŚCI WSPÓLNE BUDYNKU OZNACZONO KOLOREM ŻÓŁTYM
INWENTARTZACJA JEST ZGODNA ZE STANEM ISTNIEJĄCYM NA STYCZEŃ 2016 R
PIONY WENTYLACYJNE I KOMINOWE
NIE SĄ ELEMANTAMI WYDZIELANYCH
LOKALI
TEMAT
WEJŚCIE DO POMIESZCZEŃ PRZYNALEŻNYCH Z TERENU BĘDĄCEGO
WE WSPÓLNYM UŻYTKOWANIU POPRZEZ
CZĘŚCI WSPÓLNE BUDYNKU
OPRACOWANIA
RZUT 2 PIĘTRA
POMIESZCZENIA PRZYNALEŻNE DO LOKALU NR 2
PRZY UL. SZYMONOWICA 9F
W KRAKOWIE
INWESTOR
BRANŻA
TREŚĆ RYSUNKU
AUTOR
WYODRĘBNIENIE POMIESZCZEŃ PRZYNALEŻNYCH
DO LOKALU MIESZKALNEGO NR 2
W KRAKOWIE PRZY UL. SZYMONOWICA 9F
FHU Dom Plus Karol Pietryka, ul. Unruga 26 i, 30-349 Kraków
ARCHITEKTURA
SKALA
RZUT 2 PIĘTRA
1:100
mgr inż. budownictwa ZBIGNIEW SCHAB
DATA:
02.2016
RYS. NR
2