PROJEKT Deklaracja 1

Transkrypt

PROJEKT Deklaracja 1
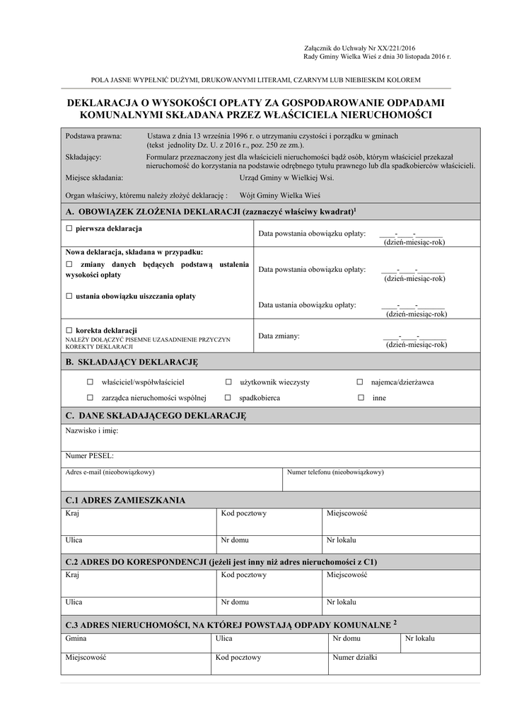
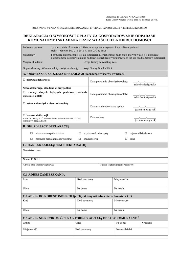
Załącznik do Uchwały Nr XX/221/2016
Rady Gminy Wielka Wieś z dnia 30 listopada 2016 r.
POLA JASNE WYPEŁNIĆ DUŻYMI, DRUKOWANYMI LITERAMI, CZARNYM LUB NIEBIESKIM KOLOREM
DEKLARACJA O WYSOKOŚCI OPŁATY ZA GOSPODAROWANIE ODPADAMI
KOMUNALNYMI SKŁADANA PRZEZ WŁAŚCICIELA NIERUCHOMOŚCI
Podstawa prawna:
Ustawa z dnia 13 września 1996 r. o utrzymaniu czystości i porządku w gminach
(tekst jednolity Dz. U. z 2016 r., poz. 250 ze zm.).
Składający:
Formularz przeznaczony jest dla właścicieli nieruchomości bądź osób, którym właściciel przekazał
nieruchomość do korzystania na podstawie odrębnego tytułu prawnego lub dla spadkobierców właścicieli.
Miejsce składania:
Urząd Gminy w Wielkiej Wsi.
Organ właściwy, któremu należy złożyć deklarację :
Wójt Gminy Wielka Wieś
A. OBOWIĄZEK ZŁOŻENIA DEKLARACJI (zaznaczyć właściwy kwadrat)1
□ pierwsza deklaracja
Data powstania obowiązku opłaty:
____-____-_______
(dzień-miesiąc-rok)
Data powstania obowiązku opłaty:
____-____-_______
(dzień-miesiąc-rok)
Data ustania obowiązku opłaty:
____-____-_______
(dzień-miesiąc-rok)
Data zmiany:
____-____-_______
(dzień-miesiąc-rok)
Nowa deklaracja, składana w przypadku:
□
zmiany danych będących podstawą ustalenia
wysokości opłaty
□ ustania obowiązku uiszczania opłaty
□ korekta deklaracji
NALEŻY DOŁĄCZYĆ PISEMNE UZASADNIENIE PRZYCZYN
KOREKTY DEKLARACJI
B. SKŁADAJĄCY DEKLARACJĘ
□
□
właściciel/współwłaściciel
zarządca nieruchomości wspólnej
□
□
□
□
użytkownik wieczysty
spadkobierca
najemca/dzierżawca
inne
C. DANE SKŁADAJĄCEGO DEKLARACJĘ
Nazwisko i imię:
Numer PESEL:
Adres e-mail (nieobowiązkowy)
Numer telefonu (nieobowiązkowy)
C.1 ADRES ZAMIESZKANIA
Kraj
Kod pocztowy
Miejscowość
Ulica
Nr domu
Nr lokalu
C.2 ADRES DO KORESPONDENCJI (jeżeli jest inny niż adres nieruchomości z C1)
Kraj
Kod pocztowy
Miejscowość
Ulica
Nr domu
Nr lokalu
C.3 ADRES NIERUCHOMOŚCI, NA KTÓREJ POWSTAJĄ ODPADY KOMUNALNE 2
Gmina
Ulica
Nr domu
Miejscowość
Kod pocztowy
Numer działki
Nr lokalu
D. NA NIERUCHOMOŚCI ZAMIESZKAŁEJ WSKAZANEJ W CZEŚCI C.3 ODPADY KOMUNALNE
GROMADZONE SĄ W NASTĘPUJĄCY SPOSÓB 3
□
selektywnie (segregowane)
□
nieselektywnie (niesegregowane)
Kompostuję biodegradowalne odpady zielone we własnym kompostowniku:
TAK □
NIE □
E. OŚWIADCZENIE WŁAŚCICIELA NIERUCHOMOŚCI
Oświadczam, że na terenie nieruchomości wskazanej w części C.3 niniejszej deklaracji zameldowanych jest:
…………………………,
(liczba osób)
Lp.
a zamieszkuje4: ….…….…………..……………………
(liczba osób wg. poniższego zestawienia)
Nazwisko i imię:
PESEL
1.
2.
3.
4.
5.
6.
7.
8.
9.
10.
(w przypadku większej liczby mieszkańców dane należy zamieścić w odrębnym załączniku)
Wyliczenie miesięcznej opłaty za gospodarowanie odpadami:
…………………………………….………………
(stawka opłaty za odpady zbierane selektywnie)
………..…….………….…….
(liczba osób zamieszkałych)
x
lub
=
………………….….………… zł.
(iloczyn liczby osób i stawki opłaty)
…………………………………….………………
(stawka opłaty za odpady zbierane nieselektywnie)
za
1
Wysokość zwolnienia z opłaty za gospodarowanie odpadami
komunalnymi określona w Uchwale Rady Gminy Wielka Wieś
2
Wyliczenie kwoty zwolnienia
3
Obliczona dla nieruchomości wysokość opłaty
gospodarowanie odpadami komunalnymi wynosi
miesięcznej
(Iloczyn ilości osób podlegających zwolnieniu oraz stawki opłaty)
Miesięczna kwota opłaty5
(Od wartości z poz. 1 należy odjąć wartość z poz. 3)
4
100% na trzecie i kolejne
dziecko
W przypadku rozbieżności w liczbie osób zameldowanych, a zamieszkałych należy podać przyczynę:
………..…….………………………………………………………………………………………………………………….…………………
……………………………………………………………………………………………………………………………………………………
……………………………………………………………………………………………………………………………………………………
F. ZAŁĄCZNIKI (należy zakreślić i dołączyć właściwe w przypadku występowania poniższych okoliczności)
1. Dokument potwierdzający stałą nieobecność mieszkańca na terenie posesji, wystawione przez odpowiednie instytucje, w
szczególności:
a) domy spokojnej starości,
b) domy dziecka,
c) zakłady karne,
d) placówki opieki zdrowotnej,
e) jednostki wojskowe,
f) uczelnie wyższe w przypadku studentów uczących się w systemie dziennym, zamieszkujących poza gminą,
g) zakłady pracy w przypadku delegacji dłuższych niż jeden miesiąc,
h) inny dokument ...........................................................................................................................................................
2. Dokument potwierdzający, że mieszkaniec jest objęty opłatą za odbiór odpadów komunalnych w innej gminie.
3.Kserokopie Kart Dużej Rodziny6, członków rodziny wielodzietnej.
G. PODPIS SKŁADAJĄCEGO DEKLARACJĘ
……….…………………………………
(miejscowość i data)
………….…………..…………………..
(czytelny podpis)
POUCZENIE
Zgodnie z art. 6o ust. 1 ustawy z dnia 13 września 1996 r. o utrzymaniu czystości i porządku w gminach (t.j.: Dz. U. z
2016r., poz. 250 z późn. zm.) - w razie niezłożenia deklaracji o wysokości opłaty za gospodarowanie odpadami
komunalnymi albo uzasadnionych wątpliwości co do danych zawartych w deklaracji wójt, burmistrz lub prezydent miasta
określa, w drodze decyzji, wysokość opłaty za gospodarowanie odpadami komunalnymi, biorąc pod uwagę dostępne dane
właściwe dla wybranej przez radę gminy metody, a w przypadku ich braku - uzasadnione szacunki, w tym w przypadku
nieruchomości, na których nie zamieszkują mieszkańcy, średnią ilość odpadów komunalnych powstających na
nieruchomościach o podobnym charakterze.
W przypadku nieuiszczenia w określonych terminach kwoty opłaty za gospodarowanie odpadami komunalnymi lub
wpłacenia jej w niepełnej wysokości niniejsza deklaracja stanowi podstawę do wystawienia tytułu wykonawczego zgodnie z
art. 3a Ustawy z dnia 17 czerwca 1966 r. o postępowaniu egzekucyjnym w administracji (tekst jednolity Dz. U. z 2016 r.,
poz. 599 z późn. zm.).
1. Zgodnie z art. 6m ustawy z dnia 13 września 1996 r. o utrzymaniu czystości i porządku w gminach (t.j.: Dz. U. z 2016r., poz. 250 z późn. zm.)
właściciel nieruchomości jest obowiązany złożyć do Wójta Gminy Wielka Wieś deklarację o wysokości opłaty za gospodarowanie odpadami
komunalnymi w terminie 14 dni od dnia zamieszkania na danej nieruchomości pierwszego mieszkańca lub powstania na danej nieruchomości
odpadów komunalnych.
W przypadku zmiany danych będących podstawą ustalenia wysokości należnej opłaty za gospodarowanie odpadami komunalnymi, właściciel
nieruchomości bądź osoby, którym właściciel przekazał nieruchomość do korzystania na podstawie odrębnego tytułu prawnego lub spadkobiercy
właścicieli, są obowiązani złożyć do Wójta Gminy Wielka Wieś nową deklarację w terminie 14 dni od dnia zaistnienia zmiany.
Opłatę za gospodarowanie odpadami w zmienionej wysokości uiszcza się za miesiąc, w którym nastąpiła zmiana.
2. Dla każdej nieruchomości należy złożyć odrębną deklarację.
3. Zasady segregowania odpadów określone są w Regulaminie utrzymania czystości i porządku na terenie Gminy Wielka Wieś. Sposób zbierania
odpadów będzie podlegał bieżącej kontroli. W przypadku nie wywiązania się z obowiązku selektywnego zbierania odpadów komunalnych, Wójt, w
drodze decyzji administracyjnej, naliczy opłatę za odbiór odpadów komunalnych gromadzonych nieselektywnie.
4. Za osobę zamieszkałą należy rozumieć osobę, która przebywa na danej nieruchomości w celu zaspokajania potrzeb mieszkaniowych.
5. W przypadku nieruchomości zamieszkałych, opłatę należy wpłacać do 20 dnia każdego miesiąca, którego obowiązek ponoszenia opłaty dotyczy,
na indywidualny rachunek bankowy, przyporządkowany właścicielowi każdej nieruchomości, w tytule podając adres nieruchomości na której
powstają odpady komunalne, lub do rąk inkasenta.
6. Rodzina wielodzietna w rozumieniu ustawy z dnia 5 grudnia 2014 r. o Karcie Dużej Rodziny (tj. Dz.U. z 2016 r. poz. 785) tj. rodzina, w której
rodzic (rodzice) lub małżonek rodzica mają na utrzymaniu co najmniej troje dzieci:
1) w wieku do ukończenia 18. roku życia;
2) w wieku do ukończenia 25. roku życia - w przypadku gdy dziecko uczy się w:
a) szkole - do dnia 30 września następującego po końcu roku szkolnego,
b) szkole wyższej - do końca roku akademickiego
- w którym jest planowane ukończenie nauki zgodnie z oświadczeniem, o którym mowa w art. 10 ust. 4 pkt 4;
3) bez ograniczeń wiekowych - w przypadku dzieci legitymujących się orzeczeniem o umiarkowanym albo znacznym stopniu niepełnosprawności.
Członkami rodziny wielodzietnej są:
1) rodzic (rodzice) - przez którego rozumie się także rodzica (rodziców) zastępczych lub osobę (osoby) prowadzącą rodzinny dom dziecka;
2) małżonek rodzica;
3) dziecko - przez które rozumie się także dziecko, nad którym rodzic sprawuje rodzinną pieczę zastępczą, oraz osobę przebywającą w
dotychczasowej rodzinie zastępczej albo w rodzinnym domu dziecka, o której mowa w art. 37 ust. 2 ustawy z dnia 9 czerwca 2011 r. o wspieraniu
rodziny i systemie pieczy zastępczej (Dz.U. z 2016 r. poz. 575).