podstawy projektowania komputerowego komputerowe

Transkrypt

podstawy projektowania komputerowego komputerowe
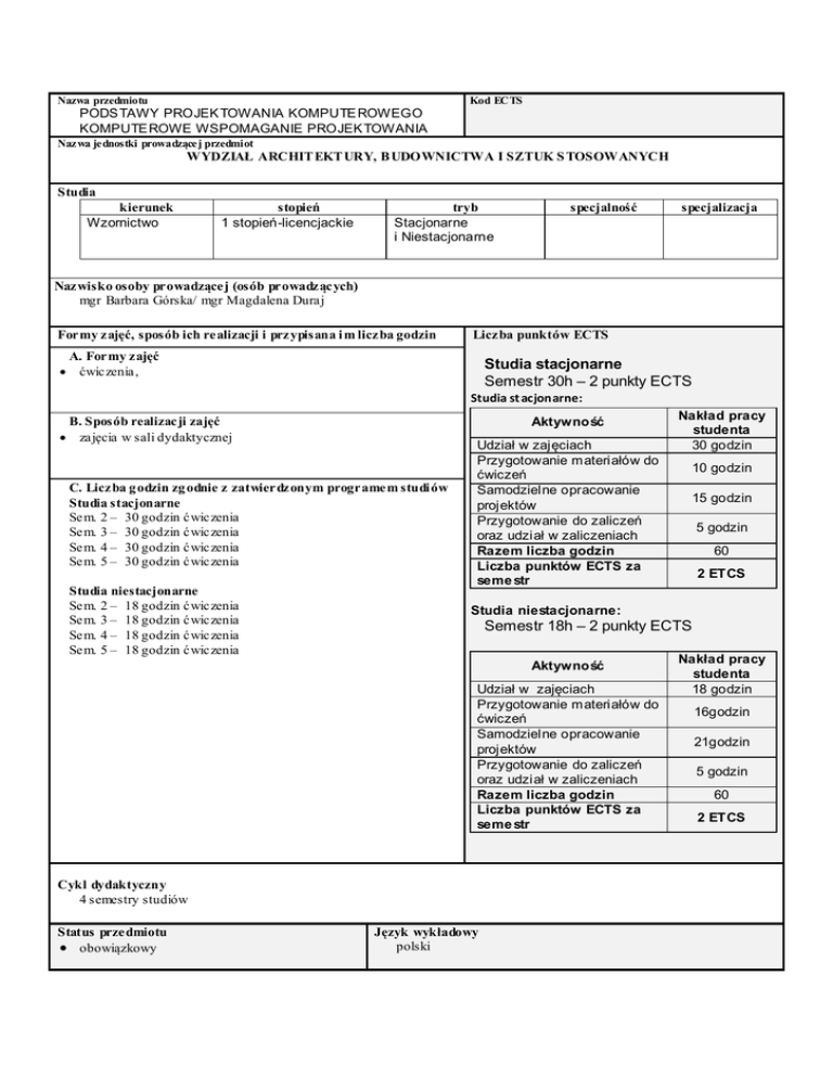
Nazwa przedmiotu
Kod ECTS
PODS TAWY PROJEK TOWANIA KOMPUTE ROWEGO
KOMPUTE ROWE WSPOMAGANIE PROJEK TOWANIA
Naz wa je dnostki prowadzące j przedmiot
WYDZIAŁ ARCHIT EKT URY, B UDOWNICTWA I SZTUK S TOSOWANYCH
Studia
kierunek
Wzornictwo
stopień
1 stopień-licencjackie
tryb
Stacjonarne
i Niestacjonarne
specjalność
specjalizacja
Nazwisko osoby prowadzącej (osób prowadzących)
mgr Barbara Górska/ mgr Magdalena Duraj
Formy zajęć, sposób ich realizacji i przypisana i m liczba godzin
·
Liczba punktów ECTS
A. Formy zajęć
ćwiczenia,
Studia stacjonarne
Semestr 30h – 2 punkty ECTS
Studia st acjonarne:
B. Sposób realizacji zajęć
· zajęcia w sali dydaktycznej
Aktywność
C. Liczba g odzin zg odnie z zatwierdzonym programem studi ów
Studia stacjonarne
Sem. 2 – 30 godzin ćwiczenia
Sem. 3 – 30 godzin ćwiczenia
Sem. 4 – 30 godzin ćwiczenia
Sem. 5 – 30 godzin ćwiczenia
Studia niestacjonarne
Sem. 2 – 18 godzin ćwiczenia
Sem. 3 – 18 godzin ćwiczenia
Sem. 4 – 18 godzin ćwiczenia
Sem. 5 – 18 godzin ćwiczenia
Udział w zajęciach
Przygotowanie materiałów do
ćwiczeń
Samodzielne opracowanie
projektów
Przygotowanie do zaliczeń
oraz udział w zaliczeniach
Razem liczba godzin
Liczba punktów ECTS za
seme str
10 godzin
15 godzin
5 godzin
60
2 ETCS
Studia niestacjonarne:
Semestr 18h – 2 punkty ECTS
Aktywność
Udział w zajęciach
Przygotowanie materiałów do
ćwiczeń
Samodzielne opracowanie
projektów
Przygotowanie do zaliczeń
oraz udział w zaliczeniach
Razem liczba godzin
Liczba punktów ECTS za
seme str
Cykl dydaktyczny
4 semestry studiów
Status przedmiotu
· obowiązkowy
Nakład pracy
studenta
30 godzin
Język wykładowy
polski
Nakład pracy
studenta
18 godzin
16godzin
21godzin
5 godzin
60
2 ETCS
Metody dydaktyczne
Zajęcia projektowe interaktywne, w czasie których
studenci według instrukcji nauczyciela, krok po kro ku
wykonują zadanie. W następnym etapie z po mocą
prowadzącego utrwalają wiedzę i ćwiczą poznane
narzędzia, przetwarzając własne prace plastyczne
z innych przed miotów projektowych.
Forma i s posób zaliczenia oraz podstawowe kryteria oceny lub
wymagania egzaminacyjne
A. S posób zaliczenia
· zaliczenie z oceną*
B. Formy zaliczenia:
Ustalenie oceny zaliczenio wej odbywa się na podstawie portfolio,
zawierającego wszystkie ćwiczenia, które zostały wykonywane na
poszczególnych zajęciach w ciągu całego semestru. Całość opracowana
w wersji elektronicznej i druko wanej.
Nieobecność na zajęciach wy maga od studenta samodzielnego
opanowania przerabianego w tym dniu materiału.
C. Podstawowe kryteri a
Przy ocenie końcowej pod uwagę brana jest aktywność studenta podczas
zajęć, jego zaangażo wanie w temat poszczególnych ćwiczeń, u miejętne
rozwiązy wanie problemó w pro jektowych, kreatywne wykorzystanie
poznanych programów, frekwencja na zajęciach.
Określenie przedmiotów wprowadzających wraz z wymog ami wstępnymi
A. Wymagania formalne
Zaliczen ie poprzedniego semestru, zaliczenie przed miotu Rysunek żurnalowy, zaliczenie programu podstawowego z
przed miotu Projektowanie Ubio ru, zaliczenie przed miotu Konstrukcja ubioru oraz Realizacje
B. Wymagania wstępne,
Student powinien być przygotowany do swobodnego posługiwania się warsztatem p lastycznym, powin ien posiadać wiedzę
z zakresu przed miotów artystycznych (ogólnoplastycznych): dotyczącą koloru, ko mpozycji, malarstwa, rysunku.
Student posiada podstawową, wiedzę z zakresu historii sztuki i historii ubioru, a także dotyczącą wzorn ictwa i techniki.
Powin ien także posiadać bogaty zakres doświadczeń projektowych związanych zarówno z rysunkiem żurnalowy m,
rysunkiem techniczny m.
Szczególn ie ważna jest:
-umiejętność komunikowania się w projektowaniu za po mocą szkiców, rysunków.
-umiejętność kreatywnego myślenia
-umiejętność posługiwania się wyobraźnią p rzestrzenną
Cele przedmi otu
SEM ESTR 2
1. Wprowadzenie do Corel Draw
-student - ma wied zę na temat podstawowych różnic między rysunkiem wektorowy m a mapą b itową.
-student potrafi odnaleźć odpowiednie narzęd zia do stworzenia p rostej grafiki wektorowej.
2. Przygotowanie i wy konanie plansz inspiracyjnych
-student potrafi odpowiednio dobrać materiały/zdjęcia inspiracyjne
-potrafi zaimportować p lik ze źródłem inspiracji
-potrafi skanować i kadrować ilustracje w formie mapy bitowej
-potrafi wykonać podstawowe transformacje obrazu wektorowego (obroty, przesunięcia,
skalowanie itp.)
-student wie do czego słu ży siatka i jak jej u żywać
-student potrafi dobrać odpowiednią czcionkę i jej ustawienie
3. Wykorzystanie programu Corel Draw do stworzen ia rysunków modelo wych odzieży
- -student potrafi stworzyć grafikę wektorową wykorzystując poznane narzęd zia
- - potrafi oddać właściwe proporcje i detale konstrukcyjne
- - potrafi p rzyp isać barwę, wzór i teksturę obiekto m
- -potrafi rysować obiekty dwuwy miarowe (krzywe, wielokąty, figury płaskie)
4. Rysunek odręczny
- student potrafi poprawnie wybrać narzędzie, dostosować jego parametry do stworzenia ró żnorodnych efektów plastycznych
5. Kreatywne zastosowanie edytora tekstu w projektowaniu
- student poprawnie dobiera rodzaj i u kład czcionki
- potrafi przekształcić literę w obiekt wektorowy i na jego podstawie stworzyć nowe propozycje
SEM ESTR 3
1. Wprowadzenie do programu Photoshop
- student używa właściwych metod do wyczyszczen ia i przygotowania skanowanego/importowanego obrazu do dalszej obróbki,
- potrafi przeprowad zić konwersję barw pomięd zy modelami RGB, CM YK
- potrafi wy konać podstawowe transformacje obrazu wektorowego (obroty, przesunięcia, skalowan ie itp.)
2. Praca na warstwach i ścieżkach
- student potrafi poprawnie wybrać narzędzia, dostosować ich parametry do stworzen ia ścieżek i warstw
3. Barwa i tekstury w programie Photoshop
- student potrafi przetworzyć szkic w profesjonalny projekt z wy korzystaniem skanowanych faktur, autorskich deseni, filtrów i
innych wcześniej poznanych narzędzi
SEM ESTR 4
1. Przygotowanie i wy konanie grafiki 2D
- student potrafi wy korzystać narzędzia programu tworzen ia grafiki wektorowej
- student potrafi poprawnie wybrać narzędzia do wariantowania motywu
- student używa właściwego programu do przygotowania pliku d la ró żnych technik (haft, flok, sitodruk, sublimacja, druk
cyfrowy, flo k cyfro wy)
- student potrafi łączyć ró żne technologie
- student wie jak przygotować dokumentację technologiczną
SEM ESTR 5
1. Zło żenie ko mpletnego projektu w programach Corel Draw i Photoshop
- student potrafi w praktyce zastosować poznane wcześniej narzędzia
- uży wa właściwych metod do zrealizowan ia założeń pro jektu
- potrafi samodzielnie zapro jektować i wy konać projekt graficzny
- zna zasady rozmieszczen ia tekstu i grafiki na stronie
- potrafi zaprojektować i zaplanować kolejne strony dokumentów przeznaczonych do druku
Treści programowe
1. Podstawowe pojęcia i definicje. S przęt i oprogramowanie.
Wprowadzenie do grafiki ko mputerowej-podstawowe pojęcia.
Przegląd zastosowania grafiki ko mputerowej w ró żnych dyscyplinach.
Grafika wektorowa i rastrowa. Pojęcie ro zd zielczości. Po większanie obrazu.
Reprezentacja kolorów. karta, mon itor, aparat, skaner, drukarka.
Zarząd zanie barwą i p rofile kolo rystyczne.
Programy graficzne – krótkie o mówienie.
Efektywne wykorzystanie grafiki – przy kłady.
2. Corel Draw
Omówienie ró żnic międ zy grafiką bitową a wektorową.
Przygotowanie do stworzenia pro jektu graficznego, zdefin iowania obszaru pracy przez wyko rzystanie ró żnego typu grafik.
Praca z wykorzystaniem grafiki wektorowej:
Podstawy rysunku wektorowego, praca z tekstem, nadawan ie wypełn ień i konturów,
Precyzy jne rysowanie, edycja krzy wych, modyfikacje obiektów, wy miarowanie.
Zasady rozmieszczenia tekstu i grafiki na stronie.
Projektowanie i p lanowanie kolejnych stron dokumentów przeznaczonych do druku.
Przygotowania do druku lub publikacji.
3. Photoshop
Omówienie podstaw programu.
Porównanie programó w Corel Draw i Photoshop -różnice i podobieństwa, przy kłady realizacji.
Tworzenie szab lonu rysunku, sposoby podglądu rysunku.
Podstawowe elementy rysunku oraz ich modyfikacja.
Przykład wy korzystania wskanowanego szkicu jako podkładu do projektu.
Ćwiczenia zło żone: warstwy, ścieżki, transformacje, filtry
Definicja barwy (kolor, nasycenie, jaskrawość i jasność) kolory Pantone
Narzędzia do two rzen ia selekcji, narzęd zia malarskie i edycyjne, palety, filtry, maskowanie, ścieżki i kształty – obraz wektoro wy
w grafice rastrowej, korekcja obrazów,
Podstawowe pojęcia dotyczące tekstur i ich parametrów. Wczytywanie tekstury z p liku.
Przedstawienie mo żliwości edytora tekstur.
Przygotowanie rysunku do wydruku.
Wykaz literatury
A. Literatura wymagana do ostatecznego zaliczenia zajęć (zdania egzaminu):
ADOBE PHOTOSHOP CS4 Oficjalny podręcznik
4. Literatura uzupeł niająca
Czasopismo-„Ogólnopolski kwartalik pro jektowy 2+3D grafika p lus produkt”, Wydawnictwo /Fundacja Rzecz Piękna WFP
ASP Krakó w.
Efekty uczenia się
Wiedza
Student zna i ro zu mie podstawowe pojęcia grafiki ko mputerowej, rastrowej i wektorowej
Zna i docenia ro lę grafiki ko mputerowej we współczesnej
Rzeczywistości.
Rozu mie podstawową terminologię związaną z technologiami informatyczny mi.
Student dysponuje aktualną wied zą na temat dostępnych narzędzi do two rzen ia grafiki 2D, śledzi
ich ro zwó j, po znaje ich nowe funkcjonalności i mo żliwości.
Umiejętności
Student powinien posiadać umiejętność analizowania i wyboru metody i narzęd zi projektowych.
Student potrafi posługiwać się programem Corel Draw i Photoshop i zna zakres ich zastosowań,
potrafi wykorzystać poznane zasady i metody oraz odpowiednie narzędzia g raficzne do
sporządzenia wybranych rysunków (techniką klasyczną i ko mputerową)
Umie świadomie posługiwać się narzęd ziami warsztatu artystycznego w wybranych obszarach
działalności plastycznej,
Umie tworzyć i realizować własne koncepcje artystyczne oraz dysponować umiejętnościami
potrzebnymi do ich wyrażenia
Podejmuje samodzieln ie decyzje odnośnie do realizacji i projektowania własnych prac
artystycznych
Posiada szeroki zakres umiejętności warsztatowych umo żliwiających realizację własnych
koncepcji artystycznych
Kompetencje s połeczne (postawy)
Student potrafi pracować w zespole, inspiruje i organizuje swój proces uczenia się oraz innych
osób.
Potrafi samodzielnie zdobyć odpowiednią wiedzę i u miejętności, niezbędne do realizacji
przydzielonego zadania
Student potrafi w prawid łowy sposób korzystać z dostępnych materiałów internetowych,
repozytoriów ob iektów g raficznych i tekstur, sam także stara się
podzielić własnymi doświadczeniami z inny mi studentami czy społecznością internetową.
Uczestniczy w życiu środowiska projektowego korzystając z ró żnych med iów i ró żnych jego
form.
Student rozumie potrzebę ciągłego aktualizowan ia i poszerzania wiedzy z zakresu grafiki 2D
zgodnie ze zmieniający mi się wersjami programu Corel Draw i Photoshop.
Zna i rozu mie podstawowe pojęcia i zasady z zakresu ochrony własności przemysłowej i prawa
autorskiego a także podstawowe zasady z zakresu ochrony własności intelektualnej.
Student ma zdolność samooceny.
Kontakt