PDF - Willa Ksaweryn

Transkrypt

PDF - Willa Ksaweryn
90
230
90
230
45
hp 0
90+90
200
90
230
2x13,5x35
7,8 m2
0.40.10
EI30
120
230
258
Pokój 1 os.
6,5 m2
0.40.9
253
hp 0
11
378
258
11
Pokój 1 os.
303
hp 0
9,8 m2
0.40.8
13,56m
90
230
90
230
hp 0
Pokój 1 os.
WILLA KSAWERYN
120
230
90
230
45
hp 0
258
ul.J.P. Woronicza 15/69
02-625 Warszawa
2x13,5x35
wysokość mieszkania 2,52m
90+30
230
woda, co
went.
garażu
90+30
230
11
hp 0
11
4,3 m2
0.40.3
Łazienka
117
hp 90
129
90
140
11
358
45
150
140
210
11
90
230
358
hp 0
hp 0
45
25
233
26
79
200
140
0
1m
2m
3m
woda, co
90+30
230
90+30
200
90+30
230
90+30
200
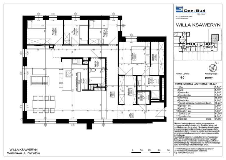
parter
Niniejsza karta katalogowa została opracowana na
podstawie projektu budowlanego. Znajdują się na niej
przykładowe aranżacje pokoi. Nie stanowi ona wiernego
odzwzorowania powstałego lokalu mieszkalnego. Karty
mają jedynie służyć wskazaniu położenia projektowanych
pomieszczeń lokalu wrysowanych na podstawie projektu
budowlanego.
Powierzchnie podano z uwzględnieniem wykończenia w
tynku. W toku dalszego projektowania mogą wystąpić
niewielkie zmiany w stosunku do informacji zawartych w
karcie katalogowej. Niniejsza karta nie stanowi wiążącego
opisu technicznego prezentowanego lokalu.
WODA
212
GSPublisherEngine 0.5.100.95
ele. tele.
4,8 m2
0.40.12
90
11
150
11
130
1,7 m2
0.40.2
11
150
120
50,2 m2
0.40.7
Garderoba
260
11,5
0.40.11
m2
Pokój 2 os.
5,2 m2
0.40.4
Garderoba
WC
71
50
Hol
90
7,7 m2
0.40.1
53
2
15
351
291
16,5 m2
0.40.5
Korytarz
301
11
90
CO
Kondygnacja:
POWIERZCHNIA UŻYTKOWA: 130,7m²
1. hol
7,7m²
2. wc
1,7m²
3. łazienka
4,3m²
4. garderoba
5,2m²
5. korytarz
16,5m²
6. łazienka
4,7m²
7. pokój dzienny z aneksem kuch. 50,2m²
8. pokój 1 os.
9,8m²
9. pokój 1 os.
6,5m²
10. pokój 1 os.
7,8m²
11. pokój 2 os
11,5m²
12. garderoba
4,8m²
13. gródek
około 312m²
went.
garażu
210
11
11
90
hp 90
126
11
120
29
11
31
180
11
15
150
44
15 60
pralka
40
30
11
138
15
90
230
40
32
90
266
67
lodówka
90
87
126
4,7 m2
0.40.6
11
Łazienka
60
zmywarka
90
Numer Lokalu:
101
90
Pokój dzienny z aneks. kuch.
85
299
322
90
90
11
3
15
301
11
11
744
137
70
230
230
N
27
120
hp 90
149
hp 0
137
WILLA KSAWERYN
Warszawa ul. Patriotów
18 x 17,5 x 26
ele. tele.
27
11
went.
garażu
18 x 17,5 x 26
4m
1. Karta katalogowa stanowi załącznik do umowy
2. Powierzchnie pomieszczeń podane są
wg. normy PN-ISO 9836