A ( 1 : 1 ) A

Transkrypt

A ( 1 : 1 ) A
6
5
4
3
2
1
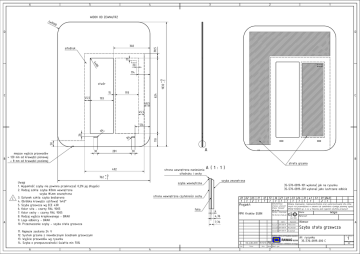
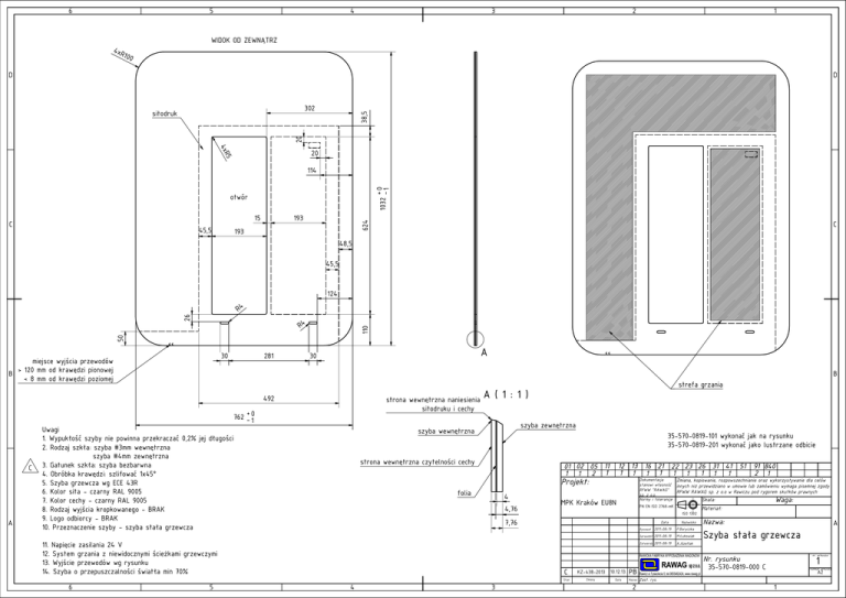
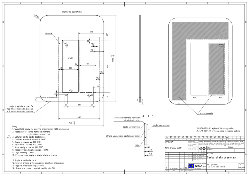
WIDOK OD ZEWN TRZ
4xR
100
D
D
20
38,5
302
sitodruk
5
4xR
20
+
1032 - 01
114
otw r
45,5
193
624
15
C
193
C
48,5
45,5
124
26
R4
50
110
R4
30
miejsce wyj cia przewod w
B > 120 mm od kraw dzi pionowej
< 8 mm od kraw dzi poziomej
281
A
30
B
strefa grzania
492
strona wewn trzna naniesienia
sitodruku i cechy
+
762 - 01
C
A
Uwagi
1. Wypuk o szyby nie powinna przekracza 0,2% jej d ugo ci
2. Rodzaj szk a: szyba #3mm wewn trzna
szyba #4mm zewn trzna
3. Gatunek szk a: szyba bezbarwna
4. Obr bka kraw dzi: szlifowa 1x45
5. Szyba grzewcza wg ECE 43R
6. Kolor sita - czarny RAL 9005
7. Kolor cechy - czarny RAL 9005
8. Rodzaj wyj cia kropkowanego - BRAK
9. Logo odbiorcy - BRAK
10. Przeznaczenie szyby - szyba sta a grzewcza
A(1:1)
szyba zewn trzna
szyba wewn trzna
35-570-0819-101 wykona jak na rysunku
35-570-0819-201 wykona jako lustrzane odbicie
strona wewn trzna czytelno ci cechy
folia
4
4,76
MPK Krak w EU8N
Zmiana, kopiowanie, rozpowszechnianie oraz wykorzystywanie dla cel w
innych ni przewidziano w umowie lub zam wieniu wymaga pisemnej zgody
RFWW RAWAG sp. z o.o w Rawiczu pod rygorem skutk w prawnych
Skala:
:
PN EN ISO 2768-mK
7,76
Data
Materia :
Nazwisko
2011-08-19
P.Boryczka
Sprawdzi 2011-08-19
M. ukowiak
Zatwierdz. 2011-08-19
A.J zefiak
Rysowa
RAWICKA FABRYKA WYPOSA ENIA WAGON W
C
4
3
Waga:
ISO 1302
Stan
5
Dokumentacja
stanowi w asno
RFWW "RAWAG"
sp. z o.o.
Normy i tolerancje
Projekt:
11. Napi cie zasilania 24 V
12. System grzania z niewidocznymi cie kami grzewczymi
13. Wyj cie przewod w wg rysunku
14. Szyba o przepuszczalno ci wiat a min 70%
6
12 13 16 21 22 23 26 31 41 51 91 840
1 1 1 1 1 1
2 1
1 1 1
01 02 05 11
1 1 2 1
KZ-438-2013 10.12.13.
Zmiany
Data
RAWAG sp z o.o.
PB
Rawicz ul.Tysiaclecia 5, tel.0655462424, www.rawag.pl
Nazwa
Zast. rys.
2
Nazwa:
A
Szyba sta a grzewcza
nr. arkusza
Nr. rysunku
35-570-0819-000 C
1
rozmiar arkusza
A2
1