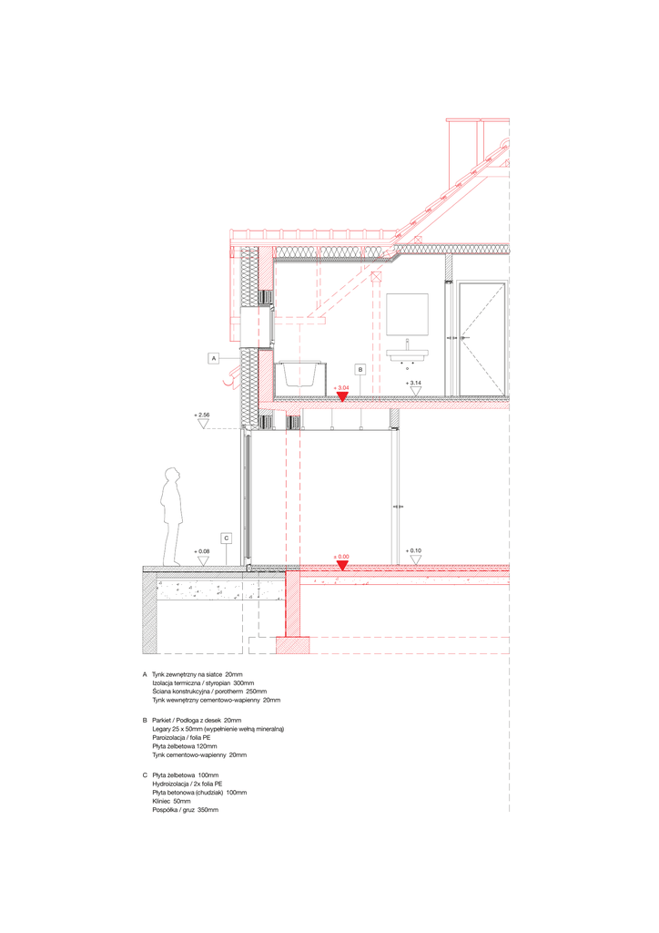
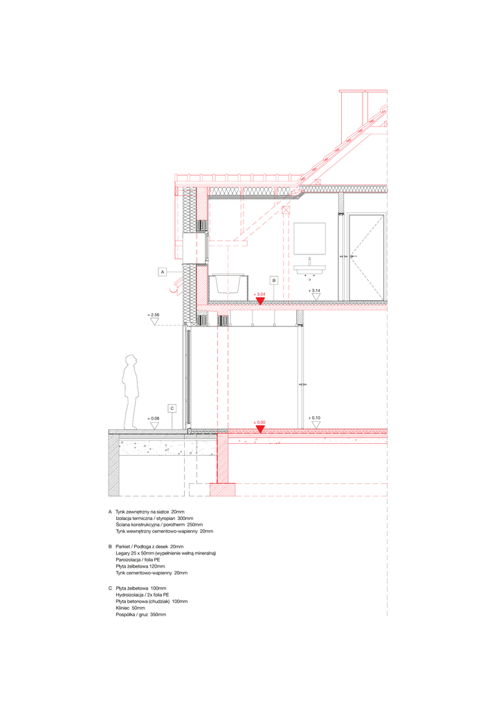
A Tynk zewnętrzny na siatce 20mm Izolacja termiczna / styropian

Transkrypt

A Tynk zewnętrzny na siatce 20mm Izolacja termiczna / styropian
A
B
+ 3.04
+ 3.14
+ 2.56
C
+ 0.08
A Tynk zewnętrzny na siatce 20mm
Izolacja termiczna / styropian 300mm
Ściana konstrukcyjna / porotherm 250mm
Tynk wewnętrzny cementowo-wapienny 20mm
B Parkiet / Podłoga z desek 20mm
Legary 25 x 50mm (wypełnienie wełną mineralną)
Paroizolacja / folia PE
Płyta żelbetowa 120mm
Tynk cementowo-wapienny 20mm
C Płyta żelbetowa 100mm
Hydroizolacja / 2x folia PE
Płyta betonowa (chudziak) 100mm
Kliniec 50mm
Pospółka / gruz 350mm
± 0.00
+ 0.10