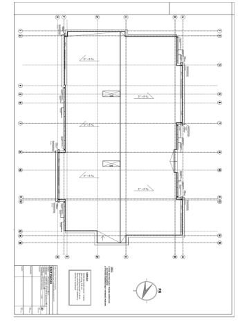
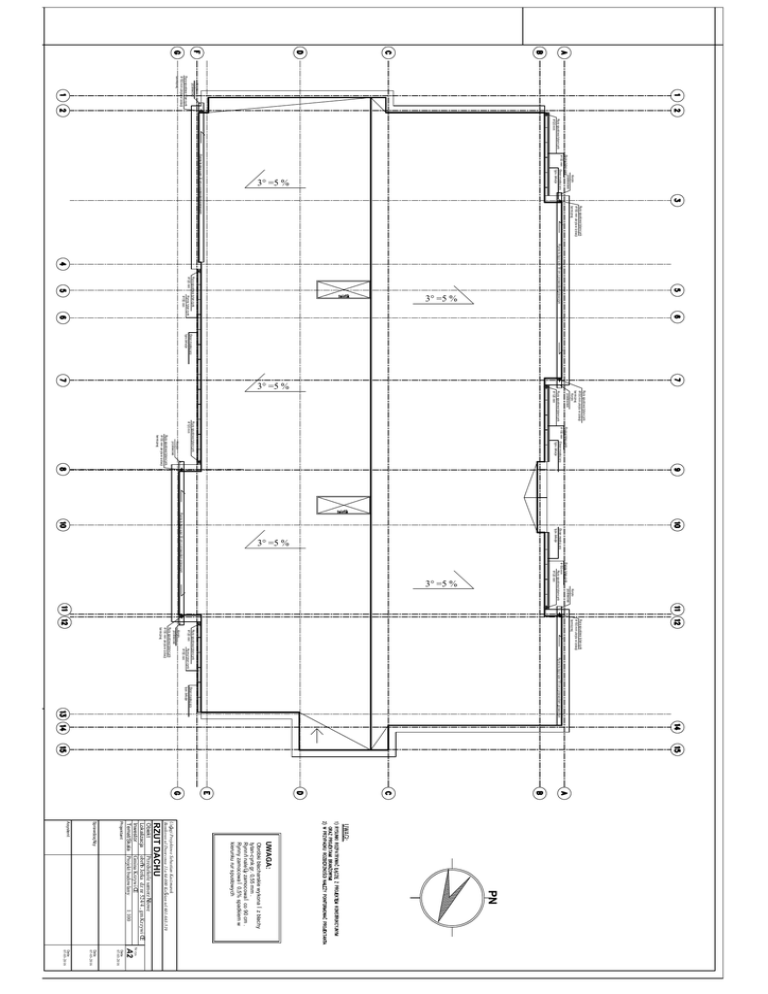
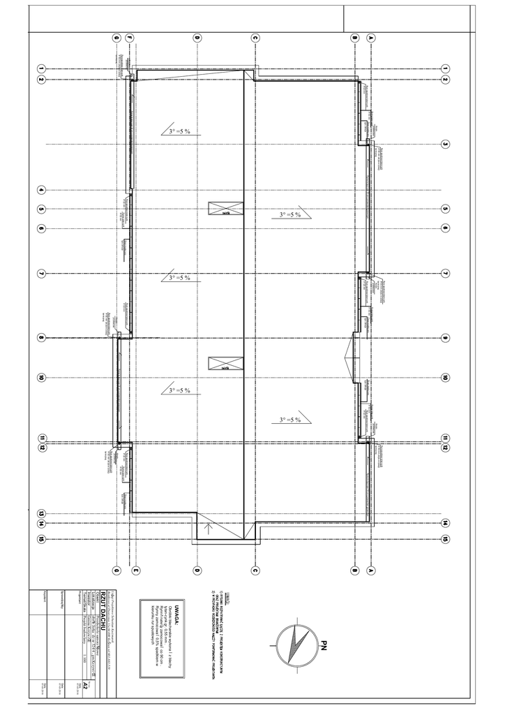
rzut dachu
Transkrypt
										rzut dachu
                                        
                                        
                                Koryto przelewowe Rura spustowa tytan-cynk termicznej ∅ 150 mm ukryta w izolacji typu żaluzja Rura spustowa tytan-cynk termicznej Rura spustowa tytan-cynk ∅150 mm ukryta w izolacji termicznej Koryto przelewowe Rura spustowa tytan-cynk ∅ 120 mm Rynna tytan-cynk typu żaluzja ∅ 150 mm Ekran maskuj ący Rura spustowa tytan-cynk ∅ 120 mm Koryto przelewowe termicznej Ekran maskuj ący typu żaluzja Rynna tytan-cynk ∅ 120 mm Koryto przelewowe Rura spustowa tytan-cynk ∅ 150 mm Rynna le żącz szer 30 cm z przewodem grzewczym 3° =5 % ∅ 150 mm ukryta w izolacji Rynna le żącz szer 30 cm z przewodem grzewczym Ekran maskuj ący typu żaluzja 3° =5 % Koryto przelewowe Rynna tytan-cynk Rynna tytan-cynk ∅ 150 mm Rura spustowa tytan-cynk ∅ 150 mm ukryta w izolacji 3° =5 % ∅ 150 mm Ekran maskuj ący ∅120 mm Rura spustowa tytan-cynk 3° =5 % Rura spustowa tytan-cynk ∅120 mm Rynna le żącz szer 30 cm z przewodem grzewczym 3° =5 % Rura spustowa tytan-cynk termicznej ∅ 150 mm ukryta w izolacji Ekran maskuj ący typu żaluzja Rynna le żącz szer 30 cm z przewodem grzewczym Rura spustowa tytan-cynk ∅ 120 mm Rynna tytan-cynk ∅ 150 mm Koryto przelewowe Rura spustowa tytan-cynk termicznej ∅ 150 mm ukryta w izolacji UWAGA: PN Obróbki blacharskie wykona ć z blachy tytan-cynk gr. 0,55 mm . Rynnę należy zamocowa ć co 90 cm . Rynny zamocowa ć 0,5% spadkiem w kierunku rur spustowych Przedszkole samorz ądowe obręb Jerka dz nr 524/4 , gm.Krzywi ń Gmina Krzywi ń Projekt budowlany 1:100 RZUT DACHU Usługi Projektowe Sebastian Kaczmarek Bonikowo ul.Dworcowa 11a 64-000 Kościan tel.601-663-519 Obiekt Lokalizacja Inwestor Temat/Skala Projektant Sprawdzający Asystent Nr rys. 07-03-2016 Data A2 Data 07-03-2016 Data 07-03-2016