rys. 8

Transkrypt

rys. 8
126
R
111
127
WS
)
ZN
112/2
112/4
8RM5
128/1
320
113/2
112/3
0
g-3
60
g-
ZN
321
R
306
25
g-
)
)
08
5 K
DD
113/1
114/7
114/3
8RM5
g-5
0
114/8
114/9
114/10
114/4
27/4
g
5
115/2
-2
)
)
)
g-2
5
114/5
27/3
'
'
'
#
Y
'
'
'
'
'
'
0
20
26.08.2010r.
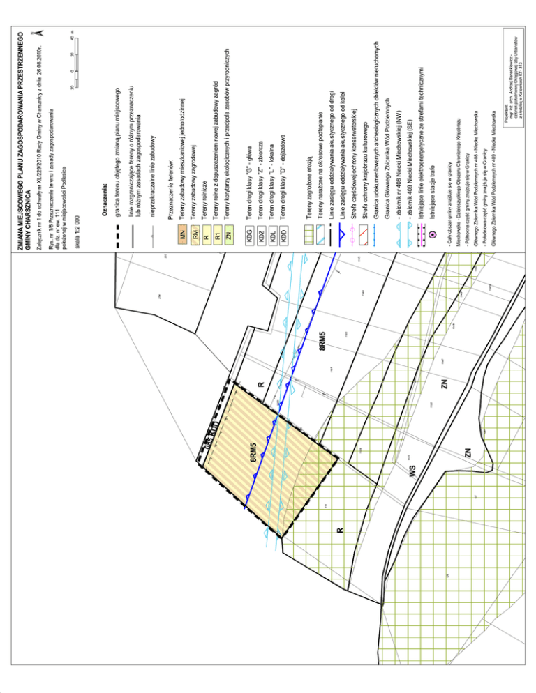
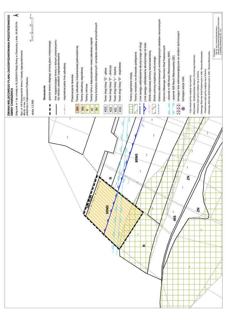
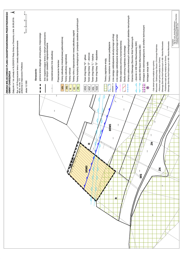
Istniej¹ce stacje trafo
Istniej¹ce linie elektroenergetyczne ze strefami technicznymi
- zbiornik 409 Niecki Miechowskiej (SE)
- zbiornik nr 408 Niecki Miechowskiej (NW)
Granica G³ównego Zbiornika Wód Podziemnych
Granica udokumentowanych archeologicznych obiektów nieruchomych
Strefa ochrony krajobrazu kulturowego
Strefa czêœciowej ochrony konserwatorskiej
Linie zasiêgu oddzia³ywania akustycznego od kolei
Linie zasiêgu oddzia³ywania akustycznego od drogi
Tereny nara¿one na okresowe podtapianie
Tereny zagro¿one erozj¹
Teren drogi klasy "D" - dojazdowa
Teren drogi klasy "L" - lokalna
Teren drogi klasy "Z" - zbiorcza
Teren drogi klasy "G" - g³ówa
Tereny korytarzy ekologicznych i przedpola zasobów przyrodniczych
Tereny rolne z dopuszczeniem nowej zabudowy zagród
Tereny rolnicze
Tereny zabudowy zagrodowej
Tereny zabudowy mieszkaniowej jednorodzinnej
Przeznaczenie terenów:
nieprzekraczalne linie zabudowy
lub ró¿nym zasadach zagospodarowania
linie rozgraniczaj¹ce tereny o ró¿nym przeznaczeniu
40
z siedzib¹ w Katowicach KT- 313
cz³onek po³udniowej Okrêgowej Izby Urbanistów
mgr in¿. arch. Andrzej Banaœkiewicz -
Projektant:
G³ównego Zbiornika Wód Podziemnych nr 409 - Niecka Miechowska
- Po³udniowa czêœæ gminy znajduje siê w Granicy
G³ównego Zbiornika Wód Podziemnych nr 408 - Niecka Miechowska
- Pó³nocna czêœæ gminy znajduje siê w Granicy
Miechowsko - Dzia³oszyckiego Obszaru Chronionego Krajobrazu
- Ca³y obszar gminy znajduje siê w granicy
'
'
'
KDD
KDL
KDZ
KDG
ZN
R1
R
RM
MN
)
20
granica terenu objêtego zmian¹ planu miejscowego
Oznaczenia:
skala 1:2 000
po³o¿onej w miejscowoœci Podlesice
dla dz. nr ew. 111
Rys. nr 1/8 Przeznaczenie terenu i zasady zagospodarowania
Za³¹cznik nr 1 do uchwa³y nr XL/229/2010 Rady Gminy w Charsznicy z dnia
GMINY CHARSZNICA
m
N
ZMIANA MIEJSCOWEGO PLANU ZAGOSPODAROWANIA PRZESTRZENNEGO